5 Bedroom Detached
£1,125,000
Whiteditch Lane, Newport, Saffron Walden

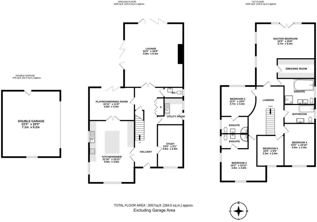
Floorplans For Whiteditch Lane, Newport, Saffron Walden
EPC Graph for Whiteditch Lane, Newport, Saffron Walden

Description


An elegant five bedroom detached home forming part of a pair of bespoke properties in the well served village of Newport. Offering beautifully presented and well-proportioned living accommodation, west facing garden and a detached double garage.

Ground Floor -

Entrance Hall - Entrance door, staircase rising to the first floor, built-in storage cupboard with shelving and separate coats cupboards and doors to adjoining rooms.

Kitchen/Breakfast Room - Fitted with base and eye level units with granite worktops, central island, Smeg induction hob with extractor hood over, electric oven, integrated microwave, sink unit, dishwasher and space for American style fridge freezer. Windows to the front and side aspects. Doors to:

Dining Room - Bi-folding doors opening to the rear garden.

Sitting Room - Bi-folding doors to the rear and side aspects and feature fireplace.

Cloakroom - Comprising ceramic wash basin with vanity unit beneath, low level WC, heated towel rail and obscure glazed window to the side aspect.

Utility Room - Fitted with base and eye level units, stainless steel sink, space and plumbing for washing machine and tumble dryer. Windows to the side aspect and part-glazed door providing external side access.

Office - Window to the front aspect.

First Floor -

Landing - Doors to adjoining rooms, access to the loft space and Velux window providing a good degree of natural light.

Bedroom 1 - Window to the side aspect, glazed doors opening to the Juliet balcony to the rear. Door to:

Dressing Room - Fitted drawers, shelving and railings.

En Suite - Comprising twin wash basins with vanity unit beneath, low level WC, panelled bath, shower enclosure with dual shower heads, heated towel rail and obscure glazed window to the side aspect.

Bedroom - Window to the rear aspect and door to:

En Suite - Comprising ceramic wash basin with vanity unit beneath, low level WC, shower enclosure, heated towel rail and obscure glazed window to the side aspect.

Bedroom - Windows to the front and side aspects and door to:

En Suite - Comprising ceramic wash basin with vanity unit beneath, low level WC, shower enclosure, heated towel rail and obscure glazed window to the side aspect.

Bathroom - Comprising ceramic wash basin with vanity unit beneath, low level WC, panelled bath with shower attachment, separate shower enclosure, heated towel rail and obscure glazed window to the side aspect.

Bedroom - Window to the front aspect.

Bedroom - Window to the front aspect.

Outside - The property has a block paved driveway providing off-street parking for several vehicles and access to the double garage. There is gated side access to the rear garden which has a paved terrace, perfect for al fresco entertaining, with a retaining garden wall and steps leading up to the rest of the garden which is predominantly laid to lawn with beds bordering.

Double Garage - Electric roller shutter door, power, lighting and heating connected, window to the front aspect and glazed personal door to the side.

Viewings - By appointment through the Agents.

Cheffins

Cheffins

Hill Street
Saffron Walden
Essex
CB10 1JD

+44 (0)1799 523656

Reference: 34524804

Request a viewing for this property

Simply fill out the form below or alternatively call us on 020 7839 0888

* Mandatory fields