2 Bedroom End of Terrace
£290,000
Thaxted Road, Saffron Walden

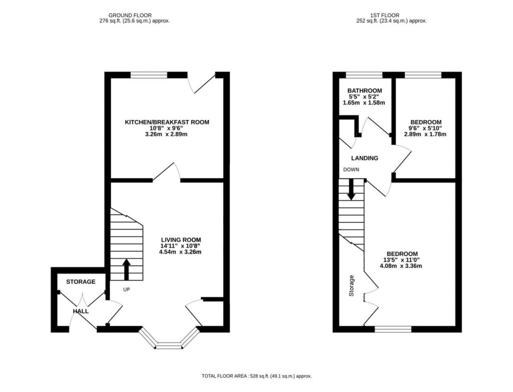
Floorplans For Thaxted Road, Saffron Walden
EPC Graph for Thaxted Road, Saffron Walden

Description


A charming two bedroom period home positioned in a popular residential location within the town. The property enjoys bright and well proportioned accommodation with a wealth of character features, together with a generous rear garden. Offered chain free.

Saffron Walden is an historic market town with a magnificent Parish Church, numerous period properties and a wide tree-lined High Street. An extensive range of shops, schools, social and sporting amenities are all accessible within the town and the Golf Course and Sports Centre lie on the town's outskirts. Road links to London and Cambridge (16 miles) are accessible at Junctions 8 and 9 of the M11. Train services to London (Liverpool Street - 57 mins) run from Audley End Station about 2 miles away.

Ground Floor -

Entrance Hall - Victorian style front door with glass panels, built-in storage cupboard and door to:-

Living Room - Staircase rising to the first floor, double glazed window to the front aspect, built-in storage cupboard, log burner with oak mantle and tiled hearth.

Kitchen/Breakfast Room - Fitted with a range of base and eye level units with worktop over, butler sink with mixer tap, four ring induction hob with extractor hood above and oven beneath, part-tiled wall, integrated appliances of fridge, freezer, microwave and washing machine, double glazed window to the rear aspect and door providing access to the garden.

First Floor -

Landing - Doors to adjoining rooms and built-in storage cupboard.

Bedroom 1 - Double glazed window to the front aspect.

Bedroom 2/Study - Double glazed window to the rear aspect with views of the garden.

Bathroom - Comprising ceramic wash basin with vanity cupboard above, panelled bath with independent shower above, low level WC, heated towel rail, tiled walls and flooring and double glazed window to the rear aspect.

Outside - A pathway leads to the front door with an adjoining garden, predominantly laid to lawn with flowers and shrubs bordering. The property boasts a deep rear garden where a paved patio leads up to the lawn, bordered by timber fencing and planted with mature trees and hedges. The outdoor space includes two timber sheds to the rear of the garden.

Viewings - By appointment through the Agents.

Cheffins

Cheffins

Hill Street
Saffron Walden
Essex
CB10 1JD

+44 (0)1799 523656

Reference: 34513523

Request a viewing for this property

Simply fill out the form below or alternatively call us on 020 7839 0888

* Mandatory fields