Land
£400,000
Lower Town, Halberton, Tiverton

Floorplans For Lower Town, Halberton, Tiverton

Description


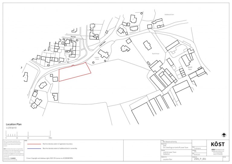
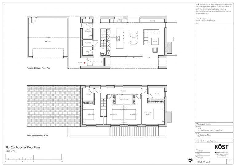
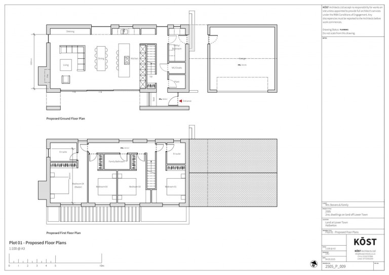
Attractive edge of village development site for two detached new build homes in 0.43 acres. Full Planning Consent Ref: 25/01309/FULL. Each Property Approx. 195 SqM plus Garage. South Facing Gardens. Tiverton 3 Miles. M5 J27/ Tiverton Parkway 4 Miles. Freehold.

Situation - Located on the southern edge of Halberton, close to the Primary school and church. The popular farm shop is also close by with its well-attended café. The village also has a village hall and pub.

Tiverton lies 3 miles to the west, whilst the M5 junction 27 & Tiverton Parkway station are 4 miles to the east. The cathedral & university city of Exeter is 17 miles to the south.

Description - A development site of 0.43 acres with full planning consent for two detached houses of 195 SqM plus garage. This is a rare green field site, adjoining fields, with views.

The design combines attractive traditional materials including stone and timber exterior elevations in a contemporary style.

Access - The proposed plans show a new single road access leading to the two properties from Lower Town.

Services - Electricity, water and drainage - Purchasers are responsible for arranging their own connections.
Ofcom predicted services for surrounding properties - Standard & Superfast broadband available and mobile coverage available from most major providers
Local Authority: Mid Devon District Council.

Viewings - Strictly by appointment with the agent please.

Directions - From Tiverton, proceed East on Blundells Road towards Halberton and Sampford Peverell. Upon Entering the village of Halberton, turn right signposted Ash Thomas/ Brithem Bottom/ Primary School. After 0.3 miles, just after the bus stop, the site can be found on the left.

What3Words: //////appraised.penny.encourage

Cil/ Section 106 - There are no CIL or Section 106 payments due on the site.

Information Pack - Access to a pack of supporting information is available to prospective purchasers on request.

Ownership And Legal Title - The seller is offering the freehold of the property for sale by private treaty. The property is registered with HM Land Registry under the registered title numbers DN729590

The sale of the property is subject to all rights, covenants, easements, quasi-easements, and all other legal rights and encumbrances whether or not disclosed within the marketing material.

Plans And Drawings - Please note that all plans and drawings are for illustration purposes only and are not guaranteed to be accurate or to scale. The drawing on the cover page is an illustrative site layout design that has been added to an aerial photograph for indicative purposes only.

Agents Note - Please note the owners have not elected to tax the property for VAT purposes.

Stags Development Land & New Homes Department - Stags have a specialist development land and planning team, as well as a New Homes department available to assist. Contact on:
Development Team - developmentland@stags.co.uk or 01392 286949
New Homes Team - newhomes@stags.co.uk or 01392 286919

Stags

Stags

19 Bampton Street
Tiverton
Devon
EX16 6AA

+44 (0)1884 235705

Reference: 34513467

Request a viewing for this property

Simply fill out the form below or alternatively call us on 020 7839 0888

* Mandatory fields