4 Bedroom Detached
£995,000
Lower Budeligh, East Budleigh, Budleigh Salterton

Floorplans For Lower Budeligh, East Budleigh, Budleigh Salterton
EPC Graph for Lower Budeligh, East Budleigh, Budleigh Salterton

Description


Located in the heart of this picturesque and attractive East Devon village, a charming (not Listed) period detached house retaining a number of features with a delightful garden.

Situation - Brookfield House is situated in the sought after East Devon village of East Budleigh - an Area of Outstanding Natural Beauty, which is a charming historic village and the birthplace of Sir Walter Raleigh (b.1552). There is a range of facilities including a pub, a fine church, a primary school (Ofsted: Good) and an active community shop. It is under two miles from the coastal resort of Budleigh Salterton, which has an extensive range of facilities and access to a pretty, unspoilt pebbled beach, whilst a sandy beach at Exmouth is about six miles. The university and cathedral city of Exeter (10 miles) has a range of facilities befitting a centre of its importance with railway stations on the Waterloo and Paddington lines and its international airport.
East Budleigh is west of the delightful River Otter valley where there are attractive walks whilst The Common, Bicton Common and Woodbury Common are just a few miles to the west providing wonderful countryside for walking, bird watching and horse riding.

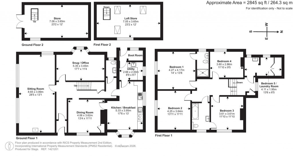
Description - A charming detached period house located in the heart of the village providing attractive accommodation throughout with a large sitting room, separate dining room, snug and a kitchen breakfast room on the ground floor. On the first floor are 5 bedrooms, the master being an ensuite and there is a family bathroom.

Accommodation - From the road, a path leads along the side of the house to a solid wood door opening into an entrance porch and beyond is the main hallway with exposed wooden floor boards, and a staircase rising to the first floor. On the left is a lovely sitting room. Believed to have originally been two rooms, it has been opened up into one large space over 28ft in length, with exposed wooded floor boards, two windows to the front and at one end, a wood burner. Following the hall round on the left is a snug with a bay window to the side and a feature period fireplace and on the other side of the hall is a separate dining room with a sash window overlooking the garden. Adjoining the dining room at the rear of the property, with windows overlooking the garden is a kitchen/breakfast room fitted with a range of wood fronted base and wall units with a ceramic sink and drainer unit, space for a dishwasher, a gas hob with electric oven under and an Aga with two hot plates. Leading off the kitchen is a utility room and beyond this a back porch with a door into the garden.
On the first floor, at the top of the stairs is a good sized landing with doors leading to the 5 bedrooms. To the front are two doubles with windows to the front, the master being on the right hand side with a door to an en-suite shower rooms and there are 2 further doubles and a single. Also leading off the landing is a family bathroom with panel bath, low level W.C and a hand wash basin.

Outside - To the side of the house, double wooden gates open to a driveway area to the side of the house providing off road parking for one car, or as currently used an attractive gravelled seating area and to the rear is a detached garage/coach house with two floors with a recently replaced roof with skylights that could, subject to the usual planning consents be converted into an annexe or office space.
The remaining garden surrounds the house on two sides and is laid mainly to lawn with a number of mature trees and plants giving a good degree of privacy and there is a timber summer house.

Services - Current Council Tax band: G
Utilities: Mains drainage, gas, electricity and water
Drainage: Mains
Heating: Gas central heating via radiators
Tenure: Freehold
EPC: D(64)
Standard, Superfast and Ultrafast broadband available (Ofcom)
EE, O2 and Vodafone network available (Ofcom)

Directions - From Exeter leave the city in the direction of the M5 junction 30 and on reaching Sandygate roundabout, go straight ahead following signs to Exmouth and at the next roundabout, turn right onto the A376. At the next roundabout turn left towards Woodbury and follow the road through the village and up the hill towards Woodbury Common. At the T-junction go straight over and follow the road over Woodbury Common, through the village of Yettington and then onto East Budleigh. Drop down the hill into the village, follow through the village, past the village shop and Primary School and the house is found on the left hand side. What3words: /////lyricist.press.sourced

Stags

Stags

21 Southernhay West
Exeter
Devon
EX1 1PR

+44 (0)1392 255202

Reference: 34510925

Request a viewing for this property

Simply fill out the form below or alternatively call us on 020 7839 0888

* Mandatory fields