3 Bedroom Detached
£415,000
Colehills Close, Clavering, Saffron Walden

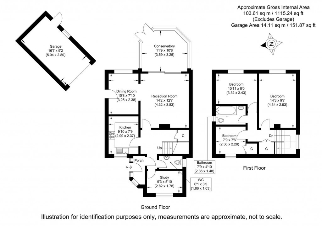
Floorplans For Colehills Close, Clavering, Saffron Walden
EPC Graph for Colehills Close, Clavering, Saffron Walden

Description


Offered chain free. A spacious and well appointed detached family home, positioned and tucked away village location. The property benefits from bright and well proportioned living accommodation throughout together with detached garage, landscaped rear garden and off street parking.

Ground Floor -

Entrance Porch - Entrance door, dual aspect windows to the side and front elevations. Door to:

Hallway - Staircase rising to the first floor with understairs storage cupboard, part panelled wall, tiled flooring and doors to adjoining rooms.

Study - Double glazed window to the front aspect.

Cloakroom - Comprising ceramic wash basin with vanity cupboard beneath and splashback tiles, low level WC, tiled flooring and obscure double glazed window to the side aspect.

Kitchen - Fitted with a range of base and eye level units, stainless steel sink and integrated dishwasher, oven with four ring induction hob and extractor hood above, space for washing machine/tumble dryer, part-tiled walls and double glazed window to the front aspect.

Sitting Room - Feature fireplace with exposed brickwork, tiled hearth and gas fire and double glazed sliding doors leading directly into the conservatory. Open plan to:

Dining Room - Double glazed window to the rear aspect with views of the garden and door to the side aspect providing direct access to the outside space.

Conservatory - Triple aspect double glazed windows to both sides and rear aspects along with a pair of double glazed French doors leading directly into the garden, tiled flooring.

First Floor -

Landing - Double glazed window to the side aspect, storage cupboard with shelving and doors to adjoining rooms.

Bedroom 1 - Double glazed window to the rear aspect with views of the garden.

Bedroom 2 - Double glazed window to the rear aspect overlooking the garden.

Bedroom 3 - Double glazed window to the front aspect.

Bathroom - Comprising ceramic wash basin, low level WC, panelled bath with shower above, part-tiled walls and tiled flooring, obscure double glazed window to the rear aspect.

Outside - A paved walkway leads to the front door along with driveway providing off-street parking for one car and access to the garage. The front garden features a selection of mature shrubs. Gated side access leads to a lovely landscaped garden which is predominantly laid to lawn with a patio area and sleeper beds complimented by a selection of mature shrubs and flowers bordering. The garden is enclosed by a brick and fenced boundary and has the addition of a useful timber storage shed.

Garage - Up and over door, power connected and personal door to garden.

Viewings - By appointment through the Agents.

Cheffins

Cheffins

Hill Street
Saffron Walden
Essex
CB10 1JD

+44 (0)1799 523656

Reference: 34509215

Request a viewing for this property

Simply fill out the form below or alternatively call us on 020 7839 0888

* Mandatory fields