2 Bedroom Terraced
£294,995
Clodgey Lane, Helston

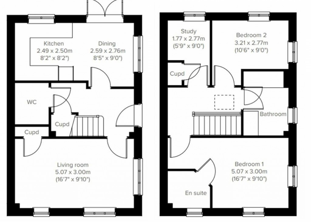
Floorplans For Clodgey Lane, Helston

Description


The Deepdale, a 2 bedroom end terrace home offers a balanced feel with flexible living options to suit your needs. Freehold. Council tax band TBC. EPC TBC.

Situation - The energy-efficient two, three and four-bedroom homes in Helston offer the best of Cornwall living. Designed for modern life, each home includes clever, money-saving features as standard, so all you need to do is move in.

Helston is a welcoming community close to everyday essentials. From high-quality finishes to traditional-feel streets and wide-open green areas, Trehenlis Gardens is a thoughtfully designed development made for family living. This vibrant development will also include new cycle and foot paths perfect for staying active. Whether you're looking for a first home, more space for a growing family or a peaceful Cornish base, you'll find it here.

Description - The Deepdale has a lovely balanced feel, created by a central entrance hall and generous living space to either side. It's much the same upstairs, with bedroom one to one side of the landing, and bedroom two and a study on the other side.

Outside - This home benefits from allocated parking and a private rear garden.

Agent Notes - Annual service charge will be payable.
Some images may be CGI. Internal photos are provided to illustrate the high-quality finish and are taken from a similar property.

Viewings - Strictly by prior appointment with Stags Truro office on 01872 264488.

Directions - Trehenlis Gardens can be located on the outskirts of Helston, on Clodgey Lane.

What3words: ///stiletto.hexes.bunks

Stags

Stags

61 Lemon Street
Truro
Cornwall
TR1 2PE

+44 (0)1872 264488

Reference: 34509103

Request a viewing for this property

Simply fill out the form below or alternatively call us on 020 7839 0888

* Mandatory fields