4 Bedroom Detached Bungalow
£415,000
Millfield, Littleport

Floorplans For Millfield, Littleport
EPC Graph for Millfield, Littleport

Description


Cheffins offer to the market this well presented and deceptively spacious detached bungalow located in the popular Town of Littleport.

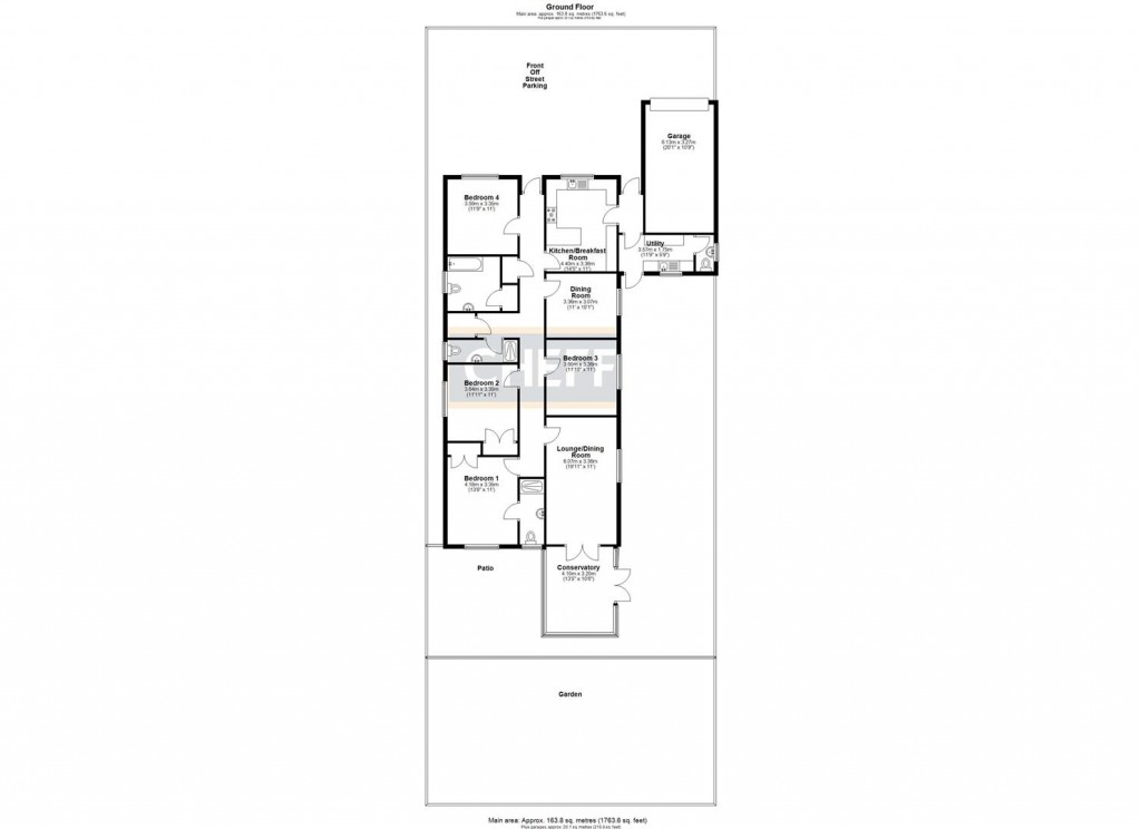
Accommodation comprising entrance hall, side lobby, utility room, cloakroom, refitted kitchen, lounge, conservatory, dining room, 4 good size bedrooms (1 ensuite) and bathroom.

Outside the front is gravelled providing off road parking for multiple vehicles and a single garage, whilst the rear offers a mainly laid to lawn garden with an extended paved patio and gated access.

Entrance Hall - With door to front, storage cupboard, walk-in airing cupboard, radiator, skylight

Side Lobby - With door to front, radiator, access into the kitchen, utility and garage.

Utility Room - Fitted with a range of base units with work surfaces over, plumbing for washing machine, space for tumble drier, window to rear and door to rear providing access into the rear.

Cloakroom - Fitted with a 2-piece suite comprising low level WC and wash hand basin, window to side, radiator.

Lounge - With window to side, radiator, patio doors to rear, electric wood burner. Doors to rear into:

Conservatory - With door to side providing access into the garden.

Kitchen - Refitted with a range of base and wall units, cupboards and drawers with work surfaces over, 5-ring gas hob double oven, inset 1 1/2 bowl sink with mixer tap, integral bins, breakfast bar, integrated full height fridge and freezer, radiator, window to front.

Dining Room - With window to side, radiator.

Bedroom 1 - With window to rear, radiator, built-in wardrobe. Door to:

Ensuite - Fitted with a 3-piece suite comprising low level WC, pedestal wash hand basin and shower cubicle, window to side, radiator.

Bedroom 2 - With window to front, radiator.

Bedroom 3 - With window to side, radiator.

Bedroom 4 - Wuth window to side, radiator, built-in wardrobe.

Bathroom - Fitted with a 3-piece suite comprising low level WC, vanity wash hand basin and panelled bath, built-in storage cupboard, radiator, extractor fan, door to side.

Shower Room - Fitted with a 3-piece suite comprising low level WC, vanity wash hand basin and shower cubicle, radiator, window to side, extractor fan.

Outside - To the front of the property there is a gravelled driveway providing off road parking for multiple cars and leading up to a single garage with up and over door and boiler.

The rear garden is mainly laid to lawn with extended patio, timber shed and gated access.

Viewing Arrangements - Strictly by appointment with the Agents.

Cheffins

Cheffins

25 Market Place
Ely
Cambridgeshire
CB7 4NP

+44 (0)1353 654900

Reference: 34508009

Request a viewing for this property

Simply fill out the form below or alternatively call us on 020 7839 0888

* Mandatory fields