2 Bedroom Semi-Detached
£306,500
Newquay

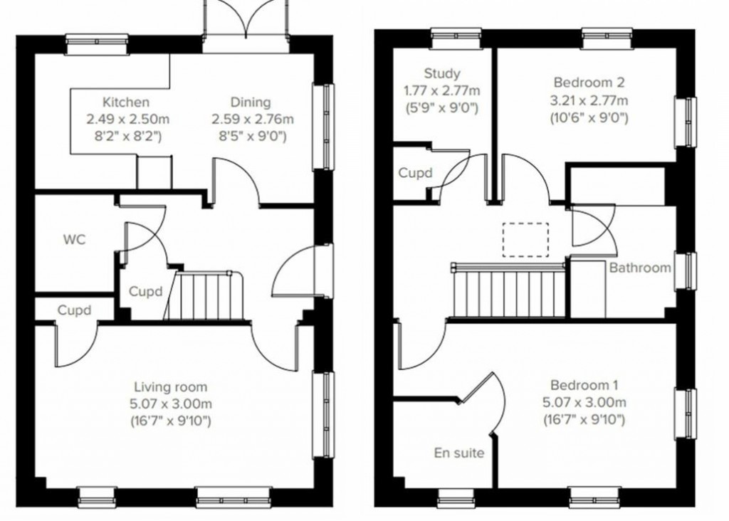
Floorplans For Newquay

Description


The Deepdale, a 2 bedroom semi detached home offers a balanced feel with flexible living options to suit your needs. Freehold. Council tax band TBC. EPC TBC.

Situation - A prime location, these new build properties for sale in Newquay are set in one of Cornwall's most iconic coastal towns. Known for its beaches, surf and laid-back lifestyle, whether you're after a modern one, two, three or four-bedroom home, you'll find energy-efficient features, high-quality finishes and a friendly neighbourhood feel - all close to sandy shores and everyday essentials.

At Trevithick Manor Park, each of the new homes are designed for real life. Complete with money and time-saving features, the family-friendly development also includes a play area kids will love and beautiful planting throughout to bring you closer to nature.

Description - The Deepdale has a lovely balanced feel, created by a central entrance hall and generous living space to either side. It's much the same upstairs, with bedroom one to one side of the landing, and two bedrooms on the other side. If two bedrooms are plenty for you, the third, smaller room, would make a great home office and a great option.

Outside - This home benefits from 2 parking spaces and a private rear garden.

Agent Notes - Annual service charge will be payable.
Some images may be CGI. Internal photos are provided to illustrate the high-quality finish and are taken from a similar property.

Viewings - Strictly by prior appointment with Stags Truro office on 01872 264488.

Directions - From the A30, take the junction sign posted for Newquay and continue onto the A39. At the next roundabout, take the second exit for Newquay (A392). Continue on this road, driving through Quintrell Downs, until you reach the second roundabout after this village where you will find the Trevithick Manor Park Development on the left.

Stags

Stags

61 Lemon Street
Truro
Cornwall
TR1 2PE

+44 (0)1872 264488

Reference: 34506231

Request a viewing for this property

Simply fill out the form below or alternatively call us on 020 7839 0888

* Mandatory fields