2 Bedroom Apartment
£350,000
Quayside, West Bay, Bridport

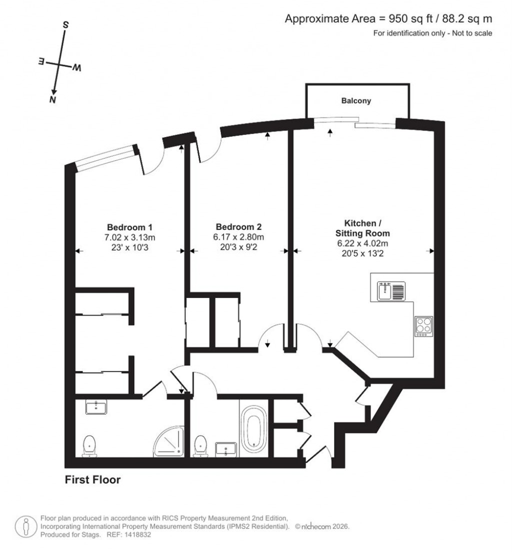
Floorplans For Quayside, West Bay, Bridport
EPC Graph for Quayside, West Bay, Bridport

Description


OPEN GUIDE PRICE £350,000 - £375,000
An impressive apartment with beautiful sea and harbour views in the sought after Jurassic coastal resort of West Bay. EPC: B

The Property - Quay West is a very prestigious development of luxury apartments, occupying a prime coastal and harbourside setting in the very popular resort of West Bay, on the spectacular Jurassic Coast. It was developed by Wyatt Homes in 2007 to a very high specification and probably some of the best quality apartments in West Dorset.

36 Quay West is located within the prime harbourside position within the development. It is located on the second floor with spectacular views across the harbour, West Bay, out to the sea along the Jurassic Coast and the surrounding countryside.

The bright, spacious and well presented accommodation features floor to ceiling external windows and doors, taking full advantage of the wonderful aspect and views.

The high specification includes gas-fired central heating, well equipped kitchen with comprehensive integral appliances (twin ovens, gas hob, extractor hood, fridge/freezer and dishwasher) plus granite work surfaces, fully tiled en-suite shower room and bathroom together with wood flooring to the hall, living/dining room/kitchen and fitted carpets to both bedrooms.

There is also the benefit of an underground parking space together with both lift/stairs access to the apartment.

Holiday Letting History - The apartment has been successfully let out for holiday purposes, which produces excellent income. Contents are available by separate negotiation.

The property can be sold with the benefit of ongoing bookings or with vacant possession.

Outside - Quay West is accessed via a communal drive and a gated coded entry system.

There is allocated underground parking with space for one car.

Situation - Quay West enjoys a high profile coastal and harbourside position in the very popular coastal resort of West Bay, in the heart of the World Heritage Site Jurassic Coast. West Bay is very much an unspoilt gem of the south coast, with a picturesque harbour and the resort has a good range of facilities, numerous cafes, restaurants and public houses. The thriving historic market town of Bridport is very nearby offering comprehensive facilities. There are regular bus services to the town. Dorchester, Weymouth and Lyme Regis are all within just 20-30 minutes' driving distance.

Services - All mains services. High efficiency electric central heating (underfloor).
Broadband - Standard up to 7Mbps and Superfast up to 80Mbps.
Mobile phone service providers available are EE and Three for voice and data services inside and outside and O2 and Vodafone for voice and data services outside.
(Broadband and mobile phone information taken from Ofcom website Results are predictions and not a guarantee. Actual services available may be different from results and may be affected by network outages).

Tenure - 125 Year lease commencing 2007
Service charge £1,537.91 payable every 6 months.
Ground rent £350pa.

Residential Lettings - If you are considering investing in a Buy To Let or letting another property and require advice on current rents, yields or general lettings information to ensure you comply, please contact a member of our lettings team on 01308 428001 or via email rentals.bridport@stags.co.uk

Viewings - Strictly by appointment (subject to holiday bookings) with Stags Bridport.

Directions - On entering West Bay, go past the harbour and turn left at the roundabout. Quay West is immediately on the right.
What3Words///factoring.vanish.verges

Stags

Stags

29 South Street
Bridport
Dorset
DT6 4NR

+44 (0)1308 428000

Reference: 34503327

Request a viewing for this property

Simply fill out the form below or alternatively call us on 020 7839 0888

* Mandatory fields