3 Bedroom Semi-Detached
£475,000
Rose Cottages, Hawkridge, Dulverton

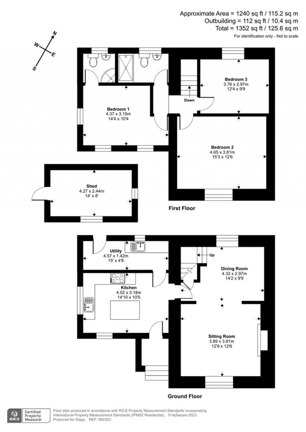
Floorplans For Rose Cottages, Hawkridge, Dulverton
EPC Graph for Rose Cottages, Hawkridge, Dulverton

Description


A charming semi-detached character cottage with outstanding moorland views, delightful gardens, parking and situated on the edge of the village. EPC Band D.

Situation - The property is set in a wonderful elevated position with far reaching moorland views, yet on the edge of the village of Hawkridge. which has a small traditional community with a church and a village hall. The popular tourist attraction of Tarr Steps is just a mile or so away with its famous bridge and Tarr Farm Inn public house and restaurant.

Nearby Dulverton offers a variety of shops, together with a post office, chemist, doctors, veterinary and dental surgeries, library and a primary school. The county town of Taunton and the city of Exeter offer a wider range of facilities.

Communication links are excellent, with easy access to the M5 at Junction 27 and fast trains to London Paddington from Tiverton Parkway.

Description - 1 Rose Cottages is a charming south facing period semi-detached cottage, which has been extended and beautifully refurbished by the current owners. The cottage now provides light and spacious accommodation, but has maintained many of its original features. The elevated situation provides excellent moorland views and it is complemented by a large garden, outbuilding and parking. It would be equally suited as a full time residence or as a retreat for holidays and weekends.

Accommodation - An attractive front porch, with space for storing coats and shoes leads into the kitchen. The kitchen is dual aspect enjoying wonderful rural views and is extensively fitted with wall and base units, wooden worktops, stable door. The sitting room/dining room is dual aspect, has an inglenook fireplace fitted with a wood burning stove and again enjoys lovely views. Adjacent to the kitchen is a generous utility/boot room with cupboards and provides an additional entrance to the property.

Upstairs the master bedroom is dual aspect, enjoying far reaching moorland views and well fitted shower room. There are two further double bedrooms and the family bathroom.

Outside - The cottage style garden is a real feature of the property with an with an array of flowerbeds and borders providing a plethora of colour. It comprises of terraced borders, lawned areas, a vegetable garden, chicken enclosure and a stone outbuilding. There is also various seating areas and a raised decking area which is the perfect place for al-fresco dining. whilst enjoying the wonderful views. Adjacent to the cottage are two parking spaces. Overall plot size 0.38 acres

Services - Mains electric. Private water and drainage. Oil fired central heating. Broadband available.

Viewing - Strictly by appointment with the agents please.

Directions - Take the B3223 out of Dulverton past the Post Office Follow this road along by the river and take the left hand fork, bear left over Marsh Bridge and up the hill. At Five Cross Ways take the right turn signposted to Hawkridge and then take the first turning right into the village. On approach to the village, 1 Rose Cottages will be found on the left hand side.

Council Tax - Band C (2023/24)

Stags

Stags

13 Fore Street
Dulverton
Somerset
TA22 9EX

+44 (0)1398 323174

Reference: 34503159

Request a viewing for this property

Simply fill out the form below or alternatively call us on 020 7839 0888

* Mandatory fields