5 Bedroom Terraced
£800,000
St. Davids Hill, Exeter

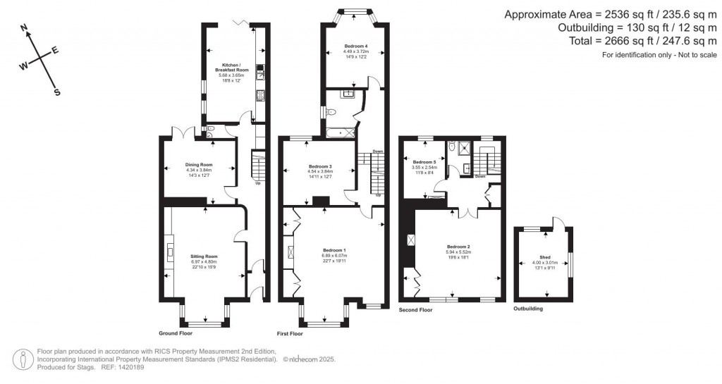
Floorplans For St. Davids Hill, Exeter
EPC Graph for St. Davids Hill, Exeter

Description


A beautifully proportioned period townhouse in one of central Exeter's most sought-after locations.

Situation - St. Davids Hill occupies a prime position on the edge of the city centre in Exeter, providing easy access to a wide range of shops, cafés, restaurants and cultural amenities. Both University of Exeter and Exeter College are within comfortable walking distance, making the location particularly attractive for families and professionals alike.

St Davids Railway Station is close by and offers direct mainline services to London Paddington and London Waterloo. The city's retail quarter at Princesshay, along with theatres, cinemas and the historic Exeter Quayside, are all easily accessible on foot.

Description - This elegant mid-terrace period home has been sympathetically modernised to create a superb blend of character features and contemporary living. Retaining high ceilings, attractive fireplaces and large sash windows, the property also benefits from thoughtful improvements including a modern kitchen/breakfast room with bi-fold doors opening directly onto the rear garden.

Arranged over three floors, the accommodation offers excellent flexibility with multiple reception rooms and up to five bedrooms, making the property ideal for families, home-working professionals or those seeking adaptable living space in a central location.

Accommodation - The property is approached via an attractive front garden and opens into a welcoming entrance hall with period detailing, solid flooring and useful storage. To the front is a generous bay-fronted sitting room enjoying plenty of natural light and a feature fireplace, creating a comfortable main reception space. To the rear is a second reception/dining room, ideal for formal dining or as a family room, with doors opening onto the garden. The kitchen/breakfast room is fitted with modern cabinetry, ample worktop space and room for everyday dining. Bi-fold doors open directly onto the rear terrace, providing a seamless connection between indoor and outdoor living, perfect for entertaining. A ground floor cloakroom completes the layout on this level.

The first floor offers three well-proportioned double bedrooms, all enjoying tall ceilings and attractive outlooks, along with a contemporary family bathroom. The second floor provides two further generous double bedrooms and a modern shower room. The principal bedroom on this floor is particularly spacious and could be configured to create two separate rooms or a bedroom suite, if required. The overall layout provides excellent flexibility for growing families, guest accommodation, or home office use.

Outside - To the rear is a charming, split-level garden offering a good degree of privacy, with a paved terrace ideal for outdoor dining leading onto lawned areas with well-stocked borders. The garden also benefits from gated rear access, useful outbuildings/summerhouse potential, and outside power and water points.
To the front, a small enclosed garden provides an attractive approach to the property. Residents' permit parking is available locally, with additional residents' parking access close by.

Services - Utilities: Mains drainage, gas, electricity and water
Heating: Gas boiler
Tenure: Freehold
EPC: D(59)
Council tax band: E
Standard and Ultrafast broadband available (Ofcom), EE, Three, O2 and Vodafone mobile network available (Ofcom).

Stags

Stags

21 Southernhay West
Exeter
Devon
EX1 1PR

+44 (0)1392 255202

Reference: 34503007

Request a viewing for this property

Simply fill out the form below or alternatively call us on 020 7839 0888

* Mandatory fields