2 Bedroom Terraced
£110,000
Bickington, Barnstaple

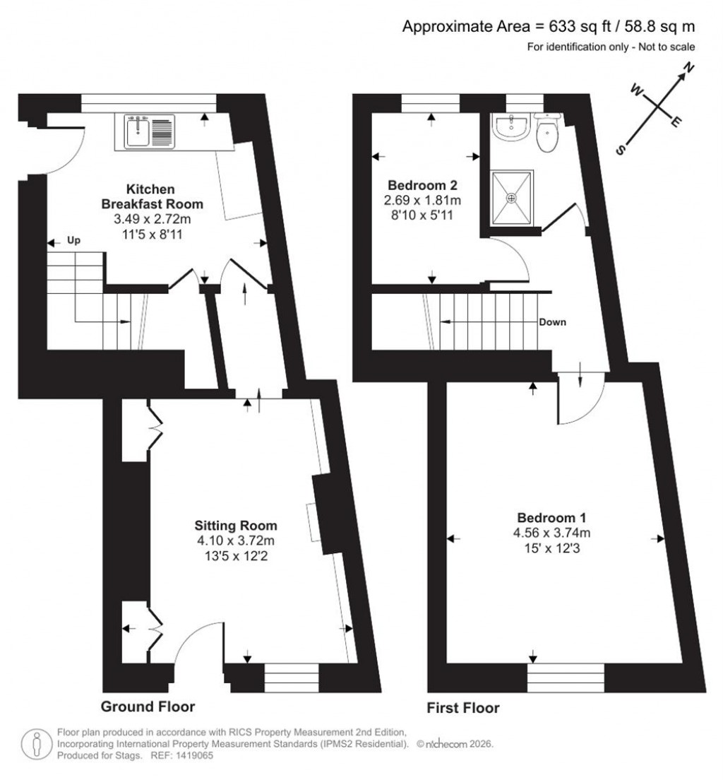
Floorplans For Bickington, Barnstaple
EPC Graph for Bickington, Barnstaple

Description


A mid-terrace period cottage in need of general improvement with long rear garden. Living Room, Kitchen, 2 Bedrooms, Shower Room, Parking in road. No upward chain. EPC Band D. Council Tax Band B. Freehold.

Situation & Amenities - Bickington is a village on the outskirts of Barnstaple, boasting its own excellent range of amenities including a new Tesco Express store, Spar/Post Office, public house and village hall. Bus services pass nearby and the Tarka Trail is within walking distance. The centre of Barnstaple is about 10 minutes by car, and as the regional centre offers the area's main business, commercial, leisure and shopping venues, as well as live theatre and district hospital. On the edge of the town and within a healthy walk of the property is a Retail Park where there are several supermarkets, as well as retail warehouses. The North Devon Link Road is easily accessible and leads on in about 45 minutes or so to Jct.27 of the M5 Motorway, and where Tiverton Parkway offers a fast service of trains to London Paddington in just over 2 hours. The coast at Instow near Bideford is a 15-minute car journey. Alternatively, North Devon's famous surfing beaches at Croyde, Putsborough, Saunton (also with Championship Golf Course) and Woolacombe are all about 30 minutes, as is Exmoor National Park. The area is well served by excellent state and private schools. The nearest international airports are at Bristol and Exeter.

Description & Accommodation - No.2 Lyndale is a mid-terrace character cottage, presenting front elevations of painted pebbledash render and rear elevations of painted render, beneath a tiled roof. The property needs general modernisation and improvement and is considered ideal as a first-time purchase, second home or holiday let. The accommodation is arranged over two storeys. Entrance from the pavement is via a half-glazed front door directly into the LIVING ROOM, which features a stone fireplace with fitted gas fire, wall mounted corner cupboard with glazed front, beamed ceiling. KITCHEN with double drainer stainless steel sink unit, adjoining work surfaces with cupboards beneath, freestanding electric cooker included and as found, plumbing for washing machine, wall shelving, storage cupboard understairs, half-glazed door to REAR GARDEN. First Floor - LANDING. BEDROOM 1. BEDROOM 2. SHOWER ROOM with shower cubicle, pedestal wash basin, low level wc.

Outside - To the front there is no garden as such as the property abuts the pavement. To the rear there is a good-sized GARDEN which rises from the back of the house and represents a blank canvas waiting to be landscaped. This is enclosed by fencing and wall. At the top a right of way leads between this property and the adjoining ones. There is also a continuation of this right of way down the left-hand side of the garden (as you look at the garden from the back of the house) into the adjoining property through a door nearest to the back door.

Services - All mains services are connected.

Lettings - If you are considering investing in a Buy To Let or letting another property, and require advice on current rents, yields or general lettings information to ensure you comply, then please contact a member of our lettings team on 01271 322837 or rentals.northdevon@stags.co.uk.

Directions - Heading out of Barnstaple up Sticklepath Hill from the stonehenge roundabout, head up the mini roundabout at the top of Sticklepath Hill and continue along the A3125 until you get to the Cedars Inn roundabout. Take the 2nd exit (straight ahead) onto the Bickington Road and on into Bickington, past the Tesco Express on your left, the Spar store on your right, the bus stop on your right and then No.2 Lyndale is within the terrace of cottages, also on the right - identified by our For Sale board.

Stags

Stags

30 Boutport Street
Barnstaple
Devon
EX31 1RP

+44 (0)1271 322833

Reference: 34502392

Request a viewing for this property

Simply fill out the form below or alternatively call us on 020 7839 0888

* Mandatory fields