1 Bedroom Apartment
£130,000
West Allington, Bridport

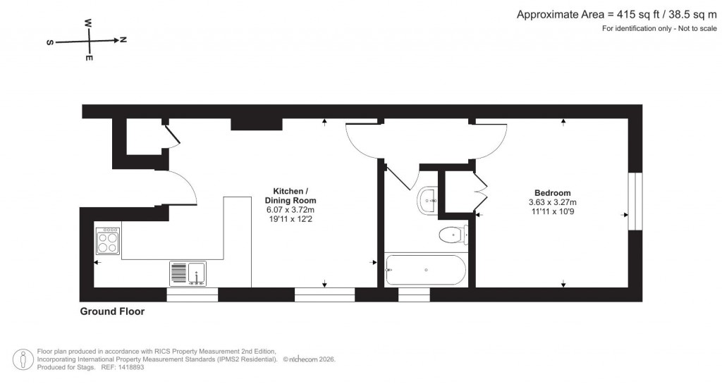
Floorplans For West Allington, Bridport
EPC Graph for West Allington, Bridport

Description


A first floor apartment with pleasant views in an elegant Victorian building close to Bridport town centre. EPC: C

The Property - Flat 3, 14 West Allington, is a first floor apartment within easy reach of Bridport town centre and open countryside. It forms part of an elegant former town house, which is believed to date back to circa 1900 and was converted into just five apartments.

The property offers all modern amenities with gas-fired central heating (combi boiler recently serviced), uPVC sealed unit windows, fitted kitchen with electric oven, hob and cooker hood and a modern bathroom with mains shower. It benefits from recent internal redecoration and new fitted carpets.

The apartment is well located at the rear of the building, away from traffic
oise and enjoys views to the church and Allington and Coneygar Hills.

Making an ideal first time purchase or buy-to-let investment, viewing is strongly recommended by the sole agents.

Situation - Well located, just to the west of Bridport town centre and close to a whole number of amenities. Bridport is a historic and thriving market town offering an excellent range of shopping, business and leisure facilities together with a popular twice weekly street market. There is also a leisure centre with indoor swimming pool. The immediate area is designated as one of outstanding natural beauty (AONB) and there is easy access to nearby country walks. The Jurassic Coast resort off West Bay is a short drive away. Both Lyme Regis and Dorchester are within easy reach. Bus services operate to destinations from Bridport town centre and train services to London Waterloo run from both Dorchester and Crewkerne stations.

Tenure - 999 Year lease commencing 2024. No ground rent payable. Service charge of £162 every quarter. Residents' management company.

Services - All mains services. Gas-fired central heating.
Broadband - Standard up to 17Mbps and Ultrafast up to 1000Mbps.
Mobile phone service providers available are O2 and Vodafone for voice and data services inside and outside and EE and Three for voice and data services outside.
(Broadband and mobile phone information taken from Ofcom website Results are predictions and not a guarantee. Actual services available may be different from results and may be affected by network outages).

Residential Lettings - If you are considering investing in a Buy To Let or letting another property and require advice on current rents, yields or general lettings information to ensure you comply, please contact a member of our lettings team on 01308 428001 or via email rentals.bridport@stags.co.uk

Viewings - Strictly by appointment with Stags Bridport.

Directions - From Stags' South Street office, proceed to the Town Hall and turn right into West Street. Continue over the 2 mini roundabouts into West Allington and the property will be seen after a short distance on the right.
What3Words///unheated.universe.latitudes

Stags

Stags

29 South Street
Bridport
Dorset
DT6 4NR

+44 (0)1308 428000

Reference: 34498666

Request a viewing for this property

Simply fill out the form below or alternatively call us on 020 7839 0888

* Mandatory fields