7 Bedroom Detached
£1,250,000
Kilmington, Axminster

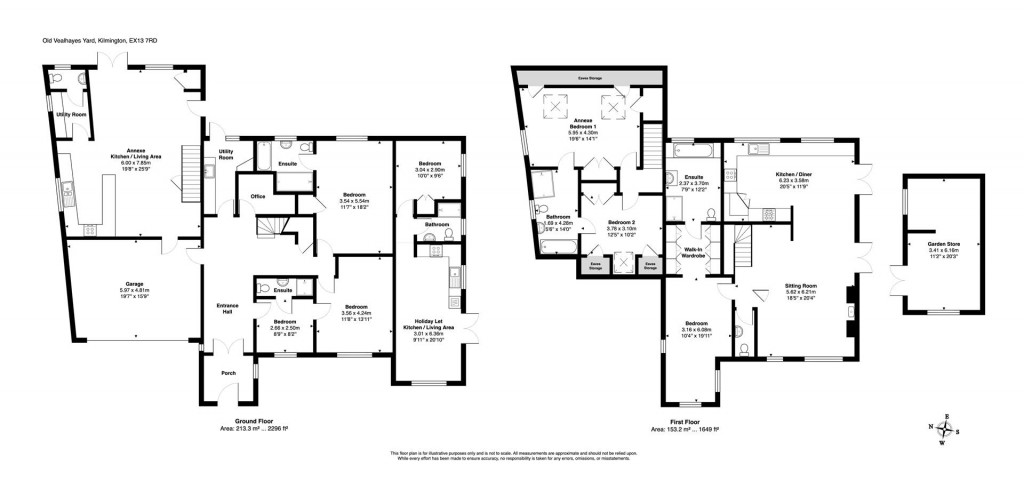
Floorplans For Kilmington, Axminster
EPC Graph for Kilmington, Axminster

Description


A beautifully presented and versatile family home with modern extension, annexe accommodation and generous parking on the edge of the popular village of Kilmington

Situation - Old Vealhayes Yard is situated on the sought-after Miller's Farm Shop side of the popular East Devon village of Kilmington. The village offers a strong sense of community along with everyday amenities, while the nearby A35 provides excellent access to Axminster, Honiton and the wider region. Axminster mainline railway station provides direct rail services to Exeter and London Waterloo, and the Jurassic Coast is within easy reach.

Main House - The main house is beautifully presented throughout, combining contemporary living with retained character features including exposed beams and a log burner, creating a warm and inviting atmosphere.

The accommodation is arranged over two floors and offers excellent flexibility. The property is entered via a welcoming entrance hall with staircase rising to the first floor. The ground floor provides a range of well-proportioned bedrooms 2 benefitting from en suite facilities. There are also useful utility rooms and a dedicated office, ideal for home working.

To the first floor, there is a large sitting room offering an excellent reception space, along with the principle bedroom suite benefitting from a walk-in wardrobe and en suite bathroom.

A particular highlight of the home is the impressive kitchen, dining and sitting space. This creates a light-filled and contemporary living area, ideal for both everyday family life and entertaining, seamlessly blending modern design with the character of the original building. French doors open onto a south facing roof terrace seating area, perfect for outdoor entertaining, with steps leading down to the rear garden.

Annexe - A key feature of Old Vealhayes Yard is the self-contained annexe accommodation, offering exceptional versatility. The annexe provides a spacious and light-filled kitchen and living area, from which French doors open directly onto the decked area and garden, along with 2 bedrooms, bathroom facilities and additional utility space. The annexe provides independent accommodation suitable for multigenerational living, guest accommodation or ancillary use to the main house, subject to requirements.

Holiday Let - A further standout feature of Old Vealhayes Yard is the modern, self-contained one bedroom holiday let converted in 2018 and entirely separate from the main house and annexe. The holiday let includes a light and well-presented living area with kitchen, a double bedroom and bathroom facilities. This accommodation is ideal for holiday letting and provides excellent income potential, subject to any necessary consents.

Outside - To the front of the property is a walled, private gravel driveway providing ample off-road parking. Immediately in front of the driveway gates is a tarmac area, over which a neighbouring property benefits from a right of way on foot only to access their property. There is an EV charging point.

To the rear, the garden is attractively arranged and offers a practical and private outdoor space, including a barn with power supply. A decked area sits adjacent to the annexe, creating an excellent area for outdoor dining and entertaining. The remainder of the garden is predominantly laid to lawn and is fully enclosed by wooden fencing. Raised planting beds provide space for gardening and home growing.

The property also benefits from a large garage providing secure parking and storage.

Services - Mains electricity and water. Septic tank. Oil fired central and underfloor heating in the holiday let.
Good outdoor signal with all major networks. Ultrafast broadband available (Ofcom, 2026)

Stags

Stags

Bank House
66 High Street
Honiton
Devon
EX14 1PS

+44 (0)1404 45885

Reference: 34497596

Request a viewing for this property

Simply fill out the form below or alternatively call us on 020 7839 0888

* Mandatory fields