3 Bedroom Semi-Detached
£325,000
Encombe Street, Plymstock, Plymouth

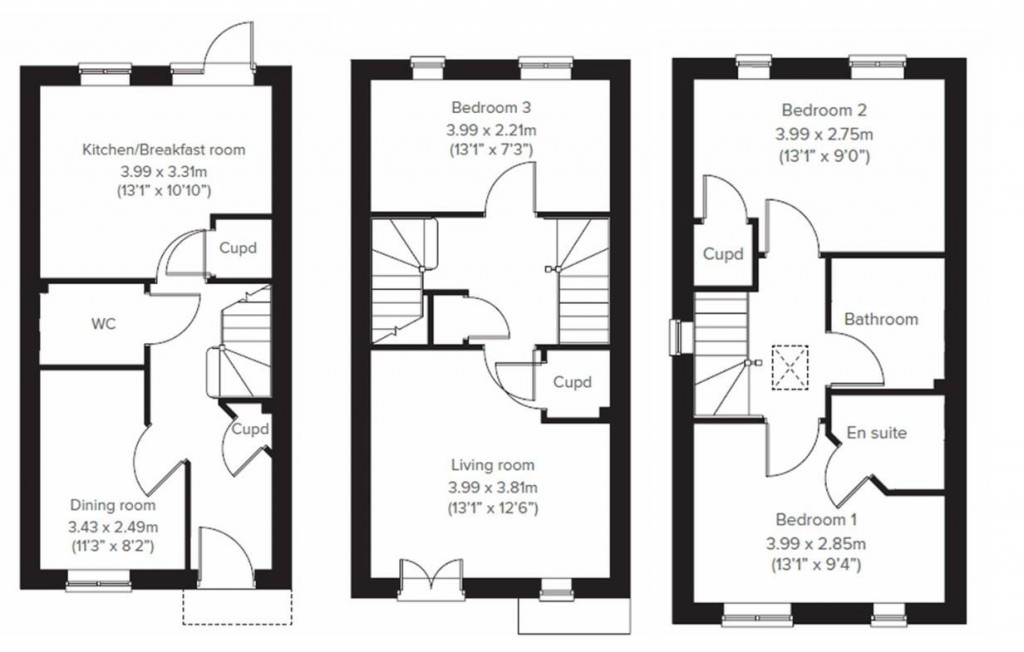
Floorplans For Encombe Street, Plymstock, Plymouth

Description


The Ashdown is a superb 3 bedroom semi-detached home with a dining room and separate kitchen/breakfast room with garden access - perfect for family life and entertaining. Freehold. Council tax band TBC. EPC TBC.

Situation - The new homes at Saltram Meadow in Plymstock give you a little bit of everything - just minutes from Plymouth city centre, close to the coast and with scenic countryside all around. Whether you're starting out or moving up, there's something for everyone, with energy-efficient one and two-bedroom apartments and two, three and four-bedroom homes designed for modern family living.

Description - The Ashdown is a superb semi-detached home with a dining room and separate kitchen/breakfast room with garden access - perfect for family life and entertaining. It's practical too, downstairs WC and two storage cupboards. Both bedroom three and the living room (with its attractive Juliet balcony) are situated on the first floor. On the upper floor there are two further bedrooms (bedroom one with an en suite) and the family bathroom.

Outside - This home benefits from allocated parking and a private rear garden.

Agent Notes - Annual service charge will be payable.
Some images may be CGI. Internal photos are provided to illustrate the high-quality finish and are taken from a similar property.

Viewings - Please call the Stags Plymouth office on 01752 223933.

Directions - Exit the Devon Expressway (A38) at the junction for Plymouth City Centre onto Plymouth Road and then continue along Embankment Road until you reach the left turning signposted Faraday Mill Business Park. Go over the Laira Bridge and onto Billacombe Road until you reach the left turning for Encombe Street where you will find Saltram Meadow.

Stags

Stags

Plym House, 3 Long Bridge Road
Plymouth
Devon
PL6 8LT

+44 (0)1752 223933

Reference: 34497049

Request a viewing for this property

Simply fill out the form below or alternatively call us on 020 7839 0888

* Mandatory fields