3 Bedroom Semi-Detached
£309,995
Abbotsham Park, Clovelly Road, Bideford

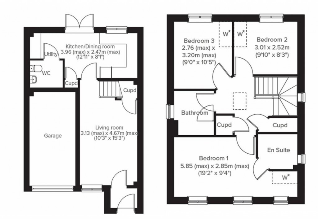
Floorplans For Abbotsham Park, Clovelly Road, Bideford

Description


The Glenmore is a stylish 3 bedroom semi detached home designed for modern family living with open plan living space, integral garage and 3 spacious bedrooms. Freehold. Council tax band TBC. EPC TBC

Situation - Welcome to Abbotsham Park - coastal living in a lovely riverside town. Explore the modern new houses for sale in Bideford Devon, including a choice of two, three and four bedroom homes. Nestled between the North Devon National Landscape and the Hartland Devon Heritage Coast, Abbotsham Park is just minutes from the sea. Designed for modern life, each home comes with quality finishes and energy-saving features.

Description - Busy family life needs to accommodate more than just the family. The Glenmore has an integral garage for the family car and all the other accessories of family life that need a home. A utility area works behind the scenes so that you can enjoy the kitchen/room for cooking and eating. An ensuite bedroom is a retreat at the end of a full-on day.

Outside - This home benefits from an integral garage, 1 parking space and private rear garden.

Agent Notes - Annual service charge will be payable.
Some images may be CGI. Internal photos are provided to illustrate the high-quality finish and are taken from a similar property.

Viewings - Please call the Stags Bideford office on 01237 425030.

Directions - Abbotsham Park is situated off the A39 Atlantic Highway, on Clovelly Road.

Stags

Stags

4 The Quay
Bideford
Devon
EX39 2HW

+44 (0)1237 425030

Reference: 34492130

Request a viewing for this property

Simply fill out the form below or alternatively call us on 020 7839 0888

* Mandatory fields