4 Bedroom Detached
£365,000
Abbotsham Park, Clovelly Road, Bideford

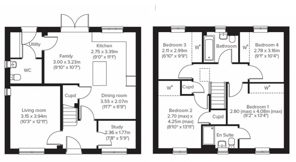
Floorplans For Abbotsham Park, Clovelly Road, Bideford

Description


The Brampton is a 4 bedroom detached home offering a bright and spacious layout designed with family living in mind, combining flexible rooms with contemporary finishes throughout. Freehold. Council tax band TBC. EPC TBC.

Situation - Welcome to Abbotsham Park - coastal living in a lovely riverside town. Explore the modern new houses for sale in Bideford Devon, including a choice of two, three and four bedroom homes. Nestled between the North Devon National Landscape and the Hartland Devon Heritage Coast, Abbotsham Park is just minutes from the sea. Designed for modern life, each home comes with quality finishes and energy-saving features.

Description - Family life works really well in this easy-to-live-in detached four-bedroom new home. The Brampton has the flexibility of open-plan space as well as separate private space. The main living area, with kitchen, dining and relaxed family zones, is at the heart of this home, while the living room and study give you all the opportunity to take a break and have some quiet time when you need it.

Outside - This home benefits from 2 parking spaces and private rear garden.

Agent Notes - Annual service charge will be payable.
Some images may be CGI. Internal photos are provided to illustrate the high-quality finish and are taken from a similar property.

Viewings - Please call the Stags Bideford office on 01237 425030.

Directions - Abbotsham Park is situated off the A39 Atlantic Highway, on Clovelly Road.

Stags

Stags

4 The Quay
Bideford
Devon
EX39 2HW

+44 (0)1237 425030

Reference: 34492124

Request a viewing for this property

Simply fill out the form below or alternatively call us on 020 7839 0888

* Mandatory fields