2 Bedroom Semi-Detached
£242,995
Abbotsham Park, Clovelly Road, Bideford

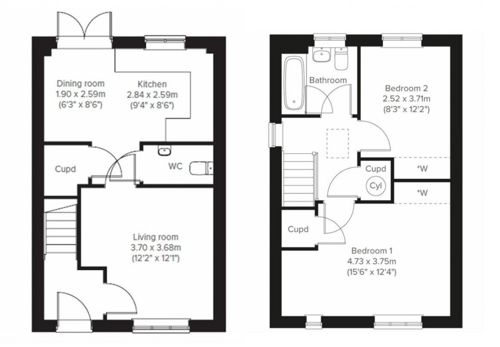
Floorplans For Abbotsham Park, Clovelly Road, Bideford

Description


The Addlebrough is a beautifully designed two-bedroom home offering modern, low-maintenance living ideal for first-time buyers or couples seeking a stylish and manageable space. Freehold. Council tax band TBC. EPC TBC.

Situation - Welcome to Abbotsham Park - coastal living in a lovely riverside town. Explore the modern new houses for sale in Bideford Devon, including a choice of two, three and four bedroom homes. Nestled between the North Devon National Landscape and the Hartland Devon Heritage Coast, Abbotsham Park is just minutes from the sea. Designed for modern life, each home comes with quality finishes and energy-saving features.

Description - The Addlebrough features a bright open plan kitchen/dining room with French doors leading into the garden and a large, spacious front-aspect living room. Upstairs there are two nicely-proportioned bedrooms and a family-sized bathroom. With plenty of storage cupboards too, this house is perfect for first-time buyers and young professionals.

Outside - This home benefits from 2 parking spaces and private rear garden.

Agent Notes - Annual service charge will be payable.
Some images may be CGI. Internal photos are provided to illustrate the high-quality finish and are taken from a similar property.

Viewings - Please call the Stags Bideford office on 01237 425030.

Directions - Abbotsham Park is situated off the A39 Atlantic Highway, on Clovelly Road.

Stags

Stags

4 The Quay
Bideford
Devon
EX39 2HW

+44 (0)1237 425030

Reference: 34492117

Request a viewing for this property

Simply fill out the form below or alternatively call us on 020 7839 0888

* Mandatory fields