6 Bedroom Detached
£450,000
Pyworthy, Holsworthy

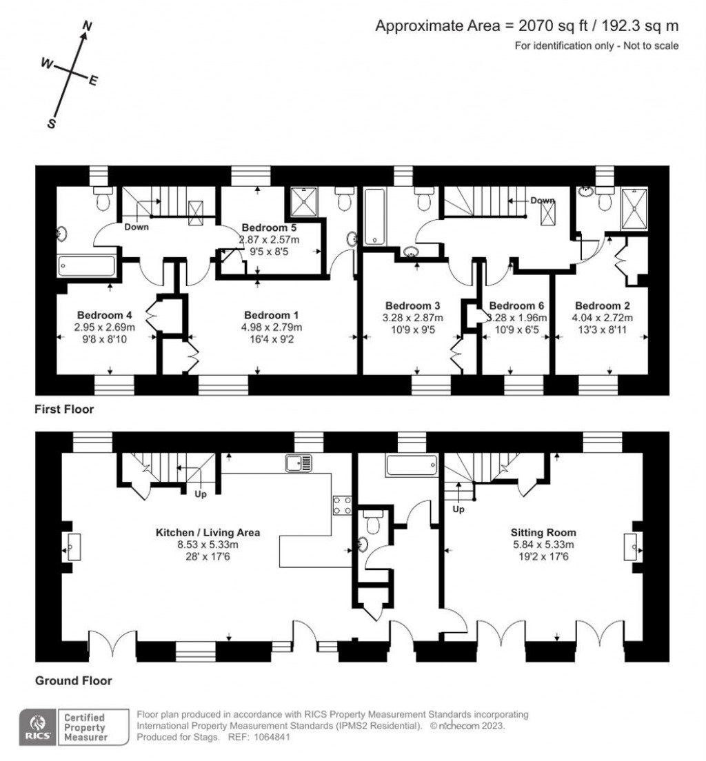
Floorplans For Pyworthy, Holsworthy
EPC Graph for Pyworthy, Holsworthy

Description


A most impressive, spacious, holiday restricted barn conversion in a popular rural position. 6 Bedrooms, 2 Reception Rooms, Generous Gardens, Off Road Parking. Freehold, Council Tax Band: F, EPC Band: C.

Situation - The property is located in a delightful rural setting, near the villages of Pyworthy and Bridgerule. A comprehensive range of shopping facilities can be found at the coastal resort of Bude on the North Cornish coast which is some 9 miles distant. At Bude there is a choice of sandy beaches and some magnificent walks along the cliffs or historic Bude canal. There are educational facilities up to 'A' level standard and a variety of shops and supermarkets.

The thriving market town of Holsworthy is 4.6 miles away with its Waitrose supermarket, doctors, dentists and veterinary surgery together with places of worship. The former market town of Launceston, known as the 'Gateway to Cornwall' is some 13.7 miles to the south with access to the vital A30 trunk road which links the cathedral cities of Exeter and Truro. At Exeter there is an international airport, mainline railway station serving London Paddington and access to the M5 motorway.

Description - A substantial detached 6 bedroom holiday restricted barn conversion with a generous garden and parking. The property was formally two semi-detached barn conversions with were amalgamated into one property by the current owners.

Accommodation - Front door leads into a spacious open plan kitchen/living area with slate and wooden flooring, a range of wall mounted cupboards, base units and drawers, inset sink, space for appliances, built in cooker with a hob and extractor hood over, fireplace housing a wood burning stove and stairs leading to the first floor with useful under stairs storage.
The sitting room is a charming dual aspect reception room with a fireplace housing a wood burning stove and a secondary staircase to the first floor with under stairs storage beneath. The ground floor is completed with a WC and bathroom.

The first floor is split and accessed via the two staircases into the west wing and east wing.
The east wing offers an impressive principle bedroom with a vaulted ceiling, en suite shower room and built in wardrobes. There are two further bedrooms and a family bathroom with a bath, WC and a wash hand basin.
The west wing offers a further bathroom and 3 bedrooms, with one of the bedrooms benefitting from an en suite shower.

Outside - The property is approached via its own drive which leads to an extensive area of parking for numerous vehicles.
The extensive gardens are predominantly laid to lawn with a generous patio terrace which provides an excellent space for al fresco dining. The garden boasts a range of mature shrubs and plants, useful timber storage shed and steps at the rear which lead up to a further generous area of lawn.

Agents Note - Please note that the property is subject to a holiday restriction and cannot be used as a main residence. For further information, please contact Stags Launceston office.

Services - Mains electricity and water. Private drainage via a septic tank. Oil fired central heating and wood burning stove. Broadband availability: Standard ADSL, Mobile signal coverage: Voice limited availability and Data unavailable (Ofcom). Please note the agents has not inspected or tested these services.

Viewings - Strictly by prior appointment with the vendor's appointed agents, Stags.

Directions - From the centre of Bridgerule, continue in an easterly direction out of the village towards Pyworthy, follow the road for approximately 0.4 miles and then take the right turning, signposted North Tamerton. Continue for a further 1.9 miles and then take the left turning, after a further 0.2 miles you will see the property on your right.

What3words.Com - ///tadpole.overlaid.pebbles

Stags

Stags

Kensey House
18 Western Road
Launceston
Cornwall
PL15 7AS

+44 (0)1566 774999

Reference: 34484290

Request a viewing for this property

Simply fill out the form below or alternatively call us on 020 7839 0888

* Mandatory fields