3 Bedroom Semi-Detached
£525,000
Oldways End, East Anstey, Tiverton

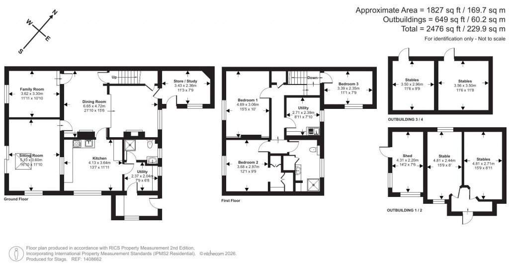
Floorplans For Oldways End, East Anstey, Tiverton
EPC Graph for Oldways End, East Anstey, Tiverton

Description


A substantial semi-detached country home offering generous and versatile accommodation, set within approximately 5.5 acres of level paddocks with extensive equestrian facilities, gardens and gated parking, enjoying glorious rural views on the edge of Exmoor National Park. EPC E.

Situation - Wheelwright's Cottage lies on the edge of Oldways End, occupying a peaceful rural position on the Somerset/Devon border and just south of the beautiful Exmoor National Park. The surrounding area is characterised by unspoilt countryside, quiet country lanes and gently rolling farmland, providing an idyllic setting for those seeking a traditional rural lifestyle. Anstey Common is only a few minutes' drive away and offers stunning open moorland scenery, with exceptional opportunities for walking and riding across Exmoor's landscape.

Dulverton, approximately four miles away, is well known as the 'Gateway to Exmoor' and provides a good range of amenities including a variety of shops, post office, chemist, doctors', veterinary and dental surgeries. Communications are excellent, with easy access to the A361 North Devon Link Road, connecting to the M5 at Tiverton (J27) and fast mainline rail services to London from Tiverton Parkway.

Description - Wheelwright's Cottage is a large semi-detached period property offering flexible and well-proportioned accommodation arranged over two floors. It offers tremendous scope and potential, with generous room sizes, attractive outlooks and a highly practical layout.

The cottage benefits from approximately 5 acres of level paddocks, ideally laid out for ease of management. There are four stables in total, together with a tack room and a field shelter

Accommodation - Upon entering Wheelwright's Cottage, a welcoming entrance hall provides access to the principal ground floor rooms and the staircase rising to the first floor. The kitchen is well proportioned and fitted with a range of units, centred around the traditional 'Stanley' range cooker, with space for appliances and enjoying a practical layout for day-to-day living.

The dining room lies adjacent to the kitchen and offers an excellent space for entertaining, with ample room for a large dining table and views over the garden. The sitting room is a comfortable and inviting reception room, featuring an open fireplace and enjoying a pleasant outlook. A separate family room provides further versatile living space, suitable for a snug, playroom or home office. Completing the ground floor accommodation are a useful utility room and a separate WC.

Stairs rise to the first floor where there are three bedrooms, offering flexible accommodation for families and guests, together with a bathroom and utility with potential for a second bathroom.

Outside - The property is approached via a gated driveway which opens into an extensive parking and turning area, suitable for horse boxes and larger vehicles.The gardens surrounding the house are well maintained and include areas of lawn and a paved terrace ideal for outdoor dining. Beyond the gardens lie approximately 5.5 acres of level paddocks. The property benefits from four stables in total completed with a tack room and a field shelter.

Services - Mains electricity and water. Private drainage. Type and compliance with General Binding Rules is unknown. Purchasers to satisfy themselves with their own inspection. Oil fired Stanley range supplying heating and hot water. Broadband and mobile data services available.

Local Authority - North Devon Council

Viewing - Strictly by appointment with the agent.

Directions - From Dulverton, leave the town heading east on the B3222 signposted towards South Molton. Continue on this road for approximately 3.5 miles. Upon reaching the hamlet of Oldways End, continue straight ahead, passing the turning signposted to East Anstey. Wheelwright's Cottage will be found shortly thereafter on the right-hand side and approached via a gated driveway.

What3words - ///behind.bucks.grinders

Stags

Stags

13 Fore Street
Dulverton
Somerset
TA22 9EX

+44 (0)1398 323174

Reference: 34474527

Request a viewing for this property

Simply fill out the form below or alternatively call us on 020 7839 0888

* Mandatory fields