7 Bedroom Detached
£600,000
Plymtree, Cullompton

Floorplans For Plymtree, Cullompton Floorplans For Plymtree, Cullompton Floorplans For Plymtree, Cullompton

Description


Historic farmstead with stunning views, annexe and option to purchase two holiday cottages, in just under 3 acres. EPC exempt

Situation - The property is situated within a delight rural location between the villages of Plymtree and Payhembury, positioned within the gently rolling hills of East Devon the views south west are delightful.

The village of Plymtree includes a well-regarded pub, primary school (Ofsted: Good), pre-school and a community shop with an outreach post office. The village also enjoys an annual country fayre and horse show, thriving cricket club and tennis court. The village hall has a varied social calendar throughout the year. The parish church of St John the Baptist is primarily a 14th Century building with the addition of a 15th Century bell tower.

Cullompton (4.4 miles) has a range of day-to-day facilities. The M5 (J28) is 5.6 miles. Tiverton Parkway on the Paddington line and Exeter Airport with daily international and domestic flights are both just 11 miles away. Honiton (7 miles) provides further shopping and a station on the Waterloo line. The university and cathedral city of Exeter (13 miles) provides a wealth of shopping and other facilities and the coast at Sidmouth is just 12 miles away.

Description - The farmhouse is a fascinating Grade II* Listed for its historical and architectural importance, with parts dating back to the 16th Century. From its origins the farmhouse has been altered and added to over the centuries creating an inviting family home, rich with character and striking period features, from exposed beams to plank and muntin screens, and the charming inglenook fireplaces, the property would now benefit from a degree of updating. Likely to be a mix of construction including cob, stone and timber, the property has timber windows and is part thatched, part asbestos sheet roof

The accommodation has been divided providing a farmhouse kitchen with solid timber units and Rayburn, utility with shower room, two large reception rooms, sun room and office as well as 5 double bedrooms in the main house. Adjoining is a 2 bedroom self-contained annexe with open plan living accommodation, bathroom and en suite to the larger bedroom.

In all the property extends to about 2.8 acres (1.13 ha)

Gardens & Courtyard - A sweeping drive (first part shared) leads into a part cobbled courtyard beside the house and barns providing lots of space for parking.

The private south facing gardens are laid to lawn there is an extensive vegetable area and a greenhouse.

Barns With Consent - To the east of the courtyard is a range of brick barns which lead down the far end of the courtyard providing lots of useful storage and split to form open fronted garaging, workshop/storage and stables. This range has extant consent to convert as part of 03/P2518 dated 27th May 2008 to form further holiday accommodation.

There is also a timber barn on the far west of the courtyard.

Apple Orchard - Well stocked, this lovely apple orchard is in a lovely south facing position as is wonderfully productive with cider apple varieties.

Option For 2 Holiday Cottages - There is the option to purchase two generous holiday cottages, converted about 15 years ago, finished to a high standard with good quality kitchens, exposed timbers, timber doors and windows. individual oil-fired boilers and private patio areas.

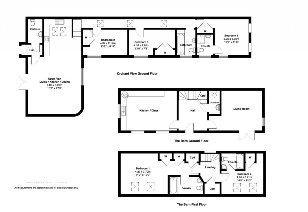
Orchard View, is a single storey 3 bedroom property designed to sleep 6 with the main bedroom having an en suite shower room. Large open plan kitchen/living room.

The Barn, is two storey, with 2 bedrooms each with en suites, large kitchen/dining room and a sitting room.

Services - Mains water and electric. Private drainage to septic tank shared with holiday cottages, the purchaser will be required to upgrading this drainage to meet general binding rules. Standard broadband available, upto 16 mb/s download, mobile coverage available outside (inside limited) with EE, O2 Three and Vodafone (Ofcom).

Council Tax /Rates - The house is band E the Annexe band A.

The two holiday cottages have a rateable value of £5,200 with small business rate relief with zero payable.

Stags

Stags

Bank House
66 High Street
Honiton
Devon
EX14 1PS

+44 (0)1404 45885

Reference: 34466867

Request a viewing for this property

Simply fill out the form below or alternatively call us on 020 7839 0888

* Mandatory fields