12 Bedroom Detached
£1,395,000
Upottery, Honiton

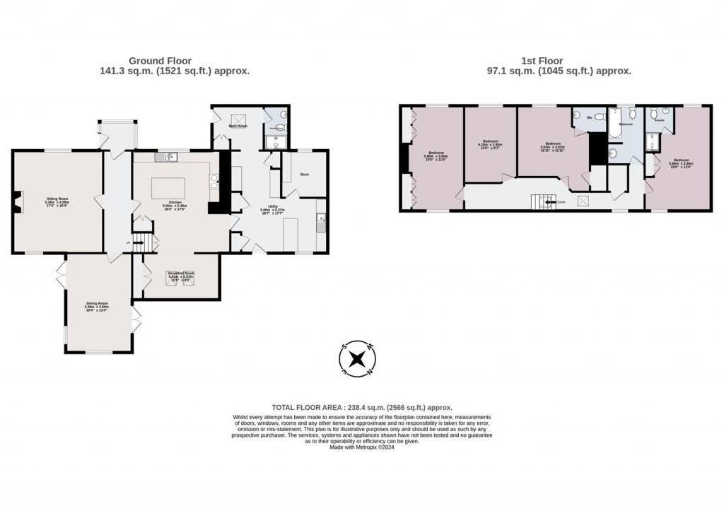
Floorplans For Upottery, Honiton Floorplans For Upottery, Honiton Floorplans For Upottery, Honiton Floorplans For Upottery, Honiton Floorplans For Upottery, Honiton Floorplans For Upottery, Honiton Floorplans For Upottery, Honiton
EPC Graph for Upottery, Honiton

Description


A rare opportunity to acquire a substantial farmhouse with three residential cottages, additional guest accommodation and 4.2 acres of gardens and paddock in a prime Blackdown Hills setting.

Introduction - Twistgates Farm is a substantial country property offering a beautifully presented four-bedroom farmhouse together with an impressive range of three self-contained cottages all with full residential permission, in addition to a holiday loft apartment and an independent guest suite.

Set within approximately 4.2 acres of landscaped gardens and paddock in a highly desirable rural setting, the property provides a rare combination of substantial principal accommodation, multi-generational living potential and income-generating opportunities. The property is further enhanced by a range of restored traditional outbuildings. These may offer potential for alternative uses or conversion, subject to obtaining the necessary planning consents (there is lapsed planning, please ask the agent for further details).

In addition, there is valuable development consent on part of the land for the construction of three lodges. Together, these features create a highly flexible lifestyle property, offering space, privacy, and versatility within a picturesque yet accessible countryside location.

Situation - Twistgates is situated within the Blackdown Hills National Landscape, close to the Devon and Somerset border, surrounded by rolling countryside and unspoilt rural scenery. The property enjoys a peaceful yet accessible location, with nearby village amenities at Upottery and Churchinford, and the market town of Honiton within easy reach. The Jurassic Coast and popular seaside towns including Sidmouth, Lyme Regis and Beer are also readily accessible. Excellent transport links are provided by the nearby A303, with direct rail services to London available from both Honiton (Waterloo) and Taunton (Paddington), together with convenient access to Exeter Airport.

Twistgates Farm House - Twistgates is a well presented unlisted traditional farmhouse offering four generous bedrooms and a wealth of original character. A welcoming central hall leads to a bright sitting room with wood-burning stove, with exposed stonework and beams featured throughout.

To the rear is a well-proportioned dining room, created as a sympathetic extension, while the kitchen features an island, AGA and impressive historic timber panelling. The kitchen opens into a breakfast room with sliding doors to the garden. A large utility room, pantry, downstairs WC and wet room provide excellent practical space.

Upstairs, a light and spacious landing leads to four double bedrooms, including two en-suites, together with a large family bathroom. The bedrooms enjoy attractive views across the surrounding Blackdown Hills countryside.

Cottages - The three cottages are ideal for holiday letting or multi-generational living, as they benefit from full residential planning permission, they are as follows;

Garden Cottage is a charming one-bedroom converted barn with open-plan living, a wood burner, en-suite bedroom and a private courtyard.

Meadow Cottage, converted from the former dairy, provides two bedrooms with a sitting room, a wood burner and kitchen, together with a private courtyard.

Weathervane Cottage, the largest of the cottages, offers three bedrooms, open-plan kitchen/dining and sitting room, wood burner, garden views and a private courtyard.

Guest Accommodation - In addition to the three cottages there is guest accommodation which are a stylish loft apartment and a separate guest suite, each with its own character and private outdoor space.

Apple Loft is a stylish, light-filled loft apartment with open-plan accommodation, balcony views, contemporary fittings and a distinctive freestanding bath.

The Orchard Guest Suite provides additional independent accommodation with a twin bedroom and en-suite bathroom.

Guest facilities include a large shared garden, laundry room, linen store, utility room, WC, office and additional storage.

Outside & Outbuildings - The property extends to approximately 4.2 acres of landscaped gardens and grounds, including a large paddock and an attractive walled kitchen garden with raised beds, greenhouse, seating area and adjoining orchard. To the east of the property is a large field, currently subject to a hay-cutting agreement, which benefits from planning consent for three timber holiday lodges and a lake (planning reference 24/0195/FUL), offering significant future income and development potential. The outbuildings extend to over 1,500 sq ft and include a substantial restored barn with a replacement roof installed in the late 1990s. The barn is supported by lapsed planning consent for conversion, (planning reference 05/3144/FUL), providing additional scope for enhancement, subject to renewed consents.

Services - Mains water and electricity. Private drainage. Oil-fired central heating. Fibre optic broadband connected. EV Charger
Local Authority: East Devon District Council, Rateable Value £11,250

Stags

Stags

21/22 Southernhay
West Exeter
Devon
EX1 1PR

+44 (0)1392 680058

Reference: 34462592