4 Bedroom Detached
£795,000
Tower Cross, Honiton

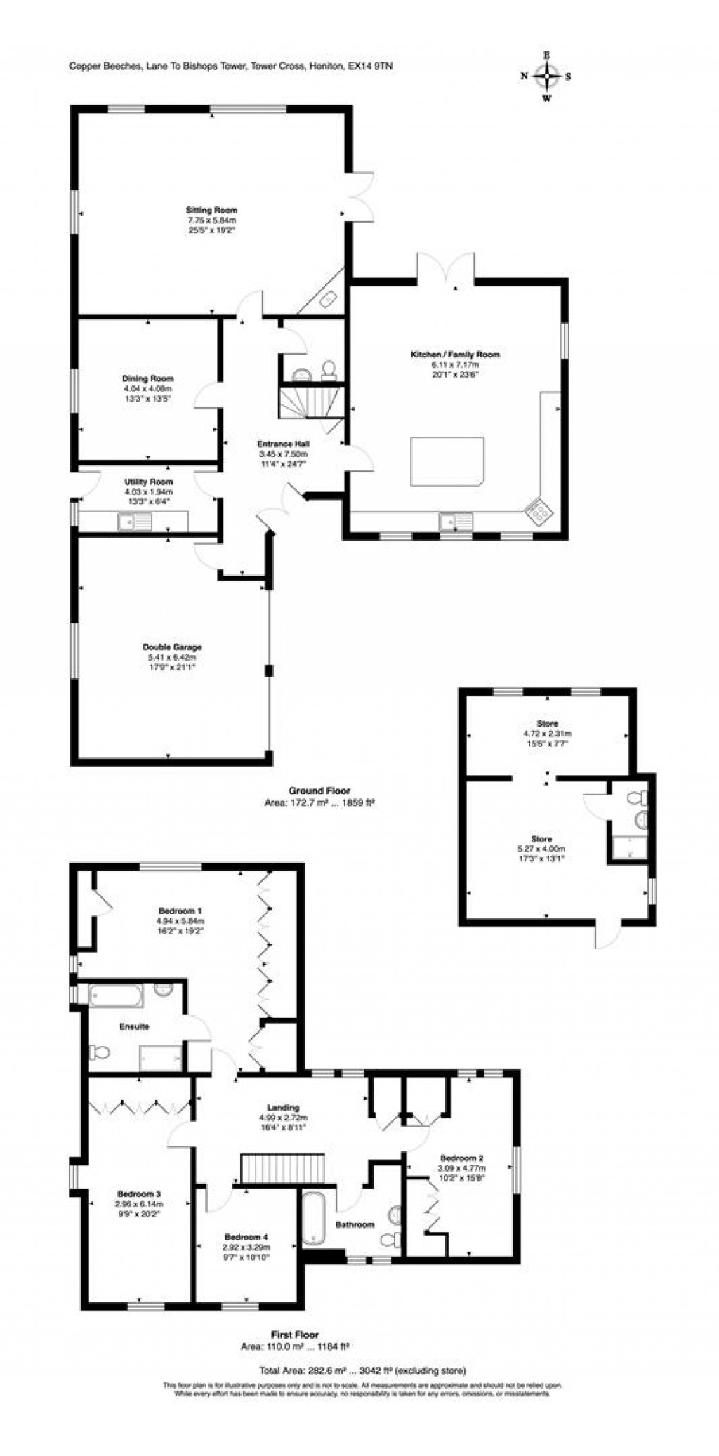
Floorplans For Tower Cross, Honiton
EPC Graph for Tower Cross, Honiton

Description


A modern detached home with attractive gardens, gated parking and easy access to Honiton and the surrounding countryside.

Situation - Copper Beeches sits on the rural edge of the popular village of Offwell, which has a primary school, village hall and the historic Church of St Mary. The surrounding countryside offers excellent walking and riding, close to the East Devon and Blackdown Hills National Landscape. Honiton is about a mile away and provides a wide range of shops, schools, leisure facilities, a mainline railway station to London Waterloo, and excellent road links via the A30 to Exeter, around 16.5 miles to the west.

Description - On the ground floor, a spacious entrance hall leads to a bright triple-aspect sitting room with wood-burning stove and French doors opening onto the rear garden. There is a well-appointed kitchen/breakfast room fitted with a range of modern units, a central island and integrated appliances, along with a separate dining room, utility room and newly installed cloakroom.

On the first floor are four good-sized bedrooms. The principal bedroom is double aspect and includes extensive built-in storage and a recently refitted en-suite with both bath and separate shower. The remaining bedrooms are served by a modern family bathroom.

Outside - The property is approached via wooden double gates, opening to generous a driveway parking area and large double garage with power and light. Landscaped gardens extend around all sides of the house, with the majority lying to the rear and are predominantly laid to level lawn, There is also a water feature, vegetable area and a flagstone patio space. A detached timber summer house offers excellent potential for use as a home office, studio or hobby room, subject to any necessary consents, with its own shower room.

Services - Mains electricity and water. Private drainage. LPG central heating.
Good mobile signal with all major networks. Standard broadband available (Ofcom, 2025).

Stags

Stags

Bank House
66 High Street
Honiton
Devon
EX14 1PS

+44 (0)1404 45885

Reference: 34458076

Request a viewing for this property

Simply fill out the form below or alternatively call us on 020 7839 0888

* Mandatory fields