4 Bedroom Detached
£425,000
Peacocks Close, Cavendish, Sudbury

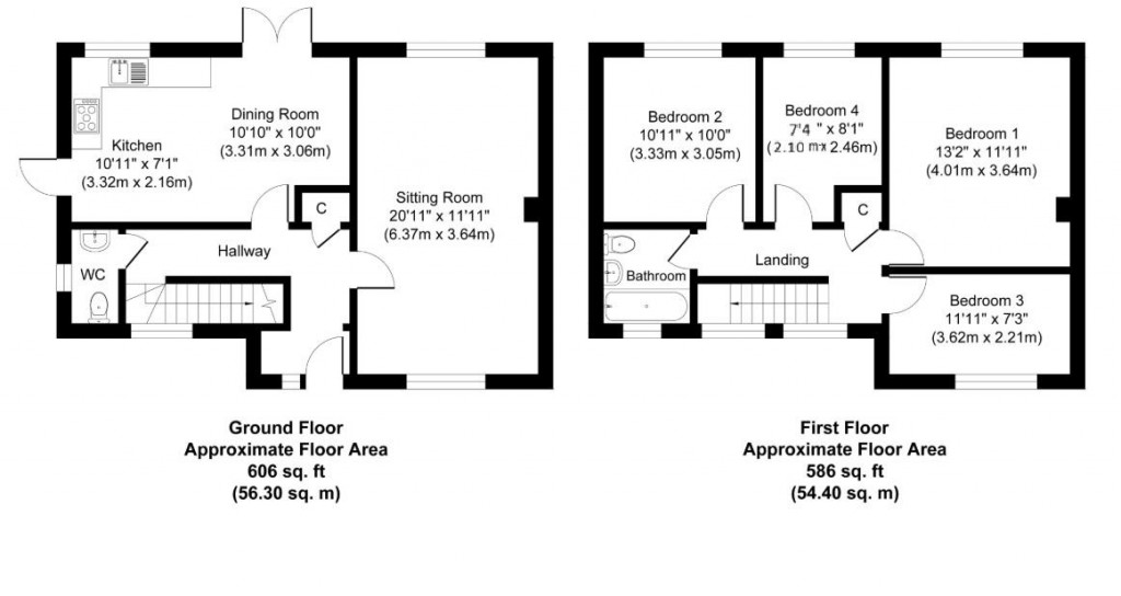
Floorplans For Peacocks Close, Cavendish, Sudbury
EPC Graph for Peacocks Close, Cavendish, Sudbury

Description


Offered for sale with no onward chain is a spacious four bedroom, detached property situated in a quiet cul-de-sac location. Sitting within a large plot with wrap around gardens and overlooking pretty greensward.

Cavendish is one of Suffolk's prettiest villages nestling on the Essex border close to the River Stour, with a picturesque village green, pubs and shops, primary school and parish church. A wider range of facilities can be found at nearby Clare (2 miles), whilst the market town of Sudbury, some 6 miles distant, provides a wide range of amenities including a commuter rail service to London's Liverpool Street.

Ground Floor -

Hallway - Window to front, storage cupboard, stairs to first floor, doors to:

Sitting Room - 6.38m x 3.63m (20'11 x 11'11) - Dual aspect windows, two radiators, Cut Maple woodburning stove.

Kitchen - 3.33m x 2.16m (10'11 x 7'1) - Fitted with base and eye level units, space and plumbing for washing machine, space for fridge/freezer, composite sink, AEG oven, hob with extractor over, water softener window to rear, side door to rear garden.

Dining Area - 3.30m x 3.05m (10'10 x 10'0) - French doors to rear garden, radiator.

Wc - Two piece suite comprising low level wc, vanity hand wash basin, heated towel rail, obscure window.

First Floor -

Landing - Airing cupboard, doors to:

Bedroom One - 4.01m x 3.63m (13'2 x 11'11) - Window to rear, radiator.

Bedroom Two - 3.33m x 3.05m (10'11 x 10'0) - Window to rear, radiator.

Bedroom Three - 3.63m x 2.21m (11'11 x 7'3) - Window to front, radiator.

Bedroom Four - 2.46m x 2.24m (8'1 x 7'4) - Window to rear, radiator.

Bathroom - Three piece suite comprising bath with shower over, vanity hand wash basin, low level wc, heated towel rail, obscure window, extractor fan.

Outside - The property sits on a generous plot with a large laid lawn front garden, two sheds with power and lighting connected. Wrapping around to the side of the property sits a bespoke Baker & Baker garden room with power, lighting and air-con connected. The rear garden features a decked area and low maintenance shrub borders. Gated access leads to the rear parking area where the former garage has been converted to a home office/studio.

Agents Note - AGENTS NOTE - For more information on this property, please refer to the Material Information brochure that can be found on our website.

VIEWINGS
By appointment through the Agents.

SPECIAL NOTES
1. None of the fixtures and fittings are included in the sale unless specifically mentioned in these particulars.

2. Please note that none of the appliances or the services at this property have been checked and we would recommend that these are tested by a qualified person before entering into any commitment. Please note that any request for access to test services is at the discretion of the owner.

3. Floorplans are produced for identification purposes only and are in no way a scale representation of the accommodation.

Cheffins

Cheffins

Cavendish House
27a High Street
Haverhill
Suffolk
CB9 8AD

+44 (0)1440 707076

Reference: 34454210

Request a viewing for this property

Simply fill out the form below or alternatively call us on 020 7839 0888

* Mandatory fields