2 Bedroom Apartment
£325,000
Litchdon Street, Barnstaple

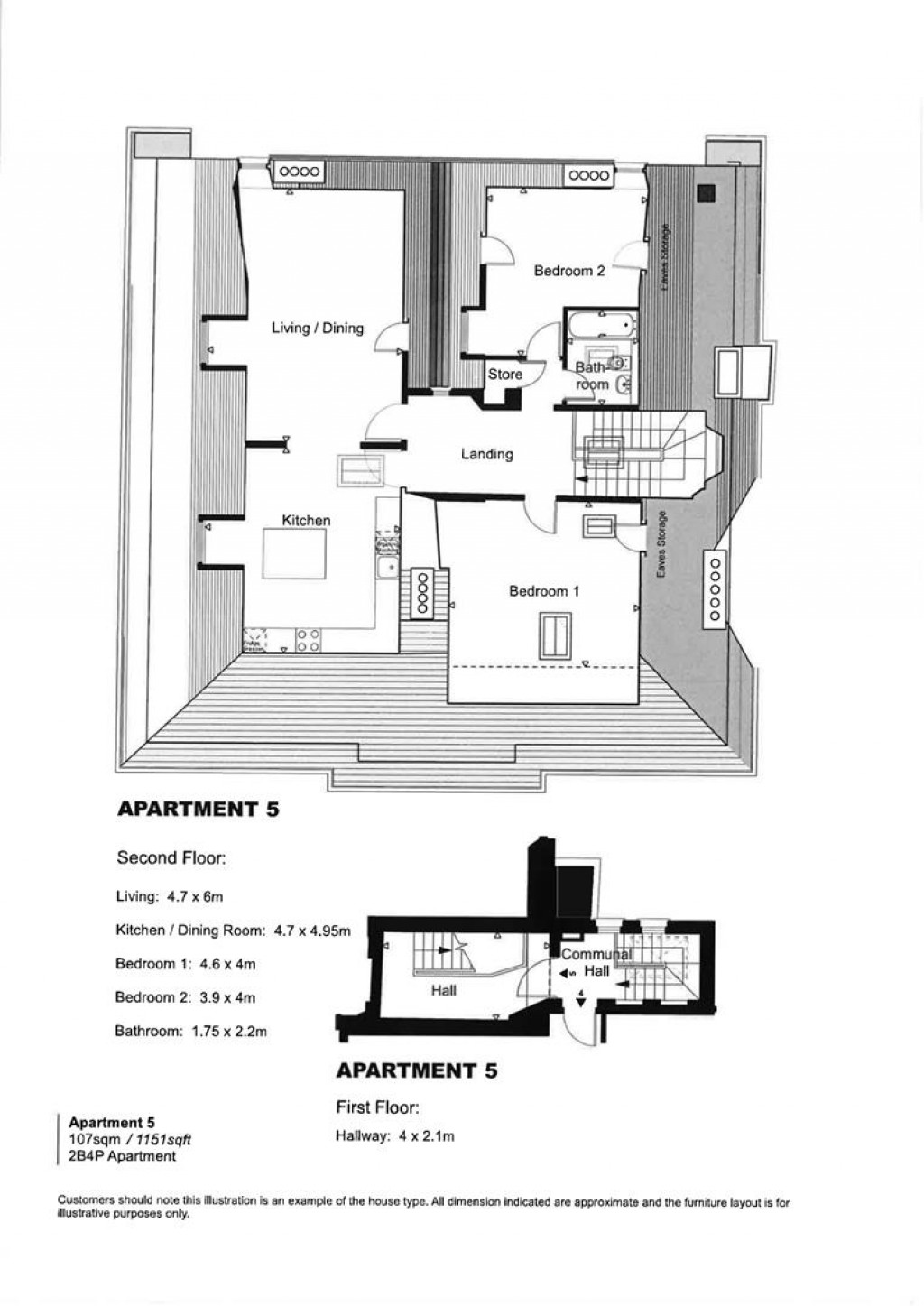
Floorplans For Litchdon Street, Barnstaple
EPC Graph for Litchdon Street, Barnstaple

Description


PENTHOUSE APARTMENT - A spacious two bedroom top floor apartment offering open plan living area and stunning river views. Leasehold - Share of Freehold. Council tax band TBC. EPC rating B.

Situation - This unique collection of 6 newly converted apartments forms a grade II listed Georgian mansion, beautifully positioned along the scenic banks of the River Taw in Barnstaple, the vibrant heart of North Devon, renowned for its rich history, excellent amenities, and transport links.

Description - A spectacular two bedroom penthouse apartment with stunning river views. From the moment you step through the front door, a private staircase leads you up to an impressive top floor home. The spacious open plan kitchen, dining and living area is ideal for entertaining friends and family, while a modern bathroom and ample eaves storage add both style and practicality.

Outside - This home benefits from one allocated parking space and access to the communal garden to the front of the building.

Services - All main services are connected with gas central heating system.
Broadband speed up to 1800 Mbps, Mobile coverage from EE, Three, O2 and Vodafone likely.

Agent Notes - 10 year Build Zone warranty
Management Company charges will be set according to floor area - For more information contact Stags.
Some images have been staged using AI.

Viewings - All viewings are strictly by prior appointment with Stags Barnstaple office on 01271 322833.

Directions - The apartments are situated between Litchdon Street and Taw Vale. Taw Vale runs parallel with the River Taw and runs into The Strand. There are traffic restrictions in both Taw Vale and The Strand. Litchdon Street is a one-way system. Accordingly, with the river to your right, turn into The Strand, turn left into Litchdon Street which can be found behind The Imperial Hotel. Proceed to the end of Litchdon Street and the site can be found on the right-hand side overlooking Taw Vale, the river and Rock Park.
https://w3w.co/book.choice.bottom

Stags

Stags

30 Boutport Street
Barnstaple
Devon
EX31 1RP

+44 (0)1271 322833

Reference: 34452218

Request a viewing for this property

Simply fill out the form below or alternatively call us on 020 7839 0888

* Mandatory fields