3 Bedroom Detached
£300,000
Ely Road, Witcham Toll, Ely

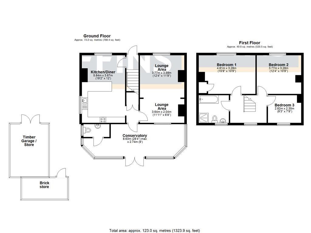
Floorplans For Ely Road, Witcham Toll, Ely
EPC Graph for Ely Road, Witcham Toll, Ely

Description


Cheffins offer to the market this well presented, deceptively spacious, detached family home.

Accommodation comprises of Living Room, Kitchen, Dining Room, Conservatory, Cloak Room, 3 good sized Bedrooms and Family Bathroom completing the accommodation.

Situated on a generous plot with field views to the rear, driveway, parking and Garage.

Entrance Hallway - With door to front. tiled flooring, stairs rising to the first floor, radiator.

Kitchen / Dining Area - With double glazed windows to the front with window shutters, frosted double glazed windows to the side. Fitted with a range of wall and base units, cupboards and drawers with worksurfaces over, integrated oven and grill, 4 ring hot point hob, integrated stainless steel one and a quarter sink with mixer tap, space for washing machine, featured fireplace, tiled flooring and radiator. Door to the rear porch.

Lounge - With featured fireplace, radiator, tiled flooring and double glazed French doors leading through to the..

Conservatory - With tiled flooring, utility section and French doors leading through to the Garden.

Cloakroom - Fitted with a two piece suite comprising of low level WC and wash hand basin. Condensing boiler and opaque double glazed window to the side.

First Floor Landing - With double glazed window to the rear.

Bedroom 1 - Opaque double glazed window with shutters to the front, radiator, wooden flooring and airing cupboard housing the hot water tank.

Bedroom 2 - With double glazed windows with shutters to the front and wooden flooring.

Bedroom 3 - With double glazed windows to the rear, wooden flooring, radiator.

Family Bathroom - With shower cubicle with tiled splashback, panelled bath with splashback surrounding, low level WC, wash hand basin with separate taps, opaque double glazed window to the rear, vinyl flooring, heated towel rail and loft hatch.

Outside - The rear Garden is predominately laid to lawn with small paved area, with two timber framed sheds, brick out building, side gated access, enclosed with wooden fence panels and hedging,

Viewing Arrangements - Strictly by appointment with the Agents.

Cheffins

Cheffins

25 Market Place
Ely
Cambridgeshire
CB7 4NP

+44 (0)1353 654900

Reference: 34445955

Request a viewing for this property

Simply fill out the form below or alternatively call us on 020 7839 0888

* Mandatory fields