5 Bedroom Detached
£1,250,000
Teignmouth Road, Torquay

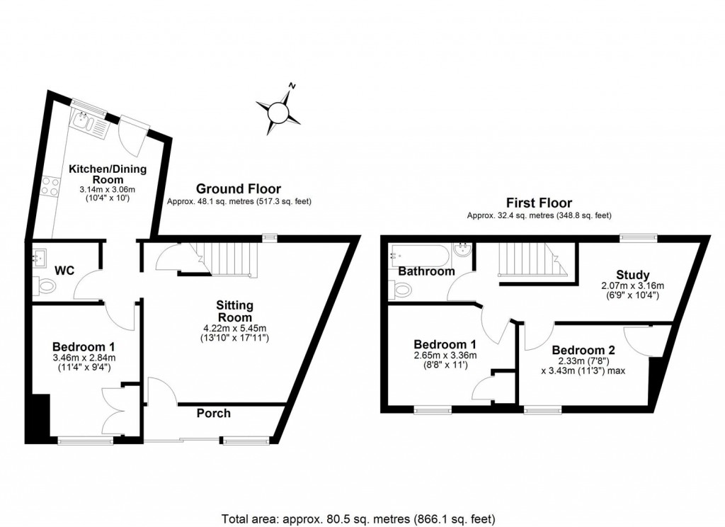
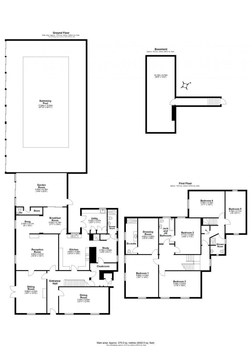
Floorplans For Teignmouth Road, Torquay Floorplans For Teignmouth Road, Torquay
EPC Graph for Teignmouth Road, Torquay

Description


An impressive gated family home offering extensive accommodation, a large indoor swimming pool, private tennis court, generous off-street parking and a separate three-bedroom cottage to the rear. Combining luxury leisure facilities with flexible living in a secure setting with an option to be purchased majoritively furnished. EPC Band: D

Description - An amazing grade2 listed home set behind a gated entrance and approached via generous off-street parking, this impressive residence offers substantial and versatile accommodation arranged over three floors, ideal for modern family living and entertaining on a grand scale. The main house is thoughtfully laid out, combining elegant reception spaces with practical day-to-day rooms, all flowing naturally around a welcoming entrance hall.

A standout feature of the property is the exceptional indoor swimming pool, housed within a dedicated pool hall that creates a striking leisure and wellness space for year-round enjoyment. Whether for fitness, relaxation or entertaining, this area adds a rare and luxurious dimension to the home and enjoys excellent proportions and natural light.

The ground floor living accommodation includes multiple reception rooms, a well-appointed kitchen, dining room and a range of ancillary spaces including a study, snug, utility and cloakrooms, providing flexibility for family life, home working and hosting guests. The basement level offers further useful space, ideal for storage, a gym or hobbies room.

Upstairs, the principal bedroom suite is complemented by additional well-proportioned bedrooms, dressing room and bath and shower rooms, offering comfortable accommodation for family and guests alike. To the rear of the property sits a self-contained two-bedroom cottage, perfect for extended family, guests, staff accommodation or potential rental income, subject to the usual consents.

Externally, the grounds are a real highlight, featuring a private tennis court and landscaped areas that provide both recreational space and privacy. With its combination of leisure facilities, secondary accommodation and secure parking, this is a rare opportunity to acquire a substantial and highly versatile home suited to a wide range of lifestyles.

Stags

Stags

6 Vaughan Parade
Torquay
Devon
TQ2 5EG

+44 (0)1803 200160

Reference: 34445726

Request a viewing for this property

Simply fill out the form below or alternatively call us on 020 7839 0888

* Mandatory fields