3 Bedroom Semi-Detached
£275,000
Cowes, Isle of Wight

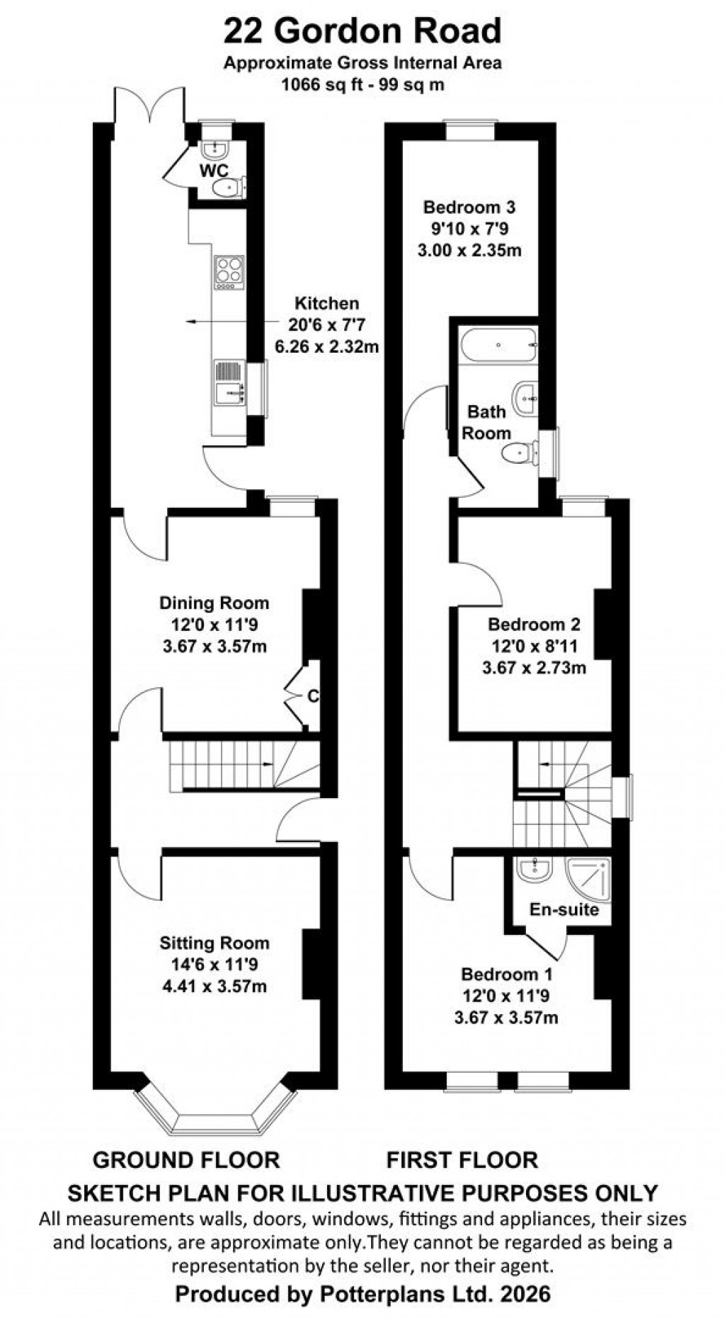
Floorplans For Cowes, Isle of Wight
EPC Graph for Cowes, Isle of Wight

Description


A period semi-detached home with characterful features, redecorated throughout with well proportioned rooms, ideally located within minutes of the popular high street and many sailing clubs.

22 Gordon Road - An attractive period property offering a well-appointed family home, ready to move straight into and finished with neutral décor throughout. Arranged over two floors, the accommodation is thoughtfully laid out with two reception rooms alongside a modern, recently installed kitchen with direct access onto the private rear garden. The property retains characterful features, including feature fireplaces and attractive wooden flooring throughout much of the ground floor. Large windows, including a bay window to the sitting room enhances the home's kerb appeal alongside providing excellent natural light.

Ideally positioned on Gordon Road only a moments' walk from the popular high street, offering a wide range of independent shops, restaurants and bars, as well as sailing facilities including the numerous sailing clubs. Convenient transport links to the mainland via the Red Jet High Speed passenger ferry is also within easy walking distance.

ACCOMMODATION
GROUND FLOOR
ENTRANCE HALL A welcoming entrance with wooden flooring, useful coat hooks beneath the stairs. Thermostat controlling central heating. Staircase rising to first floor. Doors lead through to the sitting room and dining area.

SITTING ROOM A bright room with wooden flooring, coving and attractive architrave details. Large south-west facing bay window providing natural light. Feature fireplace with potential for reinstatement subject to necessary checks.

DINING ROOM Feature fireplace and built-in open fronted cabinetry with shelving to one side. Window overlooking paved outside area.

KITCHEN AREA Newly installed modern kitchen featuring a good range of wall and base units and laminate flooring. Integral appliances including Lamona oven, induction hob with extractor over. Stainless steel 1 ? sink with mixer tap, space for washing machine and dishwasher. Space for large freestanding fridge freezer. French doors opening onto the private rear garden.

DOWNSTAIRS CLOAKROOM WC, small sink with mixer tap, heated towel rail.

FIRST FLOOR
LANDING Staircase rising to a half landing with window, continuing to main landing providing access to all bedrooms and bathroom.

BEDROOM 1 A generous principal bedroom with high ceilings, feature fireplace, dimmable lighting and windows to front elevation. Door to:

SHOWER ROOM EN-SUITE Shower unit, small sink with mirror over, heated towel rail.

BEDROOM 2 A good sized double bedroom carpeted, high ceilings.

BATHROOM A family bathroom featuring bath with shower, sink with mixer tap and cabinet beneath, heated towel rail.

BEDROOM 3 A further double bedroom with window overlooking rear garden with glimpses of the sea across the rooftops beyond.

OUTSIDE Shingles set behind half brick wall with a pathway leading along the side of the house to the front door. Side access to the rear northeast facing garden via a wooden gate. Rear garden with a good degree of privacy, mainly laid to lawn with a raised patio area ideal for outdoor seating alongside raised borders suitable for planting. SHED provides useful storage with garden fully enclosed by fencing.

SERVICES Mains water, electricity, drainage. Gas fired central heating.

Tenure Freehold

EPC Rating D

Council Tax Band B

Postcode PO31 7SL

Viewings All viewings will be strictly by prior arrangement with the sole selling agents, Spence Willard.

IMPORTANT NOTICE: 1. Particulars: These particulars are not an offer or contract, nor part of one. You should not rely on statements by Spence Willard in the particulars or by word of mouth or in writing ('information') as being factually accurate about the property, its condition or its value. Neither Spence Willard nor any joint agent has any authority to make any representations about the property, and accordingly any information given is entirely without responsibility on the part of the agents, seller(s) or lessor(s). 2. Photos etc: The photographs show only certain parts of the property as they appeared at the time they were taken. Areas, measurements and distances given are approximate only. 3. Regulations etc: Any reference to alterations to, or use of, any part of the property does not mean that any necessary planning, building regulations or other consent has been obtained. A buyer or lessee must find out by inspection or in other ways that these matters have been properly dealt with and that all information is correct. 4. VAT: The VAT position relating to the property may change without notice.

Spence Willard

Spence Willard

Pimento House
Number One The Parade
Cowes
Isle of Wight
PO31 7QL

+44 (0)1983 200880

Reference: 34442322

Request a viewing for this property

Simply fill out the form below or alternatively call us on 020 7839 0888

* Mandatory fields