5 Bedroom Detached
£975,000
Foxholes Hill, Exmouth

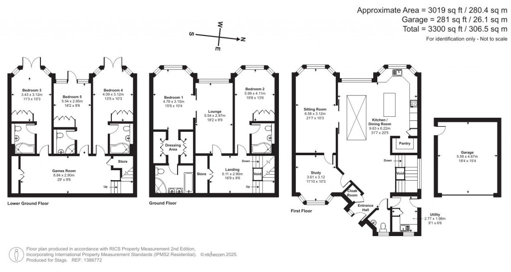
Floorplans For Foxholes Hill, Exmouth
EPC Graph for Foxholes Hill, Exmouth

Description


A stunning, recently constructed, gated detached house located a short walk from the beach on one of the best addresses in Exmouth and being sold with no onward chain.

Situation - Foxholes Hill is widely regarded as one of the best addresses in Exmouth, being minutes walk to the sea front and rising to an elevated position with beautiful views out to sea as far as Berry Head and giving direct access onto the Southwest coastal footpath. Exmouth offers a comprehensive range of amenities including supermarkets, independent shops, cafés, restaurants and excellent leisure facilities. The area is well-served by transport links, including a railway station with direct services to Exeter, good local bus routes and easy access to the M5 motorway and Exeter International Airport.

Description - Constructed in 2024, Jersey House is a stunning detached house offering over 3000 sqft of adaptable accommodation arranged over 3 floors. The accommodation has been designed to offer flexible, family living with the main living area being on the first floor where there is an impressive open plan kitchen/dining room, sitting room and separate study/second sitting room. Stairs go down to a lower level where there are two bedrooms, both with ensuite including a fantastic master bedroom suite with dressing area and walk in wardrobe. Stairs continue to a lower ground where there are 3 ensuite bedrooms all with direct access into the garden and a spacious games area. To the front is a gravelled driveway and large garage and to the rear a grass garden and patio.

Accommodation - Leading off the driveway, a modern front door with side glass panel opens into an entrance hall with a storage cupboard on the left and on the right a cloakroom. Directly ahead the room opens out to an impressive open plan kitchen/dining area with windows to the rear having beautiful views over the entrance to the Exe estuary. The kitchen is appointed with classic shaker-style units at both base and wall level. A generous central island incorporates a breakfast bar and wine fridge and there is a range of integrated appliances, including twin ovens and an induction hob with extractor above. Adjacent to the kitchen is a walk-in larder together with a useful utility room, offering excellent additional storage and workspace. The contemporary design is further enhanced by high-quality fittings such as a Quooker boiling-water tap, Insinkerator, wine cooler and an American-style fridge freezer.

French doors open into a spacious sitting room with feature electric fire and a bay window, again enjoying lovely views across the Exe estuary and a door opens into study/second sitting room.
On the lower ground floor are two double bedrooms, one being the master with a spacious dressing area/office and an ensuite with bath, shower and double vanity hand wash basin. The second bedroom has an en-suite shower room.
Stairs continue to the lower ground floor where there is a games area or space suitable for a gym and three en-suite bedrooms all with access into the garden.

Outside - At the front a sliding electric gate opens to give a gravelled driveway providing parking for up to 3 cars. There is a detached double garage with an electric charging point and a path at the side leading down to the rear garden. From here, there is a wooden staircase rising to a side door into the hall. The rear garden is fully enclosed and laid mainly to lawn with a patio adjacent the house and steps leading up to the lawn.

Services - Utilities: Mains electric, drainage and water.
Heating: Under floor heating throughout run via an air source heat pump.
Tenure: Freehold
Current Council: G
Standard, ultrafast and superfast broadband available. EE, 0s and Vodafone mobile networks available (Ofcom)

Directions - On entering Exmouth, proceed to the seafront and continue to the end by the life boat station and at the roundabout turn right onto Foxholes Hill. After approximately 1/4 mile the entrance to the house is on the left hand side.

Stags

Stags

21 Southernhay West
Exeter
Devon
EX1 1PR

+44 (0)1392 255202

Reference: 34434838

Request a viewing for this property

Simply fill out the form below or alternatively call us on 020 7839 0888

* Mandatory fields