3 Bedroom Semi-Detached
£285,000
Streetly End, West Wickham, Cambridge

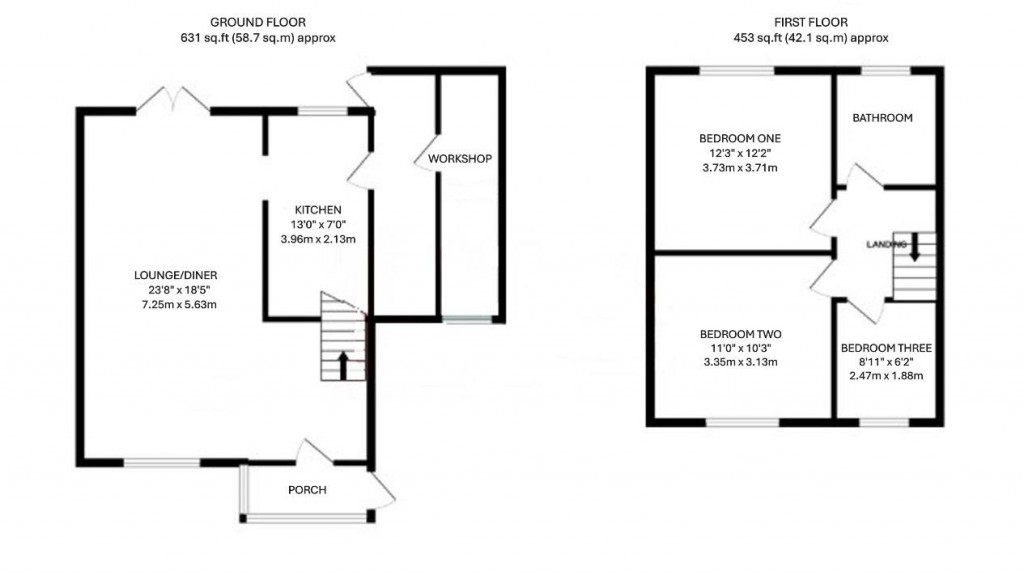
Floorplans For Streetly End, West Wickham, Cambridge
EPC Graph for Streetly End, West Wickham, Cambridge

Description


A three bedroom, semi detached property situated in the village of West Wickham. Offering spacious living accommodation, south facing rear garden with countryside views, car port and driveway. For sale with no onward chain. (EPC Rating E)

West Wickham is an attractive and highly regarded village situated amidst some of Cambridgeshire's most unspoilt countryside just 10 miles south east of the city itself. The nearby village of Balsham (2 miles) has a very highly regarded junior school. Senior schooling is at the respected Linton Village College (6 miles) and buses run regularly to both schools and surrounding towns.

Ground Floor -

Porch - Door to:

Lounge/Diner - 7.21m x 5.61m (23'8 x 18'5) - Window to front, two radiators, French doors to rear garden, stairs to first floor, door to:

Kitchen - 3.96m x 2.13m (13'0 x 7'0) - Fitted base and eye level units, stainless steel sink, space for cooker with extractor over, plumbing and space for washing machine, space for tumble dryer, space for fridge/freezer, door to:

Lean To/Workshop - Window to front, door to rear garden.

First Floor -

Landing - Doors to:

Bedroom One - 3.73m x 3.71m (12'3 x 12'2) - Window, radiator, storage cupboard.

Bedroom Two - 3.35m x 3.12m (11'0 x 10'3) - Window, radiator.

Bedroom Three - 2.72m x 1.88m (8'11 x 6'2) - Window, radiator.

Bathroom - Three piece suite comprising double shower enclosure, pedestal hand wash basin, low level wc, obscure window, radiator.

Outside - A south east facing rear garden, offering vast views over the countryside with a generous patio area for seating and the remainder being laid lawn. There are two sheds and a greenhouse,

Driveway - Carport for one vehicle with driveway space for a further two cars.

Agents Note - AGENTS NOTE - For more information on this property, please refer to the Material Information brochure that can be found on our website.

VIEWINGS
By appointment through the Agents.

SPECIAL NOTES
1. None of the fixtures and fittings are included in the sale unless specifically mentioned in these particulars.

2. Please note that none of the appliances or the services at this property have been checked and we would recommend that these are tested by a qualified person before entering into any commitment. Please note that any request for access to test services is at the discretion of the owner.

3. Floorplans are produced for identification purposes only and are in no way a scale representation of the accommodation.

Cheffins

Cheffins

Cavendish House
27a High Street
Haverhill
Suffolk
CB9 8AD

+44 (0)1440 707076

Reference: 34434030

Request a viewing for this property

Simply fill out the form below or alternatively call us on 020 7839 0888

* Mandatory fields