4 Bedroom Detached
£925,000
Redbridge Lane, Dorchester

Floorplans For Redbridge Lane, Dorchester

Description


Coming soon. Exclusive gated development of luxury homes in a secluded woodland setting. Prices from £925,000.

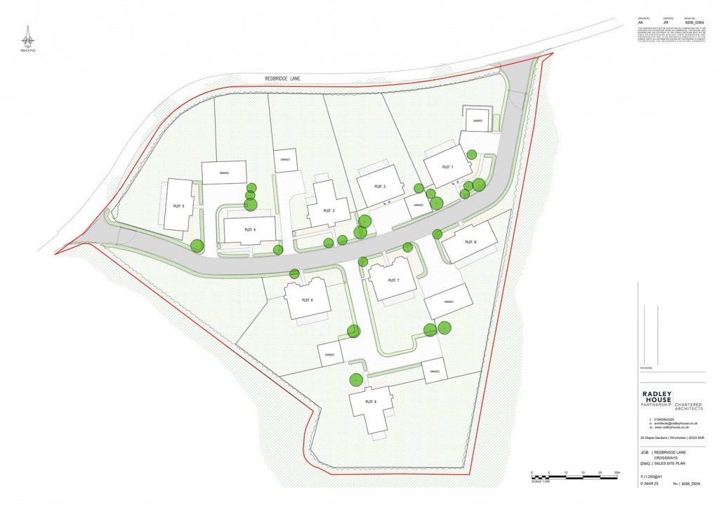
Exclusive Collection Of Luxury Homes - Nestled within a secluded woodland setting, Redbridge Copse is an exclusive private development of luxury homes that seamlessly blend contemporary barn design with classic country architecture.

Behind the secure electric gates, a quiet lane leads to a collection of beautifully detailed residences.

The Setting - Framed by mature trees and surrounded by unspoilt Dorset countryside, Redbridge Copse offers an exceptional lifestyle.

Moments from Dorchester and a short drive from the Jurassic Coast, this unique development brings together rural peace with easy access to the area's finest schools, coastal walks, vibrant market towns and Moreton train station with direct access to London Waterloo.

The Design - Every home at Redbridge Copse is a celebration of refined craftsmanship and modern living.

Large white double-glazed sash windows fill each room with natural light, while white aluminium bi-fold doors open onto private gardens, inviting the outdoors in.

Traditional composite front doors and deep decorative skirting boards honour classic rural style, balanced with clean architectural lines and soft Farrow & Ball tones throughout.

Interiors Tailored For Modern Living - Kitchens
Sleek, handleless German cabinetry finished in Quartz worktops creates a sense of quiet luxury.

Each kitchen is fully fitted with Bosch appliances, including a single oven, combination microwave, tall fridge/freezer, dish washer, and under-counter wine fridge.

A generous breakfast bar offers the perfect spot for morning coffee or informal dining.

Utility Rooms
Functional yet stylish, the utility rooms mirror the kitchen design, complete with matching furniture, quartz worktops, and space for laundry appliances.

Bathrooms & Cloakrooms
Elegantly appointed with Villeroy & Boch sanitaryware and vanity units, complemented by Hansgrohe brassware.

Each bathroom features heated towel rails and soft ambient lighting.

Comfort, Efficiency & Warmth - Redbridge Copse homes are built with sustainability and comfort in mind.

A Daikin Altherma Air Source Heat Pump provides efficient heating and hot water, while underfloor heating runs throughout the ground floor. Upstairs, instant heat radiators maintain perfect comfort in every season.

A log burner in each home adds a warm focal point for cosy evenings, while the Daikin Megaflow pressurised system ensures strong water pressure and consistent performance throughout.

Technology, Security & Peace Of Mind - Connectivity and security are at the heart of Redbridge Copse. Homes are equipped with CAT 6 cabling and full-fibre gigabit broadband, ensuring ultra-fast speeds for work and leisure.

Safety comes as standard, with mains-operated smoke, heat, and carbon monoxide detectors, lockable chrome window furniture, and external lighting for both ambience and security.

Entry to the development is through a remote-controlled five-bar gate, offering complete peace of mind and exclusivity for residents.

Designed For Life - And For The Future - Select homes feature attic trusses, providing the opportunity for easy future conversion into an additional bedroom, home office, gym, or studio - offering flexibility as lifestyles evolve.

Each property also benefits from a large double garage with electric doors and generous loft storage.

Services - Mains water and electricity.
Communal private drainage.
Daikin Altherma Air Source Heat Pump.
Underfloor heating runs throughout the ground floor. Upstairs, instant heat radiators.

SAP reports 92 A (all properties)

Broadband - Superfast speed is available.
Mobile - There is mobile coverage in the area, please refer to Ofcom's website for more details. (https://www.ofcom.org.uk)

Council Tax Band: TBC (Dorset Council - 01305 251010)

Symonds and Sampson

Symonds & Sampson

30 High West Street
Dorchester
Dorset
DT1 1UP

+44 (0)1305 261008

Reference: 34433449

Request a viewing for this property

Simply fill out the form below or alternatively call us on 020 7839 0888

* Mandatory fields