3 Bedroom Semi-Detached
£385,000
Cotton Road, Dartmouth

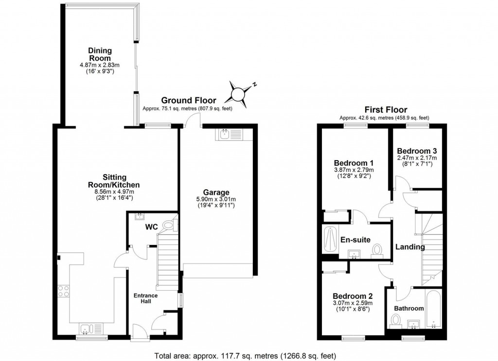
Floorplans For Cotton Road, Dartmouth
EPC Graph for Cotton Road, Dartmouth

Description


A beautifully presented, and much improved 3 bedroom home with parking, garage and garden. EPC band B.

Situation - Dartmouth is not your average sleepy coastal town. It is buzzing with culture, art, gastronomic offerings and a lively community spirit. Well known for its famous Royal Regatta and Royal Naval College, Dartmouth is steeped in history and its architecture is unique to the town. Dartmouth provides a good range of shops, restaurants and galleries and is surrounded by wonderful countryside whilst only a short drive from some of the most beautiful beaches in the area. The A38 Devon expressway is approximately 19 miles away, allowing speedy access to the cities of Exeter and Plymouth and the country beyond whilst main line rail links to London Paddington can be made in Totnes.

Description - Little Cotton Farm is a new development situated at the top of Dartmouth and conveniently located close to a bus route whilst the local supermarkets, schools and leisure centre/swimming pool are all within walking distance. Built by the reputable, independent housebuilder Baker Estates the development features a range of contemporary houses and bungalows only moments from the countryside and stunning South Devon coastline. 24 Cotton Road is a beautifully presented and extended 3 bedroom home that features numerous improvements throughout. The property is situated opposite a large green space and behind is a private lane serving only 3 properties ensuring a great deal of privacy. On the ground floor is the open plan living space with Karndean flooring and a newly built extension to the rear increasing the living space. On the first floor are three bedrooms, one with ensuite shower room and a luxurious family bathroom. Outside there is off-road parking for 2 vehicles in front of a single garage with useful utility area whilst to the rear is the enclosed garden with an area of lawn as well as a paved terrace.

Accommodation - The front door opens to the bright and welcoming entrance hall with useful storage cupboard for shoes and coats as well as a stylish cloakroom with WC, and wash hand basin. Beautiful Karndean flooring flows through to the open plan living space and the stunning kitchen. The kitchen features a range of floor and wall mounted units above and below tiled surrounds and offers an integrated electric oven, hob, fridge/freezer and dishwasher. The worktop neatly wraps around to create a breakfast bar whilst also loosely dividing the kitchen from the living area making this a sociable space and perfect for entertaining. Recently built is a seamless extension to the living space offering a bright and airy room nestled in the garden. Patio doors open to a paved terrace making this a perfect spot for alfresco dining.

Stairs rise to the first floor landing and the three bedrooms as well as a sizeable airing cupboard housing the gas fired boiler. Two of the three bedrooms will comfortably accommodate at least a double bed and have built in wardrobes. Bedroom one has an ensuite shower room with WC, wash hand basin and heated towel rail. Bedroom three is currently utilised as a study and enjoys wonderful far-reaching views over the surrounding countryside. Completing the accommodation on the first floor is a luxurious family bathroom with bath with shower over, WC, wash hand basin and heated towel rail.

Outside - To the front of the property there is off-road parking for two vehicles bordered by low level hedging and a small area of lawn. To the side is a single garage with up and over door offering plentiful storage in the roof space. To the rear of the garage is a useful utility area with space and plumbing for washing and drying machines as well as a door opening to the garden. The enclosed, low maintenance garden has an area of lawn as well as a paved terrace offering plenty of space to sit and admire the garden.

Tenure - Freehold.

Services - Mains gas, electricity, water and drainage. Gas fired central heating.

Local Authority - South Hams District Council, Follaton House, Plymouth Road, Totnes, Devon TQ9 5NE.

Viewing - Strictly by appointment through our Dartmouth Stags Tel: 01803 835336.

Directions - From Stags Dartmouth office follow the one way system left onto Mayors Avenue and after passing Marks & Spencers (on your left), stay left and continue onto the A379/College Way. Proceed up the hill, and carry straight on over the mini round about onto the A3122/Townstal Road. Continue on this road passing Lidl supermarket and the leisure centre on your left and then turn left at the roundabout opposite Sainsburys. Follow the road to the left where you will then find the property on the right hand side.

Stags

Stags

The Granary
Totnes
Devon
TQ9 5GN

+44 (0)1803 865454

Reference: 34433275

Request a viewing for this property

Simply fill out the form below or alternatively call us on 020 7839 0888

* Mandatory fields