2 Bedroom Semi-Detached Bungalow
£225,000
Freemantle Road, Rugby, CV22

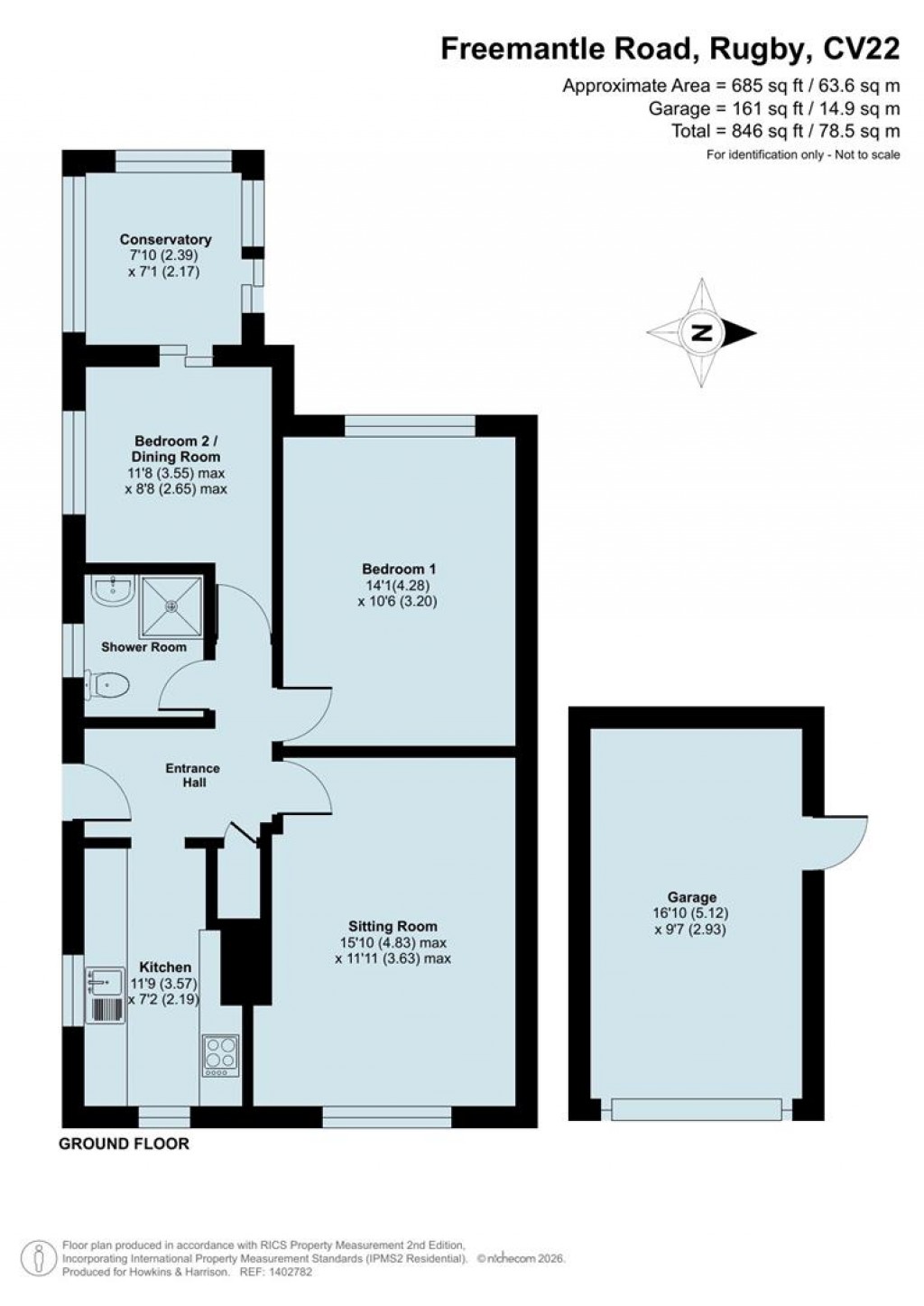
Floorplans For Freemantle Road, Rugby, CV22
EPC Graph for Freemantle Road, Rugby, CV22

Description


A two bedroom semi detached bungalow with off road parking and single garage offered for sale with no onward chain and located within walking distance of local amenities.

Location - Bilton is located approximately 1.5 miles from Rugby Town Centre and is ideally placed to access major road networks and Rugby Railway Station with its frequent service to London Euston which takes just under 50 minutes. The village still retains some of its original character including a village green which contains the remains of an ancient cross and stocks and is renowned in the Spring for a wonderful array of crocus. The many amenities include two public houses, two supermarkets, a doctor's surgery, chemist, butchers, specialist cheese shop and three churches which include St Marks Church which dates back to the 14th century. Primary and junior schooling is available at Bilton Infant School and Bilton Junior School and further primary education is available at Crescent Independent School and Bilton Grange. Secondary schooling includes Rugby High School, which is within a short walking distance of the property, nearby Bilton School, Lawrence Sheriff School, Princethorpe College as well as world famous Rugby School.

Ground Floor Accommodation - Enter into a spacious hall with useful storage cupboard and wood effect flooring. Doors provide access to the accommodation including the kitchen which overlooks the front aspect and is fitted with cream high gloss wall and base kitchen cabinets and drawers with work surface over. Integrated appliances include an electric hob with extractor fan over and electric hob with space and plumbing for a washing machine, dishwasher and fridge/freezer. There is metro tiling to the splash back areas and light wood effect flooring.

The sitting room is accessed via a multi paned door and overlooks the front aspect with the focal point of the room being a marble style feature fireplace. A fully tiled shower room is fitted with a vanity unit with wash hand basin inset and glass display cabinets, mirror and lighting over along with a further wall hung cupboard, WC, chrome heated towel ladder and shower enclosure. The principal bedroom is opposite the shower room and is fitted with a variety of light beech wardrobes to one wall, matching bedside tables, dressing table and desk. Bedroom two is currently being used as a dining room and has sliding patio doors to the conservatory with fitted blinds, tiled flooring and patio doors which provide access to the garden.

Outside - To the front of the property there is a block paved drive providing parking which extends along the side of the house and leads to the single garage. The front garden is particularly low maintenance with gravelled borders. A side gate provides access to the rear garden which is enclosed by close board fencing. There is a paved patio enclosed by low level picket fencing. A picket gate opens to a lawn and a block paved path which extends to a paved path and a gravelled area and raised bed behind the garage.

Viewing - Strictly by prior appointment via the agents Howkins & Harrison. Contact Tel:01788-564666.

Local Authority - Rugby Borough Council - Tel:01788-533533.

Council Tax Band -C

Fixtures And Fittings - Only those items in the nature of fixtures and fittings mentioned in these particulars are included in the sale. Other items are specifically excluded. None of the appliances have been tested by the agents and they are not certified or warranted in any way.

Services - None of the services have been tested and purchasers should note that it is their specific responsibility to make their own enquiries of the appropriate authorities as to the location, adequacy and availability of mains water, electricity, gas and drainage services.

Floorplan - Howkins and Harrison provide these plans for reference only - they are not to scale.

Important Notice - Every care has been taken with the preparation of these Sales Particulars, but complete accuracy cannot be guaranteed. In all cases, buyers should verify matters for themselves. Where property alterations have been undertaken buyers should check that relevant permissions have been obtained. If there is any point, which is of particular importance let us know and we will verify it for you. These Particulars do not constitute a contract or part of a contract. All measurements are approximate. The Fixtures, Fittings, Services & Appliances have not been tested and therefore no guarantee can be given that they are in working order. Photographs are provided for general information and it cannot be inferred that any item shown is included in the sale. Plans are provided for general guidance and are not to scale.

Howkins & Harrison

Howkins & Harrison

7-11 Albert Street
Rugby
Warwickshire
CV21 2RX

+44 (0)1788 564666

Reference: 34430558

Request a viewing for this property

Simply fill out the form below or alternatively call us on 020 7839 0888

* Mandatory fields