3 Bedroom Terraced
£525,000
High Street, Linton, Cambridge

Floorplans For High Street, Linton, Cambridge

Description


A characterful Grade ll Listed home situated in a prominent position on the well-served High Street. The property offers a wealth of period charm, together with a secluded garden, off street parking and an annexe.

The well regarded village of Linton has a pleasing blend of both modern and period properties as well as a good range of local amenities including shops, public houses, post office, primary school and village college with its own sports centre. The market towns of Haverhill and Saffron Walden are approximately 8 miles distant and the University City of Cambridge is around 11 miles away. Audley End mainline station offering a commuter service to London's Liverpool Street is around 11 miles away and the M11 motorway access point is within approximately 8 miles at Duxford (junction 10).

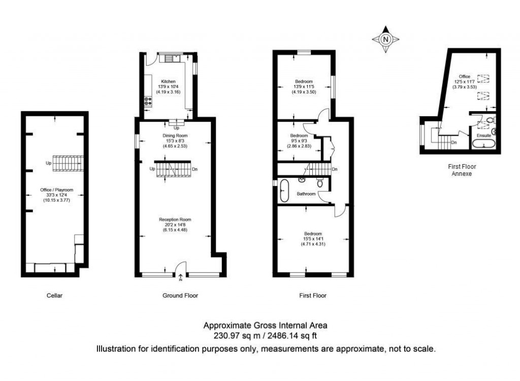
Ground Floor -

Sitting Room - Entrance door, obscure glazed windows to the front aspect providing a good degree of natural light, stairs rising to the first floor and opening into:-

Dining Room - Window to the side aspect and stairs leading to the kitchen and stairs leading down to the basement.

Kitchen - Fitted with base level units with granite work tops, double butler sink, space and plumbing for dishwasher and washing machine, space for an Aga and free-standing fridge freezer, glazed windows to the side and rear aspects together with a partially glazed stable door providing access to the rear garden.

Basement - A central staircase leads to a workshop area on one side, while the opposite side features extra reception space enhanced by built-in storage cupboards.

First Floor -

Landing - Doors to adjoining rooms.

Bedroom 1 - Window to the front aspect.

Bathroom - Comprising pedestal wash basin, low level WC, panelled bath with overhead dual head shower, heated towel rail, underfloor heating and obscure glazed window to the side aspect.

Bedroom 2 - Dual aspect with windows to the side and rear aspects.

Bedroom 3 - Window to the side aspect.

Outside - This charming flint-walled courtyard features timber gates, providing access for off-street parking. It includes an open former barn with an outhouse, WC, storage, garden access, and stairs to a first-floor annexe. The garden boasts a central lawn, rear flower bed, mature planting and a useful shed.

Annexe - A feature window is positioned halfway up the staircase, leading onto the landing with a door that opens into:

Bedroom - Window to the side together with a Velux window and door to:-

Bathroom - Comprising ceramic wash basin, low level WC, panelled bath with shower attachment above and Velux window.

Viewings - By appointment through the Agents.

Cheffins

Cheffins

Hill Street
Saffron Walden
Essex
CB10 1JD

+44 (0)1799 523656

Reference: 34428278

Request a viewing for this property

Simply fill out the form below or alternatively call us on 020 7839 0888

* Mandatory fields