3 Bedroom Country House
£750,000
Redbridge Road, Crossways, Dorchester

Floorplans For Redbridge Road, Crossways, Dorchester Floorplans For Redbridge Road, Crossways, Dorchester

Description


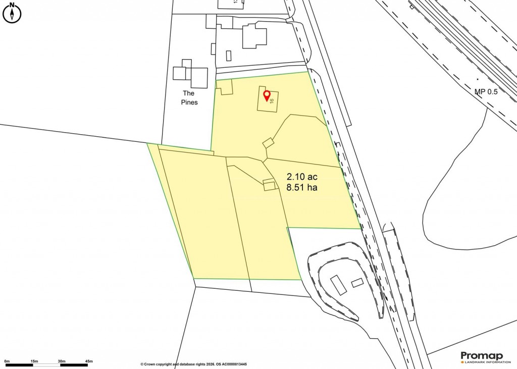
Detached 1930s bungalow set within 2.1 acres of gardens, paddocks, and mature woodland, with far-reaching views across rolling countryside towards the Purbeck Hills.

The Property - A detached 1930s brick-built bungalow offering flexible accommodation, set within approximately two acres of gardens, paddocks, and mature pine woodland. Enjoying a secluded position and approached via a private driveway, the property boasts enviable, far-reaching southerly views across rolling countryside towards the Purbeck Hills beyond.

In addition to the main residence, the property benefits from garaging, small stables adjoining the paddocks, and a timber summer house, all set within the curtilage.

The bungalow has been recently renovated throughout and is presented in a clean, neutral palette. The accommodation comprises three double bedrooms, with further potential to extend by converting the spacious loft, subject to the necessary planning consents.

The sitting room features an open fireplace and French doors leading onto a paved terrace, creating a cosy space with direct access to the outdoors. The dining room, fitted with a wood-burning stove, provides a warm and inviting area for family meals and flows naturally into the open-plan kitchen/breakfast space. Late-afternoon sunlight streams through the west-facing bay window, enhancing the room's bright and welcoming atmosphere. The contemporary kitchen is well appointed with a built-in induction hob, electric oven with extractor hood, ample storage, and space for a fridge/freezer, dishwasher, and washing machine.

There are three well-proportioned double bedrooms, two of which benefit from attractive bay windows, together with a family bathroom fitted with a bathtub.

Outside - Two paddocks are situated to the south of the property, separated by gated access and enjoying wonderful open views across the surrounding countryside. Timber stables are positioned at the upper end of the paddocks, with a separate access gate providing direct access onto Redbridge Road.

To the south-east of the property lies an area of predominantly mature pine woodland, creating a peaceful and secluded environment with attractive glimpses of the wider landscape. Within the woodland is a concrete platform, previously utilised as a caravan base.

The gardens are deer-fenced and include a level area ideal for vegetable growing, should one wish, along with a further garden area featuring an elevated summer house from which to enjoy the views.

Electric iroko gates open onto a private tarmac driveway, leading to a generous parking and turning area. This is complemented by a double garage, an additional single garage, and a large timber shed

Situation - Located in a rural setting on the Purbeck and West Dorset boundary, the village of Crossways is approximately 1 mile away. Local amenities include a parish church, first school, library, doctor's surgery, and a local store with an off-licence and shop/post office, as well as a regular bus service. The surrounding countryside is ideal for walking, cycling, and riding, and the Jurassic Coast can be reached within a short drive of around 15 minutes.

Moreton Rail Station, also around 1 mile away, provides mainline services to London Waterloo, Southampton, and Bournemouth. Dorchester, approximately six miles to the east, offers a wider range of facilities, including the Dorset County Hospital and two railway stations with services to London Waterloo and Bristol Temple Meads.

Directions - What3words///alternate.dent.textiles

Services - Mains electricity and water.
Modern electric heating.
Private drainage (Please see agents notes).

Broadband - Standard speed available
Mobile - There is mobile coverage in the area, please refer to Ofcom's website for more details. (https://www.ofcom.org.uk)

Council Tax Band: F (Dorset Council - 01305 251010)

Agents Notes - Ride on mower included in sale.
Fully rewired throughout in 2024.
Solar panels installed 2011.
Please note the septic tank does not comply with the general binding regulations. On agreement of sale, the vendors have agreed to replace the private drainage before completion.

Symonds and Sampson

Symonds & Sampson

30 High West Street
Dorchester
Dorset
DT1 1UP

+44 (0)1305 261008

Reference: 34427218

Request a viewing for this property

Simply fill out the form below or alternatively call us on 020 7839 0888

* Mandatory fields