4 Bedroom Detached
£400,000
Lynn Road, Littleport, Ely

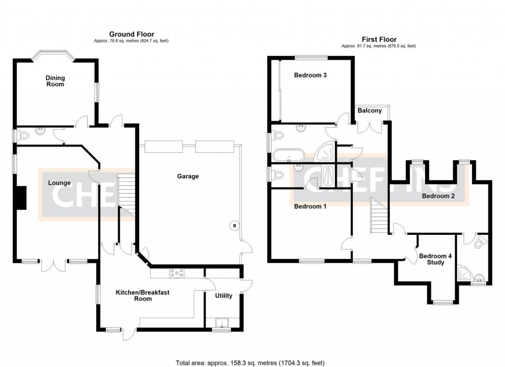
Floorplans For Lynn Road, Littleport, Ely
EPC Graph for Lynn Road, Littleport, Ely

Description


An immaculately presented detached family home built in 2002, situated within a non estate location and within walking distance of the mainline railway station.

The property offers spacious accommodation comprises entrance hall, cloakroom, open plan kitchen/dining room, utility room, lounge, separate dining room, 4 bedrooms (2 ensuite) and family bathroom, together with first floor balcony having partial river views. There is a spacious driveway and double garage offering ample parking and low maintenance rear garden with workshop.

Entrance Hall - With door and double glazed window to front aspect, solid engineered oak flooring, matwell.

Cloakroom - With low level WC, wash hand basin, double glazed window to side aspect, radiator.

Dining Room - With double glazed bay window to front aspect, double glazed window to side aspect, radiator, engineered oak flooring.

Lounge - With feature inset fireplace, double glazed French doors and windows to rear garden, double glazed window to side aspect, 2 radiators.

Open Plan Kitchen / Dining Room - With 1 1/4 ceramic sink unit and drainer, fitted with a range of matching units including base units, wall mounted units and drawers, space for freestanding Rangemaster style cooker with extractor hood above and tiled splashback, integral dishwasher, space for freestanding fridge/freezer, door leading to rear garden, double glazed windows to rear and side aspects, door leading into double garage.

Utility Room - With inset ceramic sink unit, fitted with a range of matching units including base units and wall mounted units, space and plumbing for washing machine and tumble drier, radiator, door leading to side passageway, double glazed window to rear aspect.

First Floor Landing - With 2 radiators, double glazed French doors to roof terrace having partial river views to front, airing cupboard housing hot water tank, built-in storage cupboard.

Bedroom 1 - With double glazed window to rear aspect, radiator.

Ensuite - With updated suite comprising double size shower cubicle with drench size shower head and further shower attachment, low level WC, wash hand basin, heated towel rail, double glazed window to side aspect.

Bedroom 2 - With 2 double glazed windows to front aspect, 2 radiators.

Ensuite 2 - With tiled shower cubicle with shower attachment, low level WC, vanity inset wash basin, heated towel rail, velux to rear aspect.

Bedroom 3 - With built-in wardrobes, double glazed window to front aspect with river views, radiator.

Bedroom 4 - With double glazed window to rear aspect, alcove storage, radiator.

Bathroom - With updated suite comprising freestanding bath tub, tiled shower cubicle with drench size shower head, low level WC, vanity inset wash basin, heated towel rail, double glazed window to side aspect.

Outside - To the front of the property you will find a spacious block paved driveway leading to a double garage being 19'8" x 16'7" with 2 electric rollover doors, gas fired boiler, radiator, light and power connected, door leading to side passageway. Gated access leads to a low maintenance enclosed garden which offers timber decking, gravel borders, paved patio and workshop measuring 9'1" x 7' with light and power connected.

Viewing - Strictly by appointment with the Agents

Cheffins

Cheffins

25 Market Place
Ely
Cambridgeshire
CB7 4NP

+44 (0)1353 654900

Reference: 34425622

Request a viewing for this property

Simply fill out the form below or alternatively call us on 020 7839 0888

* Mandatory fields