Plot
£220,000
Norton Green, Isle of Wight

Floorplans For Norton Green, Isle of Wight Floorplans For Norton Green, Isle of Wight

Description


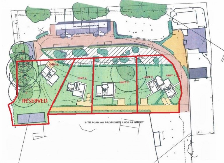
Nestled within the picturesque hamlet of Norton Green is this good sized, building plot with adjacent services and planning permission to build a four bedroom detached house.

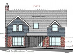
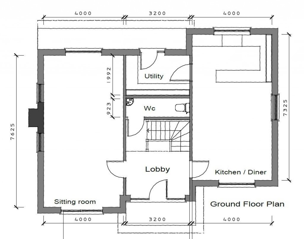
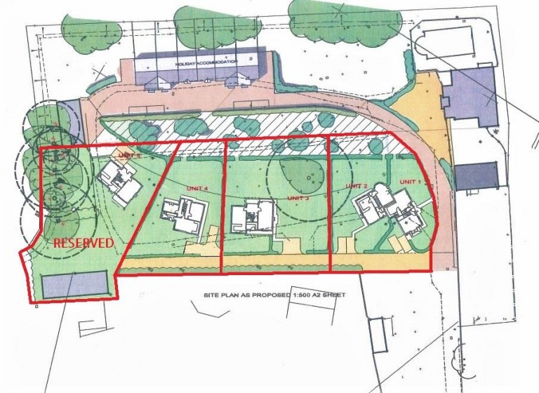
Description - Plot 3, Woodpecker Drive represents an outstanding opportunity for individuals seeking to construct a bespoke residence, thoughtfully designed to accommodate contemporary family living and featuring an elegant combination of materials across its façades. The plot forms part of a select development approved under planning reference 20/00779/FUL (PP-08650316), granting permission for the creation of seven distinctive detached properties. Current planning consent allows for a dwelling of approximately 168 square metres, positioned on the largest plot within the development.

Location - The hamlet of Norton Green, much of which lies within a designated Conservation Area, enjoys a secluded setting approximately one mile from the village of Freshwater, which offers a comprehensive range of shops, services, and amenities. The surrounding area boasts several attractive beaches, extensive protected downland and coastal walks, as well as the SSSI-designated Afton Nature Reserve and the Yar Estuary. Additionally, the harbour town of Yarmouth, with its mainland ferry connections and renowned sailing facilities, is located within a five-minute drive, making this a highly desirable and conveniently situated location.

Viewings - Strictly by appointment with the selling agent Spence Willard

IMPORTANT NOTICE 1. Particulars: These particulars are not an offer or contract, nor part of one. You should not rely on statements by Spence Willard in the particulars or by word of mouth or in writing ("information") as being factually accurate about the property, its condition or its value. Neither Spence Willard nor any joint agent has any authority to make any representations about the property, and accordingly any information given is entirely without responsibility on the part of the agents, seller(s) or lessor(s).2. Photos etc: The photographs show only certain parts of the property as they appeared at the time they were taken. Areas, measurements and distances given are approximate only. 3. Regulations etc: Any reference to alterations to, or use of, any part of the property does not mean that any necessary planning, building regulations or other consent has been obtained. A buyer or lessee must find out by inspection or in other ways that these matters have been properly dealt with and that all information is correct. 4. VAT: The VAT position relating to the property may change without notice.

Spence Willard

Spence Willard

The Old Bank
Tennyson Road
Freshwater
Isle of Wight
PO40 9AB

+44 (0)1983 756575

Reference: 34423876

Request a viewing for this property

Simply fill out the form below or alternatively call us on 020 7839 0888

* Mandatory fields