3 Bedroom Bungalow
£495,000
South Molton

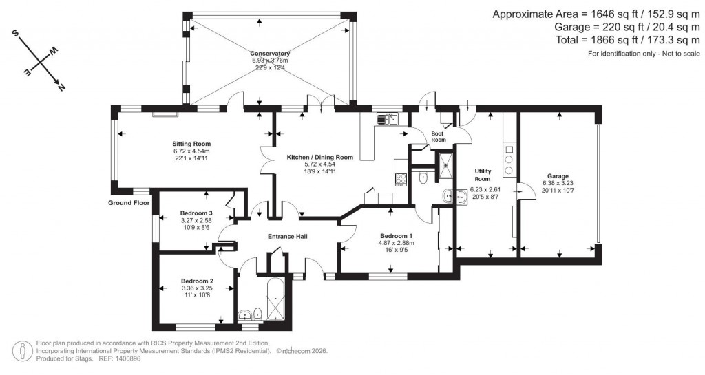
Floorplans For South Molton
EPC Graph for South Molton

Description


A beautifully presented detached bungalow on a favoured development on the edge of South Molton. Hall, sitting room, conservatory, fitted kitchen/dining room, boot room, utility, 3 double bedrooms (master en-suite) and bathroom. Garage/storage, enclosed gardens and parking. EPC Band B

Situation - 1 Spotter Close is on the popular new development known as Bee Meadow which is set on the north western edge of the traditional and popular town of South Molton.
South Molton is a traditional and well-served market town offering an excellent range of amenities including schooling from nursery through to secondary level, a Sainsbury's supermarket, Post Office, pubs, cafés and a wide selection of independent and artisan shops. The town is particularly renowned for its award winning twice-weekly pannier market and weekly livestock market. The nearby A361 provides convenient access to Barnstaple to the west and Tiverton, the M5 and Tiverton Parkway mainline station to the east, with direct services to London Paddington in approximately two hours. Both Exmoor National Park and the North Devon coastline are within easy reach.

Description - Offered to the market with no onward chain, 1 Spotter Close is a most attractive detached bungalow, forming part of the highly regarded Bee Meadow development recently constructed by Baker Estates, positioned on the north-western edge of the thriving market town of South Molton.

The property occupies a pleasant setting within this popular modern development and offers well-proportioned accommodation arranged on one level, extending to approximately 1,646 sq ft, with the added benefit of an integral garage and private manageable gardens.

Accommodation - A part-glazed front door opens into a welcoming entrance HALL, complete with cloaks storage and doors leading to the principal living spaces. At the heart of the home is an impressive open-plan KITCHEN/DINING ROOM, thoughtfully designed with the kitchen area fitted with an excellent range of contemporary units incorporating a ceramic sink, integrated dishwasher, fridge freezer, electric double oven and four-ring hob with extractor. The dining area provides ample space for entertaining and enjoys glazed double doors opening into both the sitting room and conservatory, creating a wonderful flow throughout the living space.

The SITTING ROOM is a particularly appealing room, enjoying a triple aspect with built-in book shelving and a feature ornamental fireplace. Glazed double doors lead directly into the superb CONSERVATORY which has been added by the current vendors forms a delightful addition to the original property. It has under-floor heating and sliding doors opening directly onto the garden, making it a versatile space for year-round enjoyment.

Off the kitchen, further practical spaces include a useful BOOT ROOM with boiler cupboard, shelved storage and a door leading outside. Off this room, part of the original double garage has been cleverly converted to create a generous UTILITY ROOM, fitted with a Belfast sink, plumbing for appliances, space for further white goods and a four-oven electric AGA, complemented by fitted cupboards and open shelving. A door leads through to the remainder of the original GARAGE area, suitable for a small vehicle, with extensive shelving and an electric up-and-over door.

The property offers THREE WELL APPOINTED DOUBLE BEDROOMS. The principal BEDROOM ONE benefits from fitted wardrobes and a modern EN-SUITE SHOWER ROOM comprising a fully-tiled shower cubicle, WC, wash basin and heated towel rail. BEDROOMS TWO and THREE are also doubles, with bedroom three having a built-in wardrobe. The BATHROOM is fully tiled and fitted with a panelled bath, WC, wash basin and heated towel rail.

Outside - Outside, the property enjoys a fully enclosed and private rear garden, predominantly paved for ease of maintenance, with well-stocked shrub borders providing colour and interest. There is an area of garden to the front and is laid mainly to gravel with natural hedge planting around the edge. Adjacent to the garage is a wide area providing off-street parking for two vehicles.

Services And Further Information - All mains services are connected. Central heating via radiators, under-floor electric heating to the conservatory.
Mobile phone signal is 'good' from all major providers (Ofcom). Standard, Superfast and Ultrafast broadband is available (Ofcom).
Construction - Standard (balance of 10 year NHBC Warranty from build completion).
Management Charge - Approx. £275 per annum to cover maintenance of communal areas.

Viewing - Strictly by confirmed prior appointment please through the sole selling agents, Stags on 01769 572263.

Directions - From South Molton Town Square proceed west out of the square signed towards Barnstaple (A361). Continue along Barnstaple Street and continue straight on at the crossroads towards Barnstaple, Stay on this road to the top of the gentle hill and take the third left turn into Deerhill Road (Bee Meadow). Continue into the estate and 1 Spotter Close will soon be found on the right.
What3words Ref: ///inclines.composts.surface

Stags

Stags

29 The Square
South Molton
Devon
EX36 3AQ

+44 (0)1769 572263

Reference: 34422664

Request a viewing for this property

Simply fill out the form below or alternatively call us on 020 7839 0888

* Mandatory fields