6 Bedroom Land
£250,000
Ashbrittle, Wellington

Floorplans For Ashbrittle, Wellington

Description


A substantial barn for conversion in a fine rural setting within 0.47 acres for sale by INFORMAL TENDER 12 noon on Thursday 12th February 2026

Situation - The barn is part of Normans Farm which is situated in a fine position, surrounded by open countryside overlooking an attractive valley near to the Somerset / Mid Devon border.

The village of Ashbrittle is about 1.7 miles from the farm and the larger village of Appley (3.2 miles) has a primary school, village store and The Globe Inn.

The town of Wiveliscombe is within 5 miles and provides schooling and a range of shops, pubs and restaurants.

Wellington is approximately 8.5 miles away and offers a Waitrose supermarket and access to the M5 motorway at Junction 26 whilst the county town of Taunton is 15 miles away and has rail services to London Paddington.

The Blackdown, Brendon and Quantock Hills as well as Exmoor National Park are all within a short distance and provide spectacular scenery and excellent walking, riding and fishing whilst the rugged Somerset and North Devon coastline is also within easy reach.

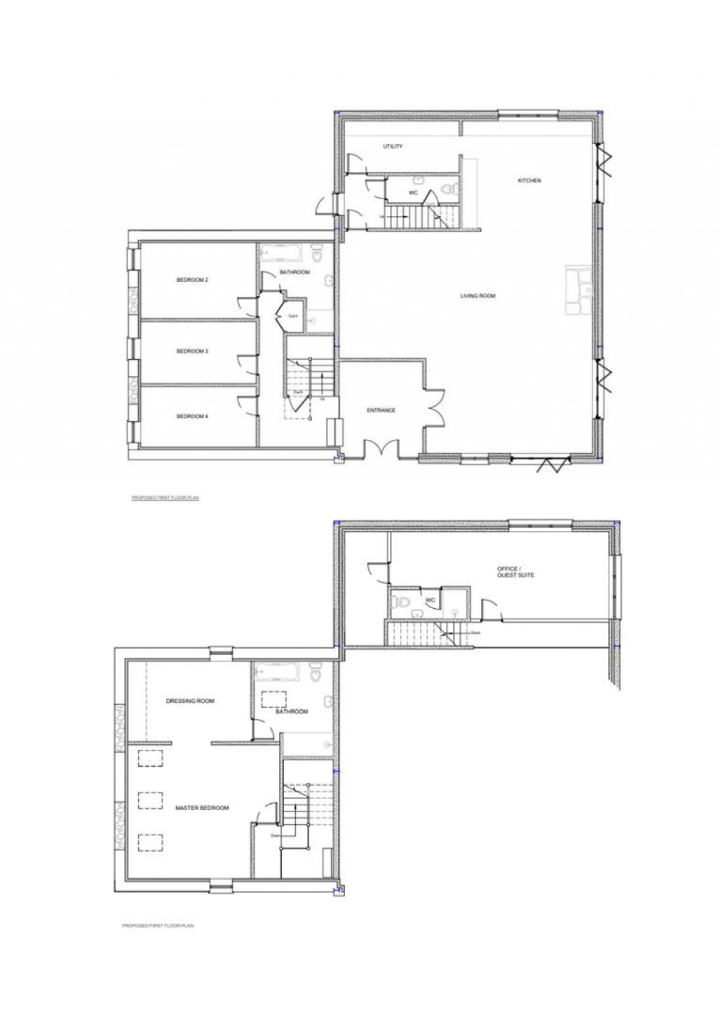
Description - Lower Barn is part of Normans Farm and comprises a modern agricultural building and attached stone barn which has planning consent for conversion to a residential dwelling.

The existing buildings include a covered cattle yard measuring approximately 13.5m x 10.9m and an attached stone barn measuring approximately 8.5m x 7.92m with planning consent to create a single storey dwelling with six bedrooms; three bath / shower rooms and open plan living / kitchen and dining space.

Outside there is proposed garden and parking areas to the west of the barn and part of the field to the south is included.

Services - There are no services currently connected. We are informed that there is electricity to the site. There is an option to join the neighbour's water supply (borehole) or to install an independent borehole. A private drainage system will need to be installed.

Access - The property has a right of access over a driveway shared with two other properties.

Planning - Planning consent was granted to convert the building to a dwelling under reference reference: 01/23/0005/CQ. The date of the approval is 15th September 2023.

Directions - From Wellington head towards Tiverton on the A38 and after approximately 3.5 miles turn right signposted to Greenham and Appley.

Continue on this road, passing through the village of Greenham and at the next junction (Appley Cross) turn right towards Appley. After 430 yards, just before reaching The Globe Inn turn left towards Stawley and continue for just under one mile and turn left towards Ashbrittle.

Continue for about 500 yards, cross the stone bridge and turn right towards Clayhanger. Follow this road for about 0.75 miles and at Waldron's Cross turn right towards Waterrow. After 0.25 miles, as the road bears sharp right the entrance lane to LOT 2A will be found straight ahead,

What3words - Reference/// ///cheaper.fabric.stocky

Stags

Stags

5 Hammet Street
Taunton
Somerset
TA1 1RZ

+44 (0)1823 256625

Reference: 34381702

Request a viewing for this property

Simply fill out the form below or alternatively call us on 020 7839 0888

* Mandatory fields