4 Bedroom Detached
£425,000
Poulter Road, Banbury

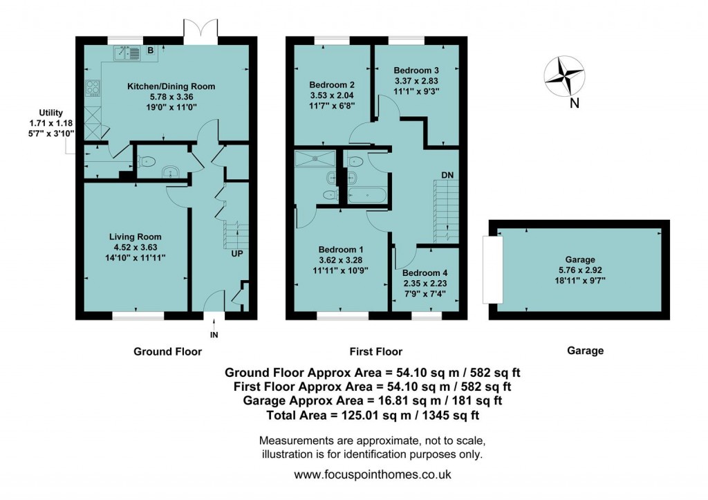
Floorplans For Poulter Road, Banbury
EPC Graph for Poulter Road, Banbury

Description


A four bedroom detached property located in a quiet cul-de-sac benefitting from an ensuite to the master bedroom, a south facing rear garden plus a garage and off road parking

Situation - BANBURY is conveniently located only two miles from Junction 11 of the M40, putting Oxford (23 miles), Birmingham (43 miles), London (78 miles) and of course the rest of the motorway network within easy reach. There are regular trains from Banbury to London Marylebone (55 mins) and Birmingham Snow Hill (55 mins). Birmingham International airport is 42 miles away for UK, European and New York flights. Some very attractive countryside surrounds and many places of historical interest are within easy reach.

A floorplan has been prepared to show the dimensions and layout of the property as detailed below. Some of the main features are as follows:

* Entrance hall with door to lounge, door to kitchen/diner, downstairs WC, small storage cupboard, understairs storage, stairs to the first floor, tiled flooring.

* The lounge which is accessed off the hallway has a window to the front.

* The kitchen/diner with tiled flooring continued from the hallway is fitted with a range of white gloss base and eye level units with worktop over, double oven, integrated fridge freezer, integrated dishwasher, four ring gas hob with extractor over, space for table and chairs, window and door to rear garden, door to utility.

* Utility fitted with units to match the kitchen, space and plumbing for washing machine.

* First floor landing with doors to all rooms, hatch to loft, aircon unit which has heating and cooling functions,

* Bedroom one is a double with window to front and an ensuite comprising double walk-in shower, WC and wash hand basin, tiled walls and tiled flooring.

* Bedroom two is a double with a window to the rear.

* Bedroom three is a double with window to rear.

* Bedroom four is a single with window to front.

* The family bathroom is fitted with a white suite comprising bath with shower over, WC and wash hand basin, tiled flooring and part tiled walls.

* The rear garden is mostly laid to lawn with a patio seating area immediately outside the back door which also leads down to the gated side access. There is a covered pergola on the patio creating a covered seating area and a border of bushes and shrubs towards the rear.

* To the front there are two off road parking spaces and a small lawned area with a range of bushes and shrubs.

* Garage located underneath the neighbouring property. As you look at the property it is the second one in from the left. The garage is leasehold and there is a peppercorn rent.

* 10 year NHBC warranty from date of construction in 2021. (Five years remaining)

Services - All mains services are connected. The boiler is located in the kitchen. There is an estate charge of approximately £190 per annum.

Local Authority - Cherwell District Council. Council tax band E.

Energy Rating: B - A copy of the full Energy Performance Certificate is available on request.

Viewing - Strictly by prior arrangement with the Sole Agents Anker & Partners.

Anti Money Laundering Regulations - In accordance with current legal requirements, all prospective purchasers are required to undergo an Anti-Money Laundering (AML) check. An administration fee of £30 plus VAT per applicant will apply. This fee is payable after an offer has been accepted and must be settled before a memorandum of sale can be issued.

Anker & Partners

Anker & Partners

31-32 High Street
Banbury
Oxfordshire
OX16 5ER

+44 (0)1295 271414

Reference: 34375412

Request a viewing for this property

Simply fill out the form below or alternatively call us on 020 7839 0888

* Mandatory fields