Land
£50,000
Luppitt, Honiton

Floorplans For Luppitt, Honiton

Description


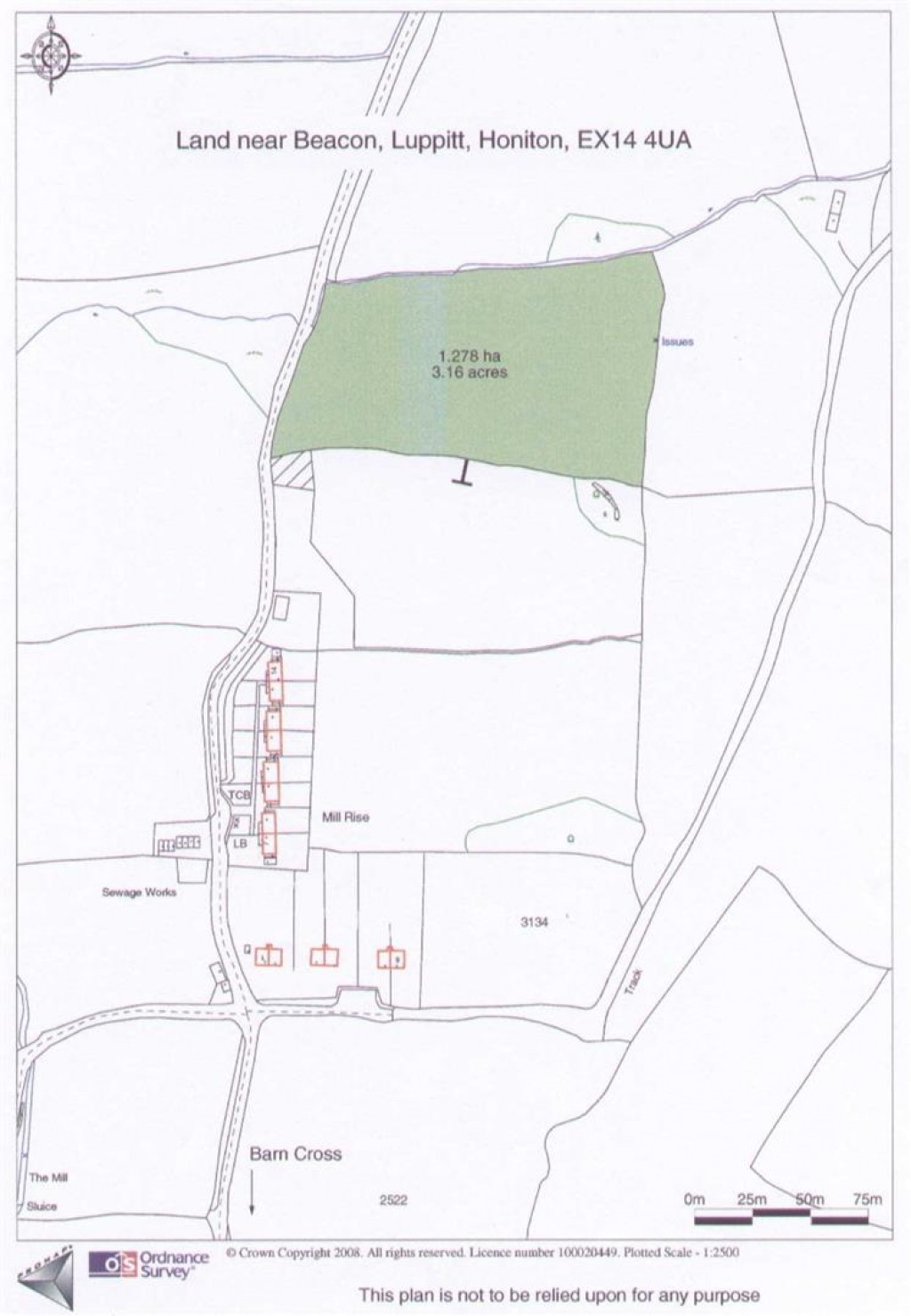
Attractively situated meadow, copse and fruit orchard all in 3.16 acres. Planning Permission for 10m x 6.8 m barn (Ref 12/2749/FUL - dated 24.5.2013)

Situation - Set in the Parish of Luppitt, the land has fantastic views over this wonderful quiet valley in the Blackdown Hills National Landscape (AONB). The villages of Luppitt and Combe Raleigh are close by, both with churches, village halls. There are a variety of paths and lanes, including nearby Dumpdon Hill a local landmark and former Iron Age Hill Fort. The land lies just a few miles from Honiton, with a main line railway station to London Waterloo, and famous for its High Street and excellent antique trade.

Description - Extended to about 3.16 acres (1.28 ha), this gently sloping field has been split into a number of convent side paddocks. Sheltered by mature hedge boundaries and tall oak and ash trees with an array of Flora and Forna. There are a number of fruit and nut trees, including apple, pear, cherry and cob nuts, sheltered by a biomass variety of willow. There is a lightly managed soft fruit area with varieties of currants and raspberries. To the north eastern corner two small streams convene with an old copse, with a number of bluebells in the spring.

Access - Access is direct via an improved entrance from the council road.

Planning Permission - Planning permission was granted (Ref 12/2749/FUL), dated 24th May 2013 for a new access and barn, and has been substantially started. The access was installed as can been seen and the foundation prepared for a 10 m x 6.8 m barn for agricultural storage. Plans available from the EDDC website.

Directions - What3Words: ///otters.newer.impulses

Viewing Arrangements - Viewings with details in hand, after calling Stags on 01404 45885.

Stags

Stags

Bank House
66 High Street
Honiton
Devon
EX14 1PS

+44 (0)1404 45885

Reference: 34374593

Request a viewing for this property

Simply fill out the form below or alternatively call us on 020 7839 0888

* Mandatory fields