5 Bedroom Detached
£750,000
South Milton, Kingsbridge

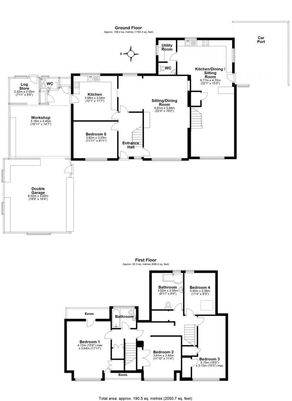
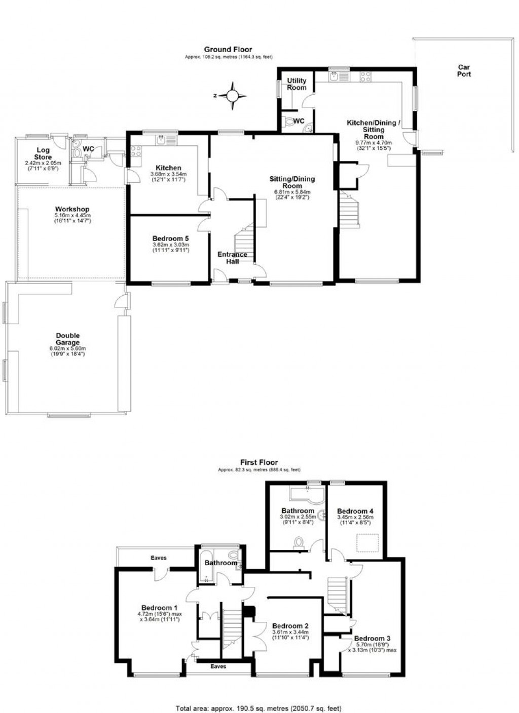
Floorplans For South Milton, Kingsbridge
EPC Graph for South Milton, Kingsbridge

Description


A fabulous detached home, with attached annexe, well-suited for multi-generational living or combined as a super generously sized family home that is located in the heart of the highly desired village of South Milton, close to the beach. Freehold. Council Tax Band E & A. EPC: Band E.

Situation - South Milton is a very pretty village and an ideal central location for the beautiful local beaches and the neighbouring towns of Salcombe and Kingsbridge. Within walking distance of the beautiful South Milton Sands, a long sweep of golden sand and rock pools, with crystal-clear waters and its iconic rock archway. It is a couple of miles from the village of Thurlestone which has its own general store and post office, the Thurlestone Hotel offering luxury leisure facilities and a 9-hole golf course and Thurlestone Golf Club (18 holes). The South West Coastal Path can be followed from South Milton to either the surfing beach of Bantham or the fishing village of Hope Cove.

Kingsbridge is situated approximately 3 miles to the east, at the head of the Salcombe estuary and offers an excellent range of independent shops, supermarkets and local facilities including a health centre/cottage hospital as well as a secondary school, and sports centre.

Description - Centrally positioned within a generous plot in the highly sought after village location of South Milton and within easy reach of the beach and the golf club is this spacious family home. Offering flexible accommodation with vast potential, including a separate annexe which is ideal for dependant family, as an income stream or combined as a substantial family home.

Accommodation - The accommodation is presently configured as two dwellings: the main house and the annexe, although could easily be returned to one large family home.
Access from the driveway and into the inviting entrance hall, with door into the large open-plan sitting, dining room has a wood burning stove and enjoys glorious views across the garden and village towards the church. (within the sitting room is a blocked connecting door into the annexe that could easily be re-opened if desired). The kitchen breakfast room is fitted with a range of wall and base units, with spaces for appliances. Utility room. Double bedroom.

Annexe - ground floor has a lovely sized, 'L'-shaped open plan living, dining, kitchen. The kitchen area is well fitted with a comprehensive range of wall and base units with built in oven, hob with extractor over, door to garden. Utility room with space and plumbing for a washing machine, door to rear garden. Cloakroom/WC.

On the first floor of the main home there are two double bedrooms and a family bathroom complete with bath, hand held shower, WC and wash hand basin.
At the end of the landing there is a connecting door into the annexe side which provides two double bedrooms and a family bathroom with bath and shower over.

Outside - The gardens nicely surround the property with a level lawn area to the front, beautifully planted borders, raised decked terrace, vegetable beds, pond, a greenhouse and a potting shed. To the rear of the property there is a patio area, grass bank and a range of mature trees.

Attached to the property is a most useful store, log store along with a double garage/workshop. In addition there is ample driveway parking.

Services - Mains electric, drainage and water. LPG heating and electric heating. Solar panels for water.
Superfast broadband is available at this location along with all major mobile network providers likely in the area. (OfCom).

Tenure - Freehold.

Local Authority - South Hams District Council, Follaton House, Plymouth Road, Totnes, Devon, TQ9 5NE.

Directions - From Kingsbridge take the A381 towards Salcombe. After approximately 2 miles turn right signposted South Milton. Continue into the village and the driveway to Marlin will be found a short distance after the village hall on the right hand side.

Viewing Arrangements - Strictly by appointment please through our Kingsbridge branch.

Stags

Stags

83 Fore Street
Kingsbridge
Devon
TQ7 1AB

+44 (0)1548 853131

Reference: 34355972

Request a viewing for this property

Simply fill out the form below or alternatively call us on 020 7839 0888

* Mandatory fields