Land
£395,000
Tawstock, Barnstaple

Floorplans For Tawstock, Barnstaple

Description


An unusual opportunity to acquire a 0.85 acre freehold development site with consent pending to convert two existing barns into 5 open market residential dwellings in a timeless and tranquil hamlet with beautiful views. For sale by online auction. Section 106 requirement of £27,409. EPC Exempt. Council Tax Exempt. Freehold.

Situation & Amenities - On high ground and off a quiet, little-used country lane with superb views over open countryside in a sleepy Hamlet, yet within 15 minutes' drive of Barnstaple. As the regional centre, Barnstaple houses the area's main business, commercial, leisure and shopping venues, as well as district hospital and live theatre. At Barnstaple there is access to the North Devon Link Road (A361) which runs on in a further 45 minutes or so to Jct.27 of the M5 and where Tiverton Parkway nearby offers a fast train service to London Paddington in just over 2 hours. From Barnstaple there are also train services to Exeter which can be accessed nearer to the site at Umberleigh and other secondary locations. The market towns of Bideford and South Molton are also within easy access, as is the coast at Instow and Westward Ho! about half an hour away, with the surfing beaches of Croyde, Saunton (also with Championship Golf Course), Putsborough and Woolacombe a little further. Exmoor and Dartmoor National Parks are easily accessible, as is the Cornish border. Tawstock village is about ? mile away and offers a thatched primary school and church.

Description & Planning - The site is currently a courtyard of barns. The appropriate planning consent under North Devon Council Planning Reference 79691 'conversion of two redundant barns to form five dwellings, demolition of further redundant building and change of use of land to provide residential curtilage, communal green space and associated development'. This consent is subject to a Section 106 Agreement, with contributions payable amounting to £27,409.00.
The site contains three barns and some outbuildings. Barn 1 has a concrete pad foundation and steel-framed walls with concrete panels and steel cladding to the walls. The roof is made from corrugated man-made sheet cladding. Barn 3 is sat on concrete pad foundations with concrete strip foundations. It is timber-framed including blockwork walls with timber sleepers and steel cladding to the walls. The roof is made from corrugated metal. There is an additional redundant barn that is to be demolished due to falling into significant disrepair.
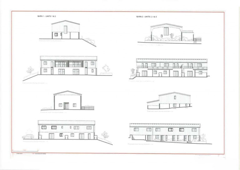
The proposed new houses are arranged as a pair of semi-detached two-storey units (1 & 2) and a small terrace of three two-storey units (3, 4 & 5). Unit 1 (right-hand side) covers 191 sq m and comprises: On the Ground Floor - open-plan LIVING ROOM/DINING ROOM/KITCHEN, CLOAKROOM/UTILITY ROOM, STUDY/BEDROOM 4. On the First Floor - 3 BEDROOMS, BALCONY, 2 BATHROOMS. Unit 2 (left-hand side) 190 sq m - not mirrored but similar to Unit 1. There are GARDENS to front. Unit 3 (right-hand side) 224 sq m: Ground Floor - ENTRANCE HALL, CLOAKROOM, open-plan LIVING ROOM/DINING ROOM/KITCHEN, SNUG, OFFICE/BEDROOM 4, UTILITY ROOM. First Floor - 3 BEDROOMS, BALCONY, 2 BATHROOMS. Unit 4 (middle) 224 sq. m - not mirrored but similar to Unit 3. Unit 5 (left-hand side) 220 sq m - not mirrored but similar to Unit 3. There are GARDENS to rear.
Across the development, 15 PARKING SPACES are proposed, which allows for 2 private spaces for each dwelling, plus 1 visitor space for each. There is to be a COMMUNAL GREEN SPACE and seating to take in the wonderful views. There are 2 access points - the main access and a secondary one which is shared with the original farmhouse. There are a series of former farm buildings/stables to be retained, which could potentially be utilised as storage for recycling, dustbins or general storage purposes etc.

Special Note - It is considered that there may be potential to vary the planning consent - possibly to create smaller units or to demolish the barns and build five new dwellings in their place, or several larger ones perhaps, subject to any necessary revision of the current planning consent being achieved.

Services - We understand that a package treatment plant is proposed for foul sewage. We understand that an electricity supply is already on site, as well as a private borehole water supply. There is also an ancient cesspit on site.

Directions - Leaving Barnstaple and crossing the River Taw over the old bridge, continue up to the stones roundabout. Cross straight over in the direction of Sticklepath and immediately after the 1st set of traffic lights bear left signed Lake and Tawstock. Continue through the village of Lake and on to Tawstock. Just after the turning on the left to the church, take the next turning left. Continue on this lane for about 1/4 mile and turn next right, signed Smemington. The site will be seen within a short distance on your right-hand side.

Stags

Stags

30 Boutport Street
Barnstaple
Devon
EX31 1RP

+44 (0)1271 322833

Reference: 34355951

Request a viewing for this property

Simply fill out the form below or alternatively call us on 020 7839 0888

* Mandatory fields