2 Bedroom Terraced
£300,000
Ash Gardens, Dartington, Totnes

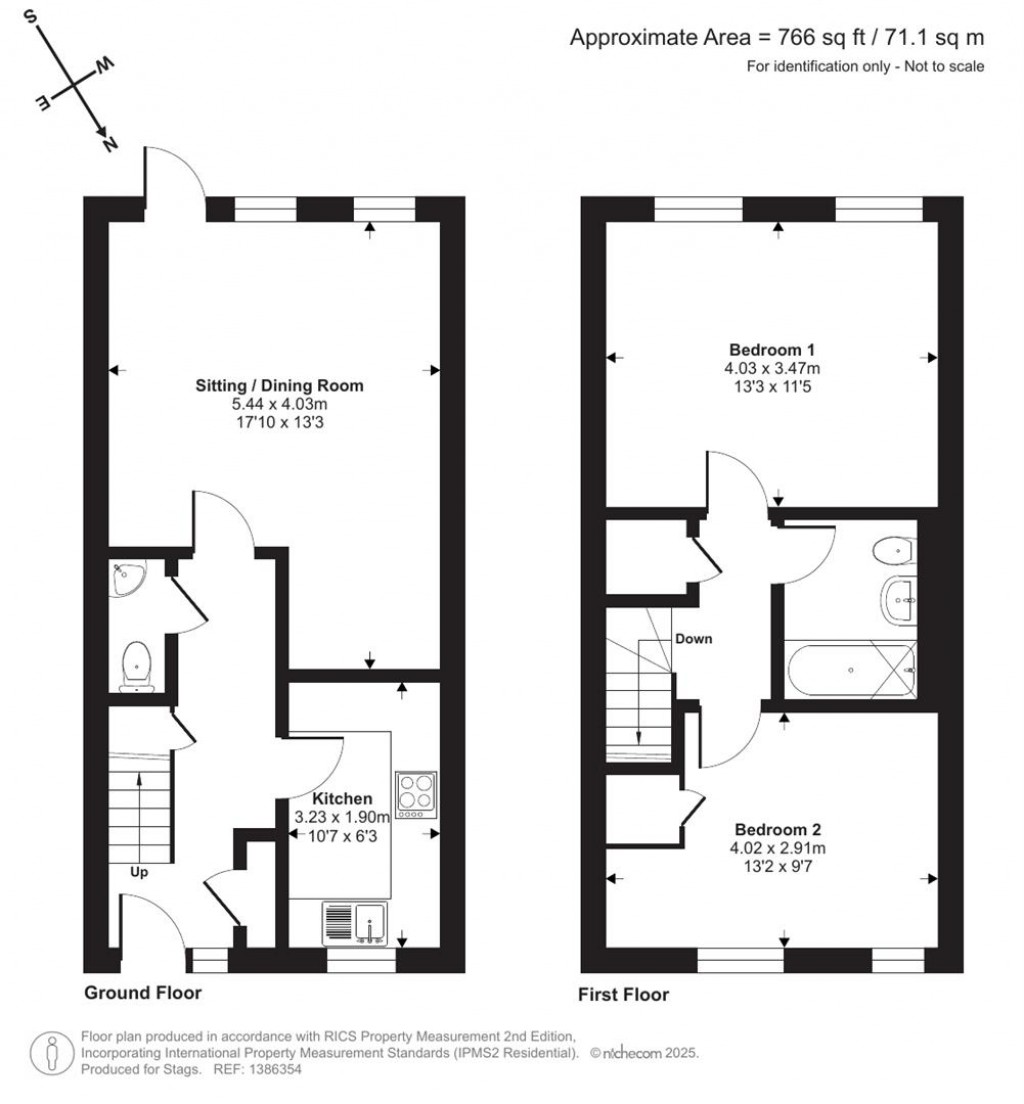
Floorplans For Ash Gardens, Dartington, Totnes
EPC Graph for Ash Gardens, Dartington, Totnes

Description


A contemporary two bedroom home with private gardens and parking, set within one of South Devon's most sought-after village locations. EPC Band: B.

Situation - Dartington is a highly regarded village on the outskirts of Totnes, offering a strong sense of community and a good range of amenities including a primary school, village store and post office, Dartington retail centre, a historic inn and parish church. The wider parish includes the Dartington Hall Estate, renowned for its attractive grounds and cultural events.

Totnes is close at hand, providing independent shops, cafés, schools and mainline rail services to London Paddington. The A38 Devon Expressway lies approximately 4.5 miles away, giving convenient access to Exeter, Plymouth and the M5, with popular local eateries also within easy reach.

Description - Set within a modern residential development and enjoying a notably private position, this attractive contemporary home offers well-balanced accommodation ideally suited to modern living. Built to a high standard and benefitting from the remainder of an NHBC warranty until June 2034, the property combines light, practical interiors with energy-efficient features including gas central heating and solar panels.

Of particular note is the rear garden, which is widely regarded as one of the most private on the development, with very little overlooking.

Accommodation - The front door opens into an entrance hall with stairs rising to the first floor and access to a cloakroom/WC. From the hall, a door leads through to the sitting and dining room, a bright and welcoming space with ample room for both seating and dining furniture. French doors open directly onto the rear garden, creating an excellent sense of space and connection with the outdoors.

The kitchen is positioned to the front of the property and is fitted with a modern range of units, work surfaces and integrated appliances, arranged in a practical and efficient layout.

On the first floor, the landing gives access to two well-proportioned bedrooms. The principal bedroom is a comfortable double, while the second bedroom offers flexibility for guests, home working or additional storage. A contemporary family bathroom serves the first floor.

Outside - The property is approached from Ash Gardens, where two allocated parking spaces are situated to the front with an electric car charging point. A small front garden provides an attractive approach.

To the rear, the garden is a particular feature of the property. Enclosed and enjoying an excellent degree of privacy with very little overlooking, it is considered one of the most private gardens within the development. The garden is laid mainly to lawn with paved seating areas ideal for outdoor dining and relaxation, and includes a timber garden shed.

Services - Mains water, drainage, electricity and gas. Gas-fired central heating. Solar panels installed.

According to Ofcom, standard broadband is available with typical download speeds of up to 6 Mbps, superfast broadband up to 80 Mbps and ultrafast broadband up to 1800 Mbps.

Mobile phone coverage is predicted by Ofcom to be good outdoors with variable in-home coverage depending on provider.

There is an estate management charge of approximately £300 per annum.

Directions - From Totnes follow the A385 towards Dartington. At the Dartington roundabout, take the second exit and continue past the fuel station. Proceed straight over the next roundabout, then turn right into the Sawmills estate and left into Ash Gardens, where the allocated parking spaces will be found towards the end on the left.

what3words ///pleaser.mandolin.damp

Stags

Stags

The Granary
Totnes
Devon
TQ9 5GN

+44 (0)1803 865454

Reference: 34353359

Request a viewing for this property

Simply fill out the form below or alternatively call us on 020 7839 0888

* Mandatory fields