Barn Conversion
£400,000
Church End, Leckhampstead, MK18

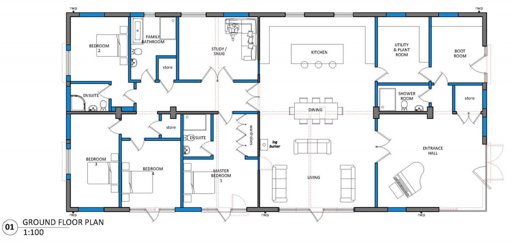
Floorplans For Church End, Leckhampstead, MK18

Description


A rarely available single storey barn, with Planning Permission granted by Buckinghamshire Council under reference 23/03793/APP to a single storey residential property of approximately 3,213 sq ft. The barn is located in an idyllic rural setting on the edge of the village of Leckhampstead. Whilst being offered for sale with gardens, there may also be the opportunity to purchase up to an additional two acres of paddock land.

Leckhampstead - The highly regarded Buckinghamshire village of Leckhampstead, located close to the boundary of Northamptonshire, sits approximately 4.5 miles northeast of Buckingham and 11 miles from Milton Keynes. The area is well served with primary and secondary schools in addition to the Royal Latin Grammar School and several independent schools.

Leckhampstead benefits from excellent transport links both north and south, with the M40 (Junction 9) and the M1 (Junction 15A) both easily accessible. Regional train stations offer journey times to London from Milton Keynes (11 miles) and Bicester (16 miles) from approximately 35 minutes. London, Milton Keynes, Northampton and Oxford, are all very commutable.

Local shopping, sporting, and leisure options are wide and varied, with the rural situation being ideal for walking, cycling and equestrian sports. There are delightful walks in Leckhampstead Woods.

Golfing options nearby are numerous, with courses at Buckingham, Stowe, Silverstone and Whittlebury Hall. Professional rugby and football are played at Northampton Saints and MK Dons respectively, and less than 10 miles away you will find the world-famous Silverstone Grand Prix Race Circuit.

Accommodation - The plan, as drawn and approved, depicts a large entrance hall, off which is a store, shower room, utility and boot room. The hub of the house will be the huge, dual aspect, "live-in" kitchen / dining / living space. The Western end of the property will house four double bedrooms, two en-suite bathrooms, a family bathroom and a study / snug.

Outside - The gated entrance will provide driveway access and parking, with the gardens lying on the South side of the barn.

Paddock Land - There may be an option to purchase up to an additional two acres of adjacent paddock, please make your enquiry with Howkins & Harrison.

Agents Note - Cil (Community Infrastructure Levy) - We understand the property falls under the jurisdiction of Buckinghamshire Council, who do not charge CIL on developments within their area.

Local Authority - Buckinghamshire Council
Aylesbury Vale
Walton Street Offices
Walton Street
Aylesbury
HP20 1UA

Viewing Arrangements - Strictly by prior appointment via the selling agents, Howkins and Harrison. Tel:01327-353575.

Fixtures And Fittings - Only those items in the nature of fixtures and fittings mentioned in these particulars are included in the sale. Other items are specifically excluded. None of the appliances have been tested by the agents and they are not certified or warrantied in any way.

Services - Electricity is connected to one of the barns and water is available adjacent to the barn. The purchaser will be responsible for installing a new drainage/septic tank system. Purchasers should note that it is their specific responsibility to make their own enquiries of the appropriate authorities as to the location, adequacy and availability of mains services.

Floorplan - Howkins and Harrison provide these plans for reference only - they are not to scale.

Important Notice - Every care has been taken with the preparation of these Sales Particulars, but complete accuracy cannot be guaranteed. In all cases, buyers should verify matters for themselves. Where property alterations have been undertaken buyers should check that relevant permissions have been obtained. If there is any point, which is of particular importance let us know and we will verify it for you. These Particulars do not constitute a contract or part of a contract. All measurements are approximate. The Fixtures, Fittings, Services & Appliances have not been tested and therefore no guarantee can be given that they are in working order. Photographs are provided for general information and it cannot be inferred that any item shown is included in the sale. Plans are provided for general guidance and are not to scale.

Howkins & Harrison

Howkins & Harrison

98A Watling St
Towcester
Northamptonshire
NN12 6BT

+44 (0)1327 353575

Reference: 34349435

Request a viewing for this property

Simply fill out the form below or alternatively call us on 020 7839 0888

* Mandatory fields