4 Bedroom Detached
£425,000
Lillebonne Way, Wellington

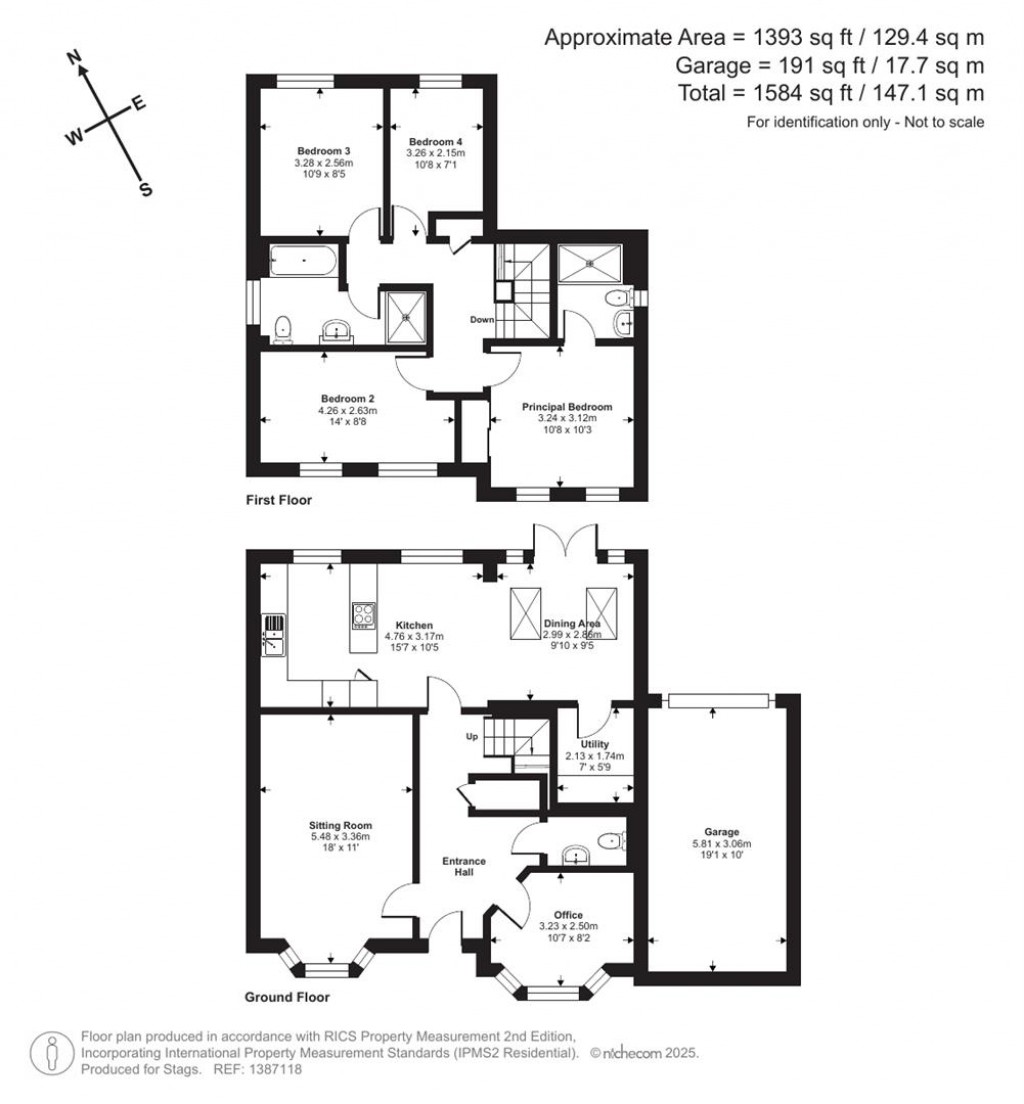
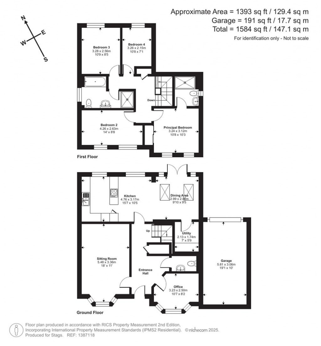
Floorplans For Lillebonne Way, Wellington
EPC Graph for Lillebonne Way, Wellington

Description


Located in a popular development this detached property offers flexible accommodation, providing four bedrooms, master en suite and family bathroom, open plan kitchen/diner, sitting room, office, utility and cloakroom, front and rear garden, parking and garage. Freehold, Council tax E, EPC B

Situation - This well presented home is located within a sought-after development, just 0.8 miles from the town centre, offering an excellent range of shopping, leisure, and educational facilities. The M5 motorway is easily accessible, approximately 2.4 miles away, while the County Town of Taunton lies around 6.3 miles from the property, providing an even wider selection of amenities along with a mainline rail service to London Paddington.

Description - 36 Normandy Row benefits from UPVC double glazed windows and doors throughout. The accommodation is spacious and light, comprising of an entrance hall, kitchen/dining room, sitting room, a further reception room/study, utility and cloakroom. On the first floor are four bedrooms, including a master bedroom with en suite facilities and a family bathroom. Outside is a tarmac drive providing parking, single garage and gardens to both the front and rear. Offered for sale with no onward chain.

Accommodation - A covered porch leads into a welcoming hallway with understairs storage and access to a spacious sitting room with bay window, a separate study also with a bay window, and a cloakroom with WC and wash hand basin. The open-plan kitchen/diner features fitted base and wall units, a black sink and drainer, integrated fridge-freezer, double oven, dishwasher and electric hob with extractor fan, along with ample space for a large dining table and patio doors opening onto the rear garden. A utility room provides further storage, plumbing for laundry appliances, and houses the boiler.
Stairs rise to the first-floor landing, giving access to the master bedroom with built-in wardrobes and an en-suite shower room, two further double bedrooms-one overlooking the front and one to the rear, a single rear bedroom, and a modern family bathroom with walk-in shower, separate bath, wash hand basin, WC and towel.

Outside - The front of the property is boarded by hedging and the rear garden is tiered. There is a patio area from the kitchen/ diner, with steps down to the driveway with parking for 2-3 cars, garage and a further garden area with picket fencing, artificial grass, decking and gravel area. There are wooden gates enclosing the rear garden and driveway.

Services - All mains services. Mobile coverage is good outdoor, variable in-home with EE and Vodafone and good outdoor with O2 and Three (Ofcom). This property has the benefit of Ultrafast broadband (Ofcom).

Viewings - Strictly by appointment with the vendor's selling agents, Stags, Wellington Office.

Directions - From the town centre, head out on the Taunton Road, turning left at the first roundabout. Continue down the avenue and No. 39 can be seen on the right hand side.

Stags

Stags

7 High Street
Wellington
Somerset
TA21 8QT

+44 (0)1823 662822

Reference: 34348821

Request a viewing for this property

Simply fill out the form below or alternatively call us on 020 7839 0888

* Mandatory fields