2 Bedroom Plot
£325,000
St. Philips Road, Cambridge

Description


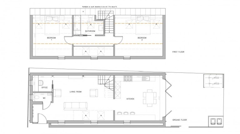
An opportunity to purchase a building plot in the heart of the vibrant Romsey area of the city, benefitting from detailed planning consent to erect a stylish 1.5 storey two or three bedroom self-build dwelling

The Site - The northern boundary of the site runs along St Philips Road. Access to the site is over a pedestrian footpath. On the eastern boundary, a footpath provides the access to the rear garden of 76 St Philips Road. On the western boundary is the garden of 50 Hemingford Road, and the southern boundary backs onto the garden of 48 Hemingford Road.

The properties on the northern side of this area are predominantly two-storey terraced houses, facing St Philips Rd. Some of the properties are set back from the pedestrian footpath. The southern side has two street facing properties adjacent to the site.

Planning Consent - Detailed planning consent for 1 No. 1.5 storey self-build dwellinghouse under Greater Cambridge Shared Planning reference: 24/01861/FUL approved on 12th February 2025.

Gross internal Area of the dwelling is approximately 1,300 sq.ft

The plot previously benefitted from outline planning permission for 1 No. one and a half storey dwellinghouse with no matters reserved.22/00265/OUT decided on 14th March 2023

New Homes - Please contact Cheffins New Homes team for more information on the local market and resale values in the area

Location - The plot is located in the highly sought-after Romsey area of the city, just a stone's throw from the vibrant Mill Road with its range of independent shops and restaurants and a short walk or cycle from Cambridge station.

Cheffins

Cheffins

Clifton House
1-2 Clifton Road
Cambridge
Cambridgeshire
CB1 7EA

+44 (0)1223 214214

Reference: 34347048

Request a viewing for this property

Simply fill out the form below or alternatively call us on 020 7839 0888

* Mandatory fields