3 Bedroom Terraced
£215,000
South Molton

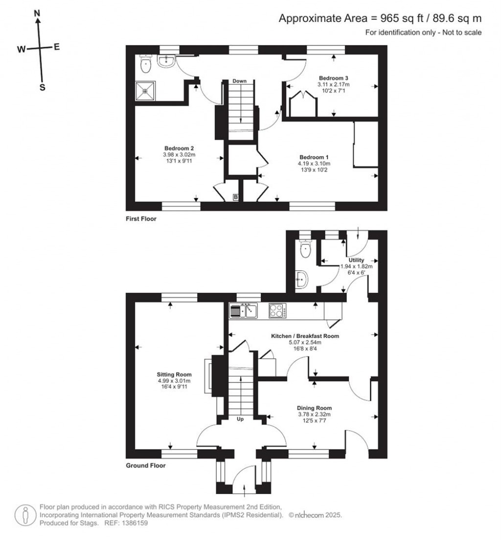
Floorplans For South Molton
EPC Graph for South Molton

Description


An appealing terraced house in a popular market town. Porch, stair hall, sitting room, dining room, kitchen/breakfast room, utility, cloakroom, 3 bedrooms and shower room. Front and good-sized rear enclosed gardens. EPC Band C

Situation - 13 Kingsway is located in a quiet cul-de-sac towards the southern edge of the popular and traditional market town of South Molton. The town offers a comprehensive range of amenities, including schooling from nursery to secondary level, Sainsbury's supermarket, Post Office, pubs, cafes and an abundance of independent and artisan shops. The town also bustles when the popular and award-winning twice weekly pannier markets and weekly stock markets take place.
The A361 (North Devon Link Road) bypasses the town and provides an excellent link to Barnstaple and the renowned North Devon coast to the west and the M5 (J 27) and Tiverton Parkway train station on the Paddington Line to the east.

Description - Of brick cavity construction under a tiled roof, 13 Kingsway is an appealing, mid-terraced property and is offered to the market with no onward chain. The property offers two reception rooms and three bedrooms and a good-sized, enclosed garden to the rear.

Accommodation - A part-glazed front door leads into the STAIR HALL with stairs rising to the first floor. A door to the left leads into a double aspect SITTING ROOM which has a fireplace with a gas-fired living flame fire with display shelving to the right and views of the town over the garden to the rear. The DINING ROOM has a further door to the front and a glazed door through to the KITCHEN with a tiled floor and fitted with a modern range of matching wall and base units with one and a half bowl composite sink with mixer tap, gas cooker and hob and under stairs cupboard. A door leads through to the UTILITY which has plumbing for a washing machine, wall mounted units and a door into a CLOAKROOM with a WC and wash basin.

On the FIRST FLOOR, the LANDING has views over the town to the rear. There are 3 BEDROOMS, each with built-in or fitted wardrobes/storage and the SHOWER ROOM is fitted with a modern suite comprising a pedestal wash basin, WC and a tiled shower cubicle with electric shower.

Outside - To the front, a paved path with lawns either side lead gently down to a paved area next to the house and the front door.
To the rear there is a good-sized, enclosed garden. Initially there is a paved and gravelled area next to the house which extends out to a mainly lawned area with further gravel areas and planted with mature shrub borders. There is a small ornamental pond and a timber-framed garden shed with power and light connected.

Services And Further Information - All mains services currently connected. Mains gas fired central heating via radiators.
Mobile - Good service from all main providers (Ofcom).
Broadband - Standard, superfast and ultrafast available (Ofcom).
Parking - Unrestricted parking available on-street.

Viewing - Strictly by confirmed prior appointment please through the sole selling agents, Stags on 01769 572263.

Directions - From the western end of the town Square take the turning into South Street (B3226). Continue along South Street and take the third turning on the left into Kingsway. The property will be found soon after on the left.

What3words Ref: seatbelt.cheered.crackled

Stags

Stags

29 The Square
South Molton
Devon
EX36 3AQ

+44 (0)1769 572263

Reference: 34347043

Request a viewing for this property

Simply fill out the form below or alternatively call us on 020 7839 0888

* Mandatory fields