Plot
£195,000
Freshwater, Isle of Wight

Floorplans For Freshwater, Isle of Wight Floorplans For Freshwater, Isle of Wight

Description


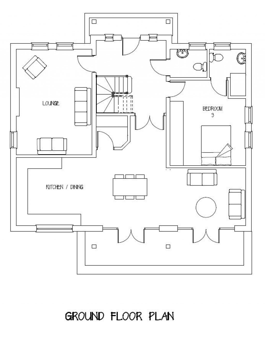
A substantial plot with full planning granted for a detached four bedroomed house and a separate detached double garage tucked away on the fringes of Colwell and Freshwater Village. VIEWING BY APPOINTMENT ONLY.

Description - Offered for sale with planning approved for a detached four bedroomed home with parking and detached garage located between Colwell Lane and Heath Lane in Freshwater. The plot has already been enclosed by new close board fencing and there is a new gated pedestrian access to and from Heath Lane.

Location - There is vehicular access from Colwell Lane via its own freehold driveway down the side of Arnell Lodge who have a right of way to access there bungalow only. There is also gated access by foot onto Heath Lane which is about 5-6 minutes stroll to the seafront at Colwell Bay.

Planning Information - The planning details can be found on the Isle of Wight Planning Portal as follows:

LPA Ref: 23/00756/FUL.

Approval is for a detached dwelling and a detached garage and was granted on 21st July 2023 and for building to commence before expiration of three years from the date of planning approval being granted.

Tenure - Freehold

Viewings - Strictly by appointment only via Spence Willard

1. Particulars: These particulars are not an offer or contract, nor part of one. You should not rely on statements by Spence Willard in the particulars or by word of mouth or in writing ("information") as being factually accurate about the property, its condition or its value. Neither Spence Willard nor any joint agent has any authority to make any representations about the property, and accordingly any information given is entirely without responsibility on the part of the agents, seller(s) or lessor(s).
2. Photos etc: The photographs show only certain parts of the property as they appeared at the time they were taken. Areas, measurements and distances given are approximate only.
3. Regulations etc: Any reference to alterations to, or use of, any part of the property does not mean that any necessary planning, building regulations or other consent has been obtained. A buyer or lessee must find out by inspection or in other ways that these matters have been properly dealt with and that all information is correct.
4. VAT: The VAT position relating to the property may change without notice.

Spence Willard

Spence Willard

The Old Bank
Tennyson Road
Freshwater
Isle of Wight
PO40 9AB

+44 (0)1983 756575

Reference: 34344452

Request a viewing for this property

Simply fill out the form below or alternatively call us on 020 7839 0888

* Mandatory fields