2 Bedroom Detached
£390,000
Folly Mill Lane, Bridport

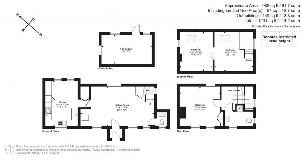
Floorplans For Folly Mill Lane, Bridport
EPC Graph for Folly Mill Lane, Bridport

Description


A beautiful Grade II Listed detached house in a set back position close to the town centre. EPC: E.

Method Of Sale - The property will be offered for sale by Online Traditional auction (unless sold prior.) The auction end date is 20th January 2026 at 4pm.
The vendor reserves the right to withdraw or alter the property for sale prior to the auction end date. The property can be accessed via our website - stags.co.uk on the Auction Page.

The Property - Cornerstone Cottage is a charming and thoughtfully updated Grade II listed home tucked away in the centre of Bridport. Offering characterful accommodation over three floors, private off-road parking, a sheltered garden, and a flexible outbuilding, the property places you only moments from the town's shops, cafés, markets, and amenities yet set in a peaceful and quite position.

Ground Floor
The cottage is entered through a small porch, which leads into a bright and welcoming living/dining room. With windows at both the front and rear, the space enjoys excellent natural light, and the impressive inglenook fireplace, complete with a JotulT gas stove and exposed timber beam, adds warmth and character. A ground-floor W.C. is accessed from this room.

To the rear is the kitchen/breakfast room, fitted with a good range of units and integrated appliances including an electric double oven, gas hob, extractor, dishwasher, fridge/freezer, and washing machine. There is space for a breakfast table, and dual-aspect windows make it an enjoyable place throughout the day. A utility cupboard houses the boiler, and a pull-down ladder leads to additional loft storage above the kitchen.

First Floor
The main bedroom occupies the first floor and is a generous double with windows to both sides, built-in storage, wooden flooring, and period features that reflect the cottage's history.
Also on this level is the shower room, finished with a walk-in shower, basin, W.C., towel rail, and practical vinyl flooring.

Second Floor
A further staircase leads to a naturally light attic room, ideal as a study, studio, or creative workspace. From the top of the stairs, there are attractive views across parts of the town and the surrounding countryside. Beyond this is the second bedroom, a cosy and versatile room suitable for guests, children, or an additional workspace.

Outside - At the front of the property, a gravelled area provides off-road parking for several vehicles - a rare advantage so close to the town centre. A wooden gate opens into the private garden, designed for low maintenance with decorative stone, established shrubs, fruit trees, and raised planters. It offers a peaceful setting for outdoor dining and relaxation.
A standout feature of the garden is the stone boundary wall, which contains fossilised ammonites - a distinctive reminder of the area's Jurassic heritage. Set within the garden is a detached stone outbuilding, currently arranged as a workshop. With power connected, it offers excellent scope to be used as a studio, office, gym, or hobby room. A gate leads directly onto Folly Mill Lane for convenient pedestrian access to town.

Services - Mains drainage, electricity & gas. Gas central heating

Situation - Bridport is a lively and historic market town known for its independent shops, arts and music scene, and regular community events. The A35 provides direct routes to Dorchester, Weymouth, and Axminster, with rail connections available from nearby stations. The coastline at West Bay is close by, and the local area offers opportunities for walking, water sports, cycling, golf, and a variety of sports clubs.

Directions - what3words: walked.treaties.projects
From our Bridport office on South Street proceed south taking the first turning on the left onto Folly Mill Lane, Cornerstone Cottage is the first house on the left after passing Folly Mill Lodge.

Proof Of Identity - Under Money Laundering Regulations 2017 it is a requirement for Estate Agents to perform due diligence checks on any person that intends to bid at auction. There will be a requirement for all bidders to register via the online sales site and complete the ID checks. There is no charge for registration.

Buyers & Administration Fees - The successful purchaser(s) will be liable to pay the sum of £5,000. From this a buyer's fee of £2,400 inc VAT is retained by Stags/Bamboo Proptech as a contribution towards the online platform costs, and £2,600 is payable towards the purchase price.
An additional administration fee of £1,200 inc VAT will be payable by the successful purchaser immediately after the auction.

Deposit Payment - The Seller and Buyer agree that the winning Bidder may transfer the remainder of the 10% deposit (less the amounts paid online) within 48 hours of the end of this online auction. Clauses 6.1, 6.2 and 7.1 of the Holding Deposit Agreement shall be read as amended to reflect this accordingly. The remainder of the 10% deposit payment is handled by the buyer's solicitors and must be in their client account no later than 48 hours post exchange. It is essential that you instruct your solicitor in advance of the auction.

Legal Pack - Copies of the legal pack and special conditions of sale are available online to be downloaded, via the tab on the online auction property listing page. Prospective purchasers will need to register with the Bamboo Proptech online platform in order to download the legal pack. It is the purchaser's responsibility to make all necessary enquiries prior to the auction. Prospective purchasers are strongly advised to inspect the legal documentation, this will/may contain material information regarding the property, and to consult legal advice prior to bidding.

Solicitor Acting - Mike Harvey of Nantes Solicitors Bridport 01308 422313 mike.harvey@nantes.co.uk

Completion Date - The completion date will be 28 workings days as dictated by the solicitor and included in the legal pack.

Definition Of Auction Guide & Reserve - Guide price(s) are an indication of the seller's expectation. Reserve price(s) are a figure below which the auctioneer cannot sell the lot at auction. We expect the reserve will be set within the guide range or no more than 10% above a single figure guide. Guide prices may change at any time prior to the auction.

Special Conditions Of Sale - Particulars, remarks and stipulations contained herein shall be deemed to form part of the special conditions of sale/auction information pack and in case of any inconsistencies the provisions of the latter shall prevail. Special conditions of sale/auction information pack is available online. It is assumed that the Purchaser will have made all necessary enquiries prior to the auction.

Stags

Stags

29 South Street
Bridport
Dorset
DT6 4NR

+44 (0)1308 428000

Reference: 34336514

Request a viewing for this property

Simply fill out the form below or alternatively call us on 020 7839 0888

* Mandatory fields